Kompleksas Vilniaus rajone: Sandėlis 791 kv.m ir keli sklypai Medelyno g. 13, pradinė kaina 206679 EUR
📝 Aprašymas
Parduodamas nekilnojamojo turto kompleksas Vilniaus rajone, Akmenytės kaime, kaip pakartotinis aukcionas. Objekto pasiūlymą sudaro sandėlis, žemės sklypai ir šiltnamiai, esantys Medelyno g. 13 ir Medelyno g. 11 adresais. Bendras parduodamos dalies dydis yra 1/1 visų objektų atžvilgiu.
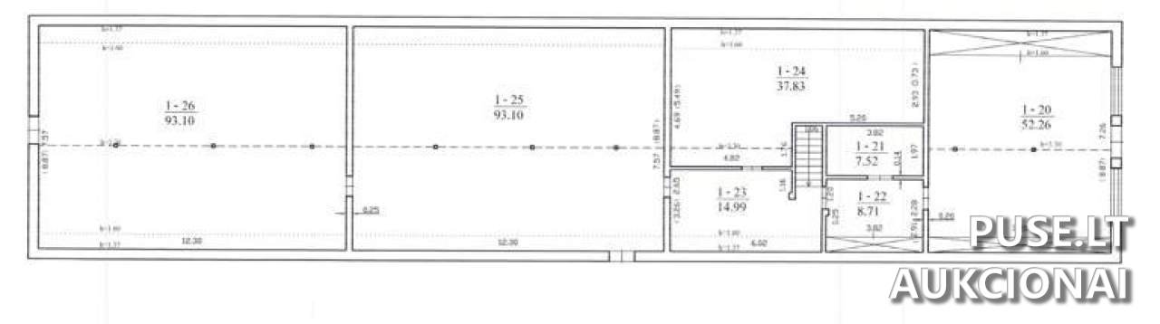
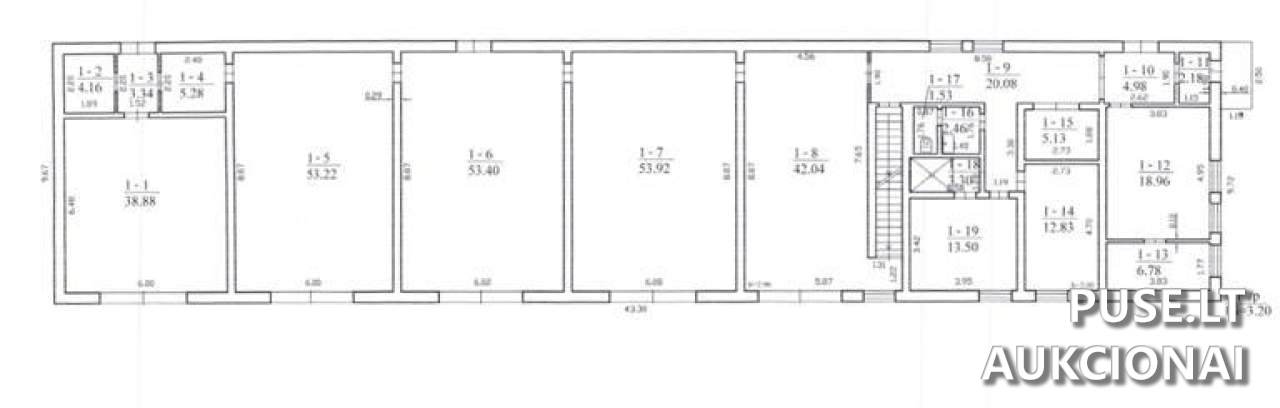
Pagrindinis parduodamas objektas – Sandėlis, kurio bendras plotas yra 790.99 kv. m. Unikalus sandėlio numeris 4196-9009-7063. Parduodamas turtas apima ir kelis žemės sklypus: 0.0533 ha sklypą (Unikalus Nr. 4400-5402-8538) adresu Medelyno g. 13 ir 0.1602 ha sklypą (Unikalus Nr. 4400-5041-6561) adresu Medelyno g. 11, Nemėžio seniūnijoje, Vilniaus r. savivaldybėje. Taip pat parduodami du šiltnamiai: vienas 190.00 kv. m užstatyto ploto (Unikalus Nr. 4196-9009-7130) ir kitas 196.00 kv. m užstatyto ploto (Unikalus Nr. 4196-9009-7141).
Svarbios pardavimo sąlygos: Nekilnojamasis turtas parduodamas esamos fizinės ir funkcinės būklės, remiantis esamais kadastro duomenimis. Valstybės įmonė Turto bankas neįsipareigoja nustatyti aktualios būklės ar iškraustyti esančių daiktų. Būsimam savininkui reikia atkreipti dėmesį į tai, kad VĮ Turto bankas nėra sudaręs elektros tiekimo sutarties su paslaugos tiekėju, todėl elektros tiekimo klausimai turi būti sprendžiami naujai.
Sandėlis (Unikalus Nr. 4196-9009-7063) šiuo metu yra išnuomotas iki 2026-05-05. Jeigu nuosavybės teisė pereina trečiajam asmeniui, nuomotojas turi teisę vienašališkai, be kreipimosi į teismą, nutraukti nuomos sutartį, įspėjęs nuomininką raštu ne mažiau kaip prieš 30 kalendorinių dienų.
Pradinė turto kaina 206679 EUR. Garantinis mokestis sudaro 20667 EUR, o aukciono dalyvio registracijos mokestis yra 100 EUR. Aukcionas prasideda 2026-01-12 09:00:00 ir baigiasi 2026-01-13 13:59:59. Registracija į aukcioną vyksta nuo 2026-01-05 iki 2026-01-07.
Pagrindinis parduodamas objektas – Sandėlis, kurio bendras plotas yra 790.99 kv. m. Unikalus sandėlio numeris 4196-9009-7063. Parduodamas turtas apima ir kelis žemės sklypus: 0.0533 ha sklypą (Unikalus Nr. 4400-5402-8538) adresu Medelyno g. 13 ir 0.1602 ha sklypą (Unikalus Nr. 4400-5041-6561) adresu Medelyno g. 11, Nemėžio seniūnijoje, Vilniaus r. savivaldybėje. Taip pat parduodami du šiltnamiai: vienas 190.00 kv. m užstatyto ploto (Unikalus Nr. 4196-9009-7130) ir kitas 196.00 kv. m užstatyto ploto (Unikalus Nr. 4196-9009-7141).
Svarbios pardavimo sąlygos: Nekilnojamasis turtas parduodamas esamos fizinės ir funkcinės būklės, remiantis esamais kadastro duomenimis. Valstybės įmonė Turto bankas neįsipareigoja nustatyti aktualios būklės ar iškraustyti esančių daiktų. Būsimam savininkui reikia atkreipti dėmesį į tai, kad VĮ Turto bankas nėra sudaręs elektros tiekimo sutarties su paslaugos tiekėju, todėl elektros tiekimo klausimai turi būti sprendžiami naujai.
Sandėlis (Unikalus Nr. 4196-9009-7063) šiuo metu yra išnuomotas iki 2026-05-05. Jeigu nuosavybės teisė pereina trečiajam asmeniui, nuomotojas turi teisę vienašališkai, be kreipimosi į teismą, nutraukti nuomos sutartį, įspėjęs nuomininką raštu ne mažiau kaip prieš 30 kalendorinių dienų.
Pradinė turto kaina 206679 EUR. Garantinis mokestis sudaro 20667 EUR, o aukciono dalyvio registracijos mokestis yra 100 EUR. Aukcionas prasideda 2026-01-12 09:00:00 ir baigiasi 2026-01-13 13:59:59. Registracija į aukcioną vyksta nuo 2026-01-05 iki 2026-01-07.
📍 Objekto lokacija
📍 Vilniaus r. sav. Akmenytės k. Medelyno g. 13
❓ Dažnai užduodami klausimai
Kokia yra nekilnojamojo turto komplekso pradinė kaina?
Pradinė turto kaina, apimančio sandėlį ir kelis sklypus Vilniaus r. sav., yra 206679 EUR.
Kada vyks aukcionas ir kada reikia spėti užsiregistruoti?
Aukcionas vyks nuo 2026-01-12 09:00:00 iki 2026-01-13 13:59:59. Registracija baigiasi 2026-01-07 23:59:59.
Kokie pagrindiniai objektai parduodami Akmenytės kaime, Medelyno g. 13?
Parduodamas 790.99 kv. m sandėlis (Unikalus Nr. 4196-9009-7063), 0.0533 ha žemės sklypas (Unikalus Nr. 4400-5402-8538), du šiltnamiai (190.00 kv. m ir 196.00 kv. m) ir 0.1602 ha žemės sklypas (Unikalus Nr. 4400-5041-6561) adresu Medelyno g. 11.
Kokie yra privalomi mokėjimai norint dalyvauti aukcione?
Reikalingas 20667 EUR garantinis mokestis ir 100 EUR registracijos mokestis.
Ar aukciono objektas yra apribotas nuomos sutartimi?
Taip, Sandėlis, unikalus Nr. 4196-9009-7063, yra išnuomotas iki 2026-05-05, tačiau nuomos sutartis gali būti nutraukta vienašališkai įspėjus nuomininką prieš 30 dienų.
Kokia yra svarbiausia turto būklės atžvilgiu sąlyga?
Nekilnojamasis turtas parduodamas esamos fizinės ir funkcinės būklės, o Turto bankas neįsipareigoja tvarkyti elektros tiekimo sutarties ar iškraustyti daiktų.