📝 Aprašymas
Parduodamos administracinės patalpos su priklausančiu garažu ir žemės sklypo dalimi Ignalinos miesto centre, Atgimimo g. 5-4, pradinė kaina 89700 EUR. Šis pardavimas apima 1/1 dalį, kuriai priskiriamos patalpos ir garažas bei 0,0675 ha dalis iš 0,1384 ha žemės sklypo.
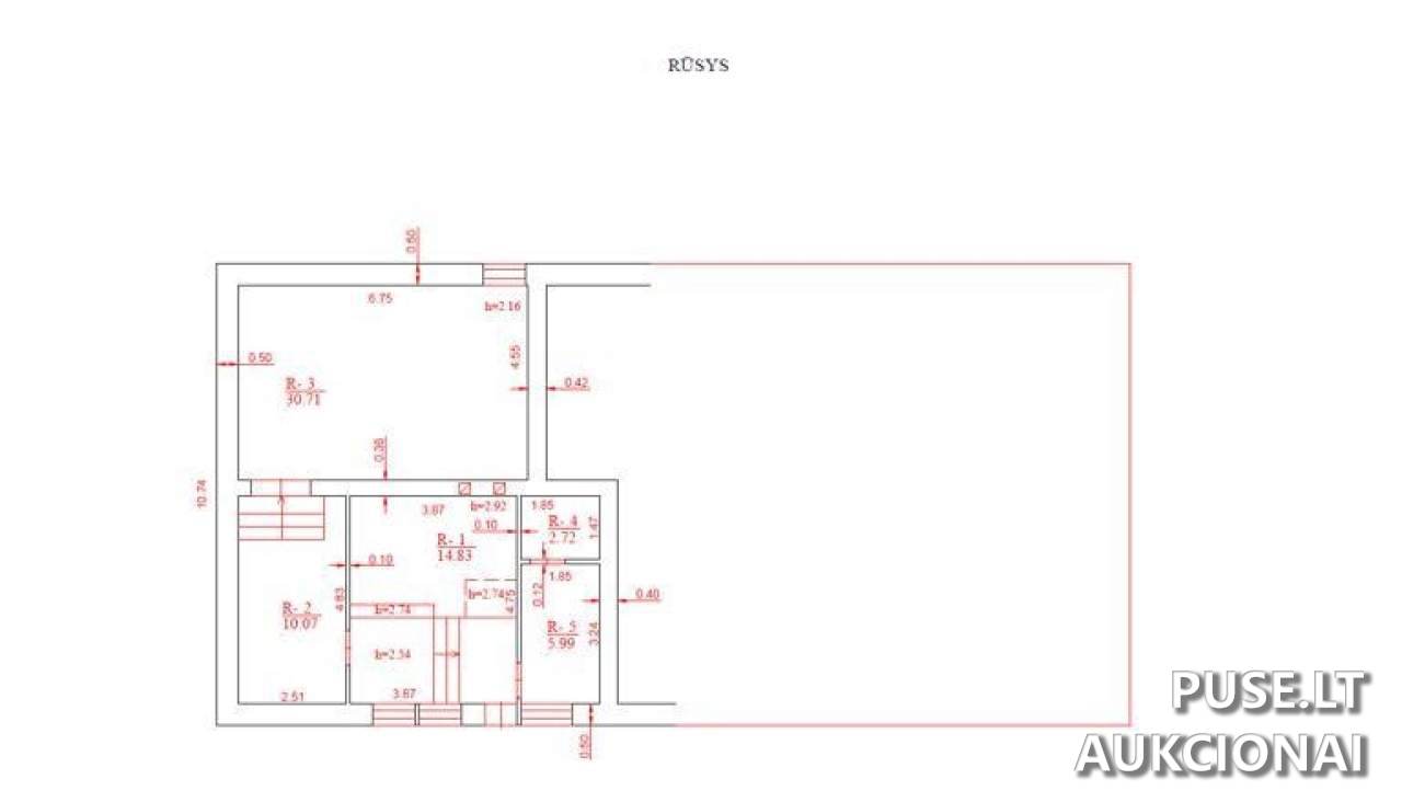
Nekilnojamojo turto dalies bendras plotas yra 160,87 kv. m, įskaitant rūsius (R-1: 14.83 kv. m, R-2: 10.07 kv. m, R-3: 30.71 kv. m, R-4: 2.72 kv. m, R-5: 5.99 kv. m). Patalpoje R-1 yra daugiabučio namo šilumos punktas. Garažo bendras plotas yra 61,34 kv. m. Pardavimo objektas yra esamos fizinės ir funkcinės būklės. Turto bankas neįsipareigoja nustatyti aktualios kadastro duomenų būklės ar iškraustyti esančių daiktų.
Svarbios sąlygos susijusios su žemės sklypu: jis yra nekilnojamosios kultūros vertybės, įrašytos į Lietuvos Respublikos kultūros vertybių registrą (Ignalinos miesto istorinė dalis, unikalus kodas - 17082), teritorijoje. Visas naudojimas, tvarkymas bei statybos darbai reglamentuojami Statybos ir Nekilnojamojo kultūros paveldo apsaugos įstatymais. Taip pat, naujasis savininkas privalės užtikrinti šilumos tiekėjo atstovams teisę patekti į patalpą R-1 šilumos ir karšto vandens sistemų apžiūrai, remontui ar skaitiklių patikrai, vadovaujantis Šilumos ūkio įstatymu.
Šis įsigijimas reikalauja papildomų mokesčių: Garantinis mokestis yra 8970 EUR, o registracijos mokestis sudaro 60 EUR. Aukcionas organizuojamas Valstybės įmonės Turto bankas.
Nekilnojamojo turto dalies bendras plotas yra 160,87 kv. m, įskaitant rūsius (R-1: 14.83 kv. m, R-2: 10.07 kv. m, R-3: 30.71 kv. m, R-4: 2.72 kv. m, R-5: 5.99 kv. m). Patalpoje R-1 yra daugiabučio namo šilumos punktas. Garažo bendras plotas yra 61,34 kv. m. Pardavimo objektas yra esamos fizinės ir funkcinės būklės. Turto bankas neįsipareigoja nustatyti aktualios kadastro duomenų būklės ar iškraustyti esančių daiktų.
Svarbios sąlygos susijusios su žemės sklypu: jis yra nekilnojamosios kultūros vertybės, įrašytos į Lietuvos Respublikos kultūros vertybių registrą (Ignalinos miesto istorinė dalis, unikalus kodas - 17082), teritorijoje. Visas naudojimas, tvarkymas bei statybos darbai reglamentuojami Statybos ir Nekilnojamojo kultūros paveldo apsaugos įstatymais. Taip pat, naujasis savininkas privalės užtikrinti šilumos tiekėjo atstovams teisę patekti į patalpą R-1 šilumos ir karšto vandens sistemų apžiūrai, remontui ar skaitiklių patikrai, vadovaujantis Šilumos ūkio įstatymu.
Šis įsigijimas reikalauja papildomų mokesčių: Garantinis mokestis yra 8970 EUR, o registracijos mokestis sudaro 60 EUR. Aukcionas organizuojamas Valstybės įmonės Turto bankas.
📍 Objekto lokacija
📍 Ignalinos r. sav. Ignalinos m. Atgimimo g. 5-4
❓ Dažnai užduodami klausimai
Kokia yra pradinė administracinių patalpų su garažu ir žemės sklypu kaina Ignalinoje?
Pradinė kaina aukcione yra 89700 EUR.
Kada vyks šis Turto banko aukcionas Atgimimo g. 5-4 objekto pardavimui?
Aukcionas vyks nuo 2026-01-26 09:00:00 iki 2026-01-27 13:59:59.
Koks yra bendras patalpų ir garažo plotas bei parduodama žemės sklypo dalis?
Bendras patalpų plotas yra 160,87 kv. m (su rūsiais), garažas 61,34 kv. m. Pardodama 0,0675 ha dalis iš 0,1384 ha žemės sklypo.
Kokie papildomi mokesčiai yra taikomi dalyvaujant aukcione?
Privalomas registracijos mokestis yra 60 EUR, o garantinis mokestis – 8970 EUR.
Kada reikia registruotis, norint dalyvauti aukcione?
Registracija prasideda 2026-01-19 00:00:00 ir baigiasi 2026-01-21 23:59:59.
Ar yra specifinių sąlygų dėl žemės sklypo naudojimo Ignalinoje?
Žemės sklypas yra nekilnojamosios kultūros vertybės teritorijoje (Ignalinos miesto istorinė dalis, kodas 17082), todėl jo tvarkymas ir darbai reglamentuojami Paveldo apsaugos įstatymais.