📝 Aprašymas
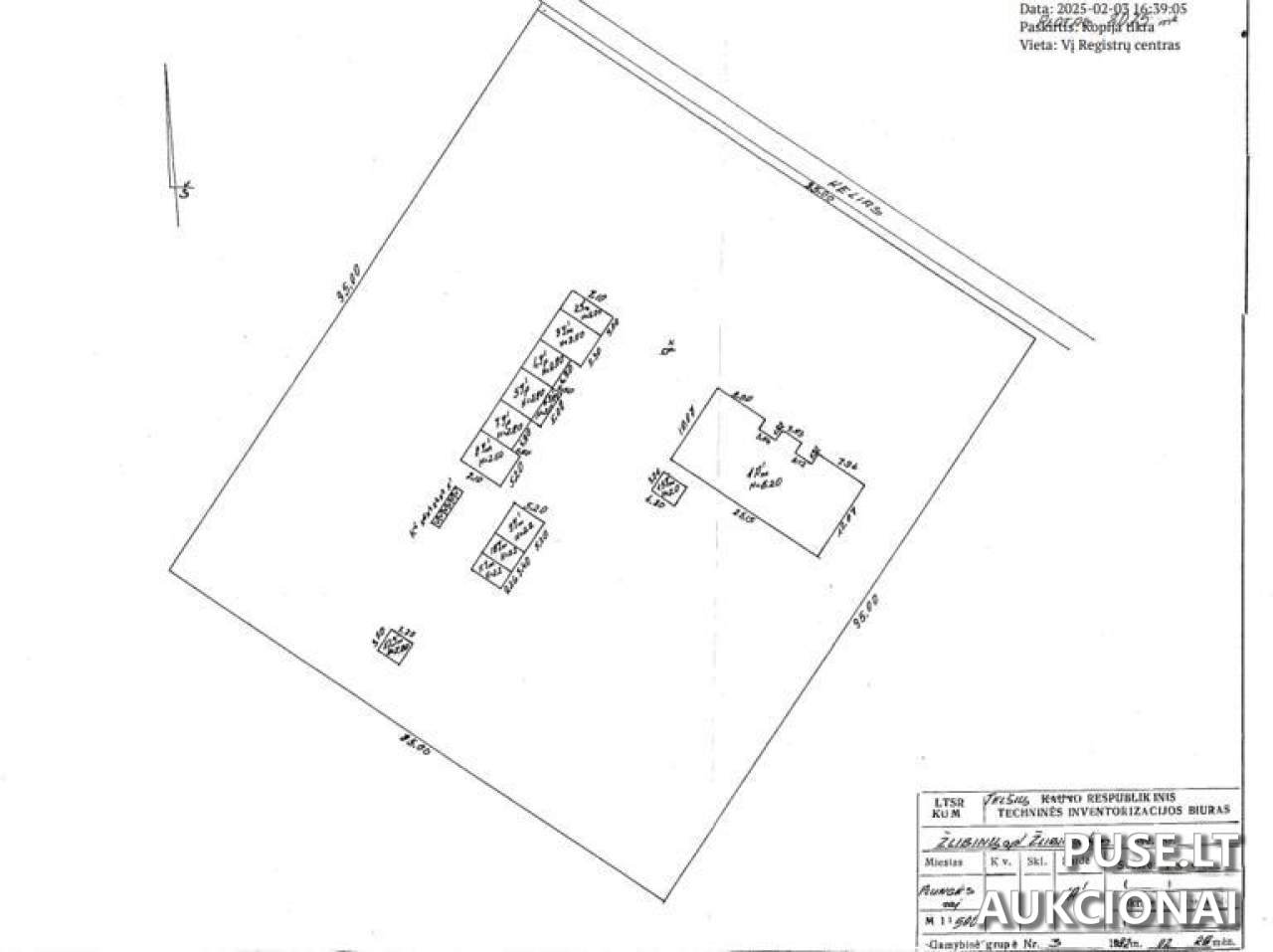
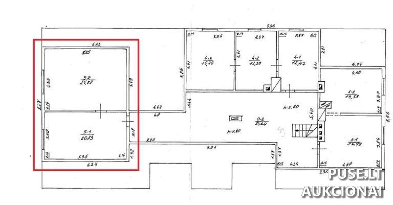
Parduodamas 1/1 dalies gyvenamosios patalpos, butas, esantis Plungės rajono savivaldybėje, Žlibinų kaime, Žarėnų gatvėje 63-5. Pradinė kaina šiam nekilnojamajam turtui yra itin maža – 259 EUR. Bendra buto naudingojo ploto dalis siekia 46,71 kv. m. Prie buto taip pat priklauso 1/6 dalis kiemo statinių (šulinys, lauko tualetai), turinčių unikalų numerį 6893-3005-4140, esančių Žarėnų g. 63.
Įsigyjant šį nekilnojamąjį turtą, svarbu atkreipti dėmesį į tai, kad jis parduodamas esamos fizinės ir funkcinės būklės. Valstybės įmonė Turto bankas neįsipareigoja nustatyti aktualios nekilnojamojo turto kadastro duomenų būklės ir neatsako už jame esančių daiktų iškraustymą. Be to, bendraturčiai nėra sudarę susitarimų dėl bendros dalinės nuosavybės naudojimosi tvarkos.
Pagrindinis apribojimas yra susijęs su žemės sklypu: gyvenamasis namas yra valstybinėje žemėje, kurios sklypas nėra suformuotas. Teisės į žemės sklypą su šiuo pirkimu nėra perleidžiamos. Ypatingas dėmesys skirtinas lauko tualetui (unikalus Nr. 6893-3005-4140), kuris, kaip nurodoma, neatitinka jo įrengimui ir eksploatavimui taikomų teisės aktų reikalavimų. Potencialiems pirkėjams rekomenduojama atlikti išsamią vietoje esančio statinio apžiūrą ir įvertinti galimas teisines bei ekonomines rizikas, susijusias su jo būkle ar nugriovimu.
Komunikacijų (vandentiekio/nuotekų) šiame objekte nėra. Aukcione taip pat numatytas garantinis mokestis 25 EUR ir registracijos mokestis 1 EUR. Visi su aukcionu susiję sutarties projektai yra prieinami viešai per nurodytas nuorodas.
Įsigyjant šį nekilnojamąjį turtą, svarbu atkreipti dėmesį į tai, kad jis parduodamas esamos fizinės ir funkcinės būklės. Valstybės įmonė Turto bankas neįsipareigoja nustatyti aktualios nekilnojamojo turto kadastro duomenų būklės ir neatsako už jame esančių daiktų iškraustymą. Be to, bendraturčiai nėra sudarę susitarimų dėl bendros dalinės nuosavybės naudojimosi tvarkos.
Pagrindinis apribojimas yra susijęs su žemės sklypu: gyvenamasis namas yra valstybinėje žemėje, kurios sklypas nėra suformuotas. Teisės į žemės sklypą su šiuo pirkimu nėra perleidžiamos. Ypatingas dėmesys skirtinas lauko tualetui (unikalus Nr. 6893-3005-4140), kuris, kaip nurodoma, neatitinka jo įrengimui ir eksploatavimui taikomų teisės aktų reikalavimų. Potencialiems pirkėjams rekomenduojama atlikti išsamią vietoje esančio statinio apžiūrą ir įvertinti galimas teisines bei ekonomines rizikas, susijusias su jo būkle ar nugriovimu.
Komunikacijų (vandentiekio/nuotekų) šiame objekte nėra. Aukcione taip pat numatytas garantinis mokestis 25 EUR ir registracijos mokestis 1 EUR. Visi su aukcionu susiję sutarties projektai yra prieinami viešai per nurodytas nuorodas.
📍 Objekto lokacija
📍 Plungės r. sav. Žlibinų k. Žarėnų g. 63-5
❓ Dažnai užduodami klausimai
Kokia yra buto pradinė kaina aukcione?
Buto, esančio Plungės r. sav., Žlibinų k., Žarėnų g. 63-5, pradinė kaina yra 259 EUR.
Kada vyksta šis nekilnojamojo turto aukcionas?
Aukcionas prasideda 2026-01-14 09:00:00 ir baigiasi 2026-01-15 13:59:59.
Koks yra parduodamo buto bendras plotas?
Buto bendras plotas yra 46,71 kv. m. Prie buto priklauso ir dalis bendro naudojimo patalpų bei 1/6 kiemo statinių.
Ar parduodamos teisės į žemės sklypą?
Ne, parduodamas butas yra valstybinėje žemėje, kurios sklypas nesuformuotas, ir teisės į šį žemės sklypą nėra perleidžiamos.
Kokie papildomi mokesčiai turi būti sumokėti dalyvaujant aukcione?
Reikalingas garantinis mokestis yra 25 EUR, o registracijos mokestis sudaro 1 EUR.
Ar yra komunikacijos (vandentiekis/nuotekos) šiame objekte?
Nekilnojamam turtui komunikacijų nėra nurodyta.
Kokia yra objekto apžiūros tvarka?
Apžiūros organizuojamos iš anksto individualiai suderinus laiką, kreipiantis į Turto banko atstovus, tačiau tik iki registracijos į aukcioną pradžios.