📝 Aprašymas
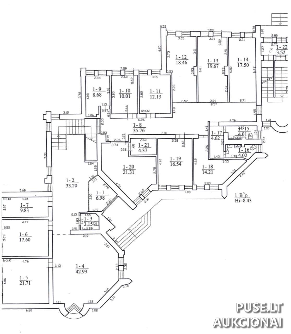
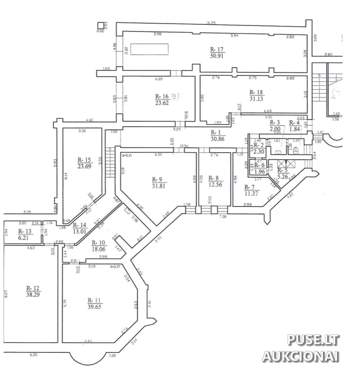
Parduodamas pakartotinis - administracinis pastatas Anykščių mieste, Anykščių rajono savivaldybėje, Kęstučio gatvėje 17. Objekto unikalus numeris 3499-4000-3012, bendras plotas siekia 1159,79 kv. m. Prie pastato priskiriamas 0,1154 ha ploto žemės sklypas, unikalus Nr. 3403-0012-0036.
Kartu su pagrindiniu nekilnojamuoju turtu parduodami ir su juo neatsiejamai susiję įrenginiai, kurių vertės įskaičiuotos į bendrą pradinę kainą. Tai yra Grūdinto stiklo pertvara (inventorinis numeris I00042450) už 1.21 EUR su PVM, Oro kondicionavimo sistema Midea (Inventorinis Nr. I00043587) už 304.53 EUR su PVM, Apsauginė signalizacija (Inventorinis Nr. I00039536) už 0.01 EUR su PVM, Kondicionierius MWMO1OF/ML CO1OB (Inventorinis Nr. I00034840) už 0.01 EUR su PVM, Gaisro aptikimo signalizacija (Inventorinis Nr. I00039537) už 0.01 EUR su PVM, bei Plastiko stiklo sienelė su durimis, skirta 1-2 fojė (inv. Nr. I00043589), kurios vertė yra 633.36 EUR su PVM.
Parduodamas objektas yra Anykščių regioninio parko (ID Nr. 0700000000029) gyvenamojo prioriteto funkcinėje zonoje. Todėl jo naudojimas, tvarkymas bei visų statinių statybos, rekonstrukcijos ir remonto darbai yra griežtai reglamentuojami Lietuvos Respublikos žemės, Saugomų teritorijų ir Statybos įstatymais bei jų įgyvendinamaisiais teisės aktais.
Turtas parduodamas esamos faktinės būklės ir pagal galiojančius nekilnojamojo turto kadastro duomenis. VĮ Turto bankas neįsipareigoja tikrinti ir atnaujinti kadastro duomenų būklės.
Kartu su pagrindiniu nekilnojamuoju turtu parduodami ir su juo neatsiejamai susiję įrenginiai, kurių vertės įskaičiuotos į bendrą pradinę kainą. Tai yra Grūdinto stiklo pertvara (inventorinis numeris I00042450) už 1.21 EUR su PVM, Oro kondicionavimo sistema Midea (Inventorinis Nr. I00043587) už 304.53 EUR su PVM, Apsauginė signalizacija (Inventorinis Nr. I00039536) už 0.01 EUR su PVM, Kondicionierius MWMO1OF/ML CO1OB (Inventorinis Nr. I00034840) už 0.01 EUR su PVM, Gaisro aptikimo signalizacija (Inventorinis Nr. I00039537) už 0.01 EUR su PVM, bei Plastiko stiklo sienelė su durimis, skirta 1-2 fojė (inv. Nr. I00043589), kurios vertė yra 633.36 EUR su PVM.
Parduodamas objektas yra Anykščių regioninio parko (ID Nr. 0700000000029) gyvenamojo prioriteto funkcinėje zonoje. Todėl jo naudojimas, tvarkymas bei visų statinių statybos, rekonstrukcijos ir remonto darbai yra griežtai reglamentuojami Lietuvos Respublikos žemės, Saugomų teritorijų ir Statybos įstatymais bei jų įgyvendinamaisiais teisės aktais.
Turtas parduodamas esamos faktinės būklės ir pagal galiojančius nekilnojamojo turto kadastro duomenis. VĮ Turto bankas neįsipareigoja tikrinti ir atnaujinti kadastro duomenų būklės.
📍 Objekto lokacija
📍 Anykščių r. sav. Anykščių m. Kęstučio g. 17
❓ Dažnai užduodami klausimai
Kokia yra administracinio pastato Kęstučio g. 17 Anykščiuose pradinė kaina ir kada baigiasi aukcionas?
Pradinė kaina yra 332100 EUR. Aukcionas baigiasi 2026-01-27 13:59:59.
Kokie yra mokėjimo reikalavimai, norint dalyvauti aukcione?
Reikalingas 100 EUR registracijos mokestis ir 33210 EUR garantinis mokestis. Mokėjimus galima atlikti tiesiogiai per elektroninę bankininkystę (NEOPAY) arba pavedimu į sąskaitą LT14 7044 0600 0044 3912 AB SEB banke, nurodžius el. aukciono numerį.
Koks yra parduodamo pastato bendras plotas ir žemės sklypo dydis?
Pastato bendras plotas yra 1159,79 kv. m, o priskiriamas žemės sklypas yra 0,1154 ha.
Kada vyksta registracija į aukcioną?
Registracija į aukcioną vyksta nuo 2026-01-19 00:00:00 iki 2026-01-21 23:59:59.
Kokių apribojimų reikia laikytis tvarkant šį nekilnojamąjį turtą?
Objektas yra Anykščių regioninio parko gyvenamojo prioriteto funkcinėje zonoje, todėl jo naudojimas ir tvarkymas, taip pat statybos darbai, reglamentuojami Lietuvos Respublikos žemės, Saugomų teritorijų ir Statybos įstatymais.
Kaip galima apžiūrėti administracinį pastatą Anykščiuose?
Dėl apžiūros reikia kreiptis individualiai ir iš anksto suderinti laiką iki aukciono registracijos pabaigos.