📝 Aprašymas
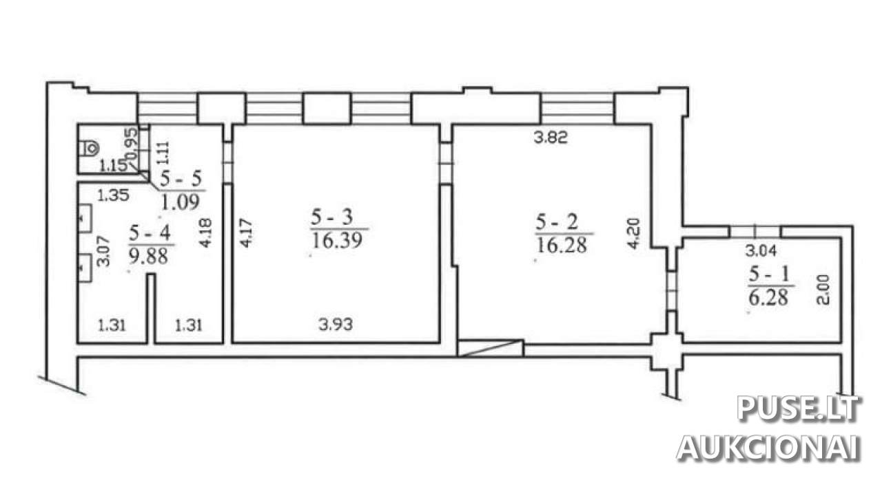
Parduodamos dalinės buitinės patalpos Mažeikių rajono savivaldybėje, Pumpurų kaimo Pumpurinės gatvėje 11-5, 1/1 dalinė nuosavybė, su 49.92 kv. m bendru plotu. Šių patalpų pradinė kaina aukcione sudaro 7590 EUR. Visas turto unikalus numeris - 6189-8000-8011:0005. Parduodama esamos fizinės ir funkcinės būklės, pagal galiojančius kadastro duomenis. Apžiūrint vietoje pastebėta, kad patalpoje 5-1 yra įstatyti langai ir iškirstos dvi angos.
Įsigyjant šį turtą svarbu žinoti, kad VĮ Turto bankas neturi informacijos apie statinio rekonstrukcijos laiką ir atitikimą galiojusiems teisės aktams, todėl neįsipareigoja nustatyti aktualios kadastro būklės ar ją įregistruoti. Potencialus pirkėjas privalo pats įvertinti visas su šios būklės turto pirkimu susijusias teisines ir ekonomines rizikas, galimus įrengimo kaštus ir atitikimą teisės aktų reikalavimams. VĮ Turto bankas neatsako už jokius turto trūkumus ar leidimų nebuvimą.
Papildoma sąlyga – parduodami statiniai yra valstybinėje žemėje, kurioje sklypas vis dar nesuformuotas. VĮ Turto bankas šiuo sandoriu teisių į žemės sklypą ar jo dalį neperleidžia ir neturi.
Aukciono dalyvio registracijos mokestis yra 30 EUR, o garantinis mokestis – 759 EUR. Registracijos laikotarpis yra nuo 2026-01-19 00:00:00 iki 2026-01-21 23:59:59. Pats elektroninis aukcionas vyks nuo 2026-01-26 09:00:00 iki 2026-01-27 13:59:59. Pirkimo-pardavimo sutarties projektus galima peržiūrėti nurodytose nuorodose.
Įsigyjant šį turtą svarbu žinoti, kad VĮ Turto bankas neturi informacijos apie statinio rekonstrukcijos laiką ir atitikimą galiojusiems teisės aktams, todėl neįsipareigoja nustatyti aktualios kadastro būklės ar ją įregistruoti. Potencialus pirkėjas privalo pats įvertinti visas su šios būklės turto pirkimu susijusias teisines ir ekonomines rizikas, galimus įrengimo kaštus ir atitikimą teisės aktų reikalavimams. VĮ Turto bankas neatsako už jokius turto trūkumus ar leidimų nebuvimą.
Papildoma sąlyga – parduodami statiniai yra valstybinėje žemėje, kurioje sklypas vis dar nesuformuotas. VĮ Turto bankas šiuo sandoriu teisių į žemės sklypą ar jo dalį neperleidžia ir neturi.
Aukciono dalyvio registracijos mokestis yra 30 EUR, o garantinis mokestis – 759 EUR. Registracijos laikotarpis yra nuo 2026-01-19 00:00:00 iki 2026-01-21 23:59:59. Pats elektroninis aukcionas vyks nuo 2026-01-26 09:00:00 iki 2026-01-27 13:59:59. Pirkimo-pardavimo sutarties projektus galima peržiūrėti nurodytose nuorodose.
📍 Objekto lokacija
📍 Mažeikių r. sav. Pumpurų k. Pumpurinės g. 11-5
❓ Dažnai užduodami klausimai
Kokia buitinių patalpų pradinė kaina ir plotas?
Pradinė aukciono kaina yra 7590 EUR, o bendras patalpų plotas yra 49.92 kv. m.
Kada vyksta aukcionas dėl šio turto Mažeikių rajone?
Aukcionas prasideda 2026-01-26 09:00:00 ir baigiasi 2026-01-27 13:59:59.
Kokia yra objekto vieta ir unikalus kodas?
Objektas yra Mažeikių r. sav., Pumpurų k., Pumpurinės g. 11-5. Unikalus Nr.: 6189-8000-8011:0005.
Kokie papildomi mokesčiai taikomi dalyvaujant aukcione?
Reikalingas 30 EUR registracijos mokestis ir 759 EUR garantinis mokestis.
Kada galima registruotis į aukcioną?
Registracija vyksta nuo 2026-01-19 00:00:00 iki 2026-01-21 23:59:59.
Ar parduodamas žemės sklypas kartu su patalpomis?
Parduodami statiniai yra valstybinėje žemėje, kurioje sklypas nesuformuotas. Pardavėjas teisių į sklypą neperleidžia.
Kokią atsakomybę prisiima VĮ Turto bankas dėl turto būklės?
VĮ Turto bankas neatsako už turto trūkumus, neatitikimą teisės aktams ar kadastro duomenų neatitikimus. Pirkėjas privalo pats įvertinti rizikas.