📝 Aprašymas
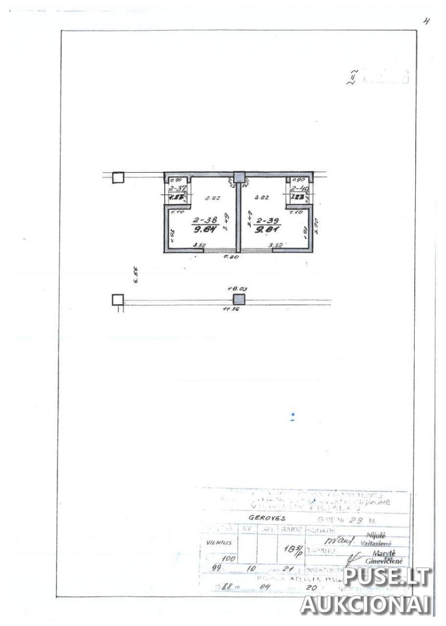
Parduodamos 1/1 dalies negyvenamosios patalpos Vilniaus miesto savivaldybėje, esančios Gerovės g. 29-13. Tai yra pakartotinis savivaldybės aukcionas, kurio pradinė kaina siekia 39000 EUR. Patalpos yra 22,11 kv. m ploto ir įsikūrusios dviejų aukštų mūrinio pastato antrame aukšte.
Aukcionas prasideda 2026-01-26 09:00:00 ir baigiasi 2026-01-27 13:59:59. Registracija vyksta nuo 2026-01-19 00:00:00 iki 2026-01-21 23:59:59.
Pardavimo sąlygos nurodo, kad patalpos parduodamos esamos būklės. Vilniaus miesto savivaldybė neįsipareigoja iškraustyti patalpose esančių daiktų. Skolos už elektros energijos tiekimą šiam objektui nėra nustatytos. Pirkėjas turi atkreipti dėmesį, kad savivaldybė neįsipareigoja užtikrinti nenutrūkstamo elektros tiekimo ar vidaus tinklų techninę tvarką. Visi su elektros tinklų remontu ir atnaujinimu susiję kaštai ir rizika tenka naujajam savininkui, sprendžiami tiesiogiai su tiekėjais.
Registruojantis reikia sumokėti 3900 EUR garantinį mokestį bei 145 EUR registracijos mokestį. Pirkimo-pardavimo sutartis turi būti pasirašyta per 30 dienų nuo aukciono, o visa kaina sumokėta per 10 dienų po sutarties pasirašymo.
Turto apžiūra organizuojama 2026-01-07 9.00 val. ir 2026-01-14 9.00 val. Susitarimas dėl apžiūros laiko privalomas.
Aukcionas prasideda 2026-01-26 09:00:00 ir baigiasi 2026-01-27 13:59:59. Registracija vyksta nuo 2026-01-19 00:00:00 iki 2026-01-21 23:59:59.
Pardavimo sąlygos nurodo, kad patalpos parduodamos esamos būklės. Vilniaus miesto savivaldybė neįsipareigoja iškraustyti patalpose esančių daiktų. Skolos už elektros energijos tiekimą šiam objektui nėra nustatytos. Pirkėjas turi atkreipti dėmesį, kad savivaldybė neįsipareigoja užtikrinti nenutrūkstamo elektros tiekimo ar vidaus tinklų techninę tvarką. Visi su elektros tinklų remontu ir atnaujinimu susiję kaštai ir rizika tenka naujajam savininkui, sprendžiami tiesiogiai su tiekėjais.
Registruojantis reikia sumokėti 3900 EUR garantinį mokestį bei 145 EUR registracijos mokestį. Pirkimo-pardavimo sutartis turi būti pasirašyta per 30 dienų nuo aukciono, o visa kaina sumokėta per 10 dienų po sutarties pasirašymo.
Turto apžiūra organizuojama 2026-01-07 9.00 val. ir 2026-01-14 9.00 val. Susitarimas dėl apžiūros laiko privalomas.
📍 Objekto lokacija
📍 Vilniaus m. sav. Vilniaus m. Gerovės g. 29-13
❓ Dažnai užduodami klausimai
Kokia negyvenamųjų patalpų Gerovės g. 29-13 pradinė kaina aukcione?
Pradinė negyvenamųjų patalpų, kurių unikalus Nr. 1098-7006-3013:0008, kaina yra 39000 EUR.
Kada vyksta ir kada baigiasi šis Vilniaus miesto savivaldybės aukcionas?
Aukcionas prasideda 2026-01-26 09:00:00 ir baigiasi 2026-01-27 13:59:59.
Kokiu terminu reikia sumokėti garantinį ir registracijos mokesčius?
Garantinis mokestis (3900 EUR) ir registracijos mokestis (145 EUR) turi būti sumokėti iki 2026-01-21 23:59:59 (registracijos pabaigos).
Kokie yra pagrindiniai apribojimai ar įsipareigojimai, susiję su patalpų būkle ir elektra?
Patalpos parduodamos esamos būklės, be daiktų iškrovimo. Pirkėjas pats atsako už visus elektros tiekimo atnaujinimo ir vidaus tinklų remonto kaštus ir riziką.
Kada galima apžiūrėti patalpas Gerovės g. 29 Vilniuje?
Patalpos apžiūros datos: Pirmą kartą 2026-01-07 9.00 val. ir antrą kartą 2026-01-14 9.00 val. Būtina iš anksto suderinti laiką.
Kiek laiko duodama sutarties pasirašymui ir pilnam apmokėjimui po aukciono laimėjimo?
Pirkimo-pardavimo sutartis sudaroma per 30 dienų nuo aukciono dienos, o visa kaina sumokama per 10 dienų po sutarties pasirašymo.