📝 Aprašymas
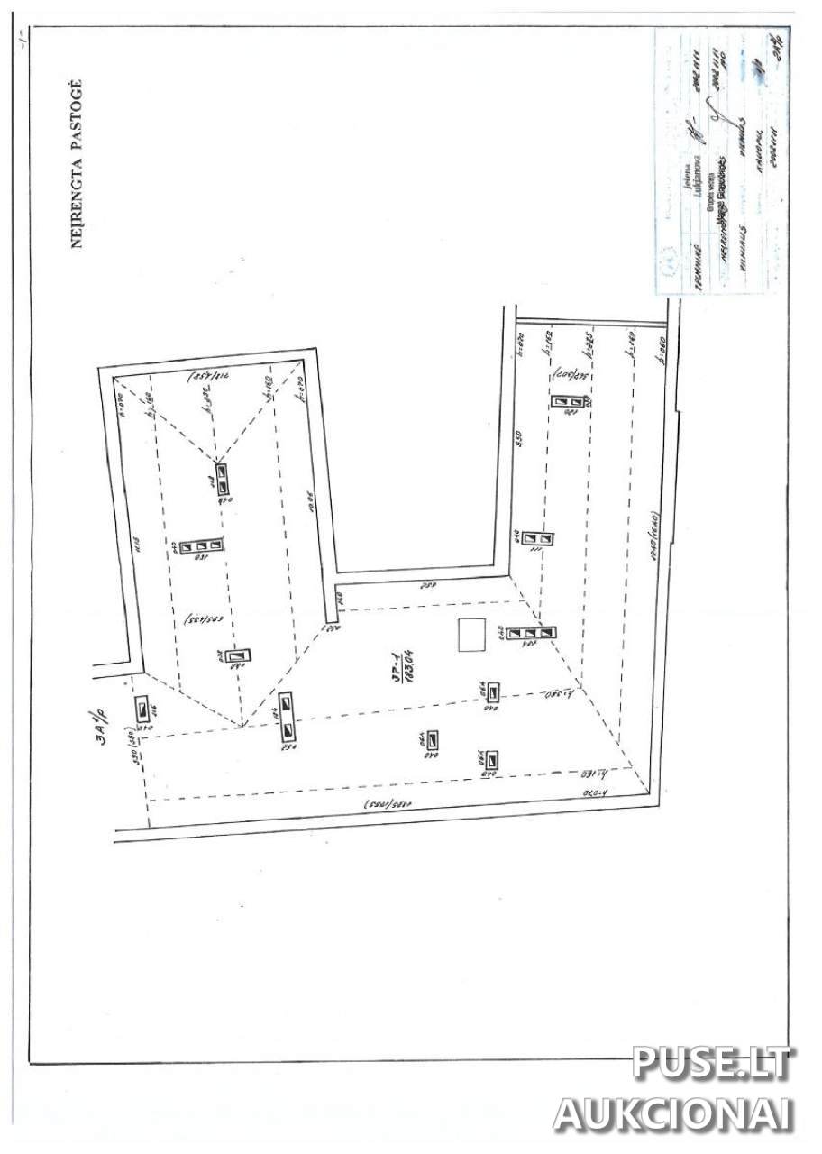
Parduodama 151/1000 dalis negyvenamosios patalpos - neįrengta pastogė (unikalus Nr. 1094-0176-6020:0049) esanti Vilniaus mieste, Plačioji g. 8. Ši dalis sudaro 27,64 kv. m. bendro ploto (iš viso pastato ploto 183,04 kv. m.) dviejų aukštų mūrinio pastato pastogėje. Patalpos parduodamos esamos būklės, neįrengtos. Aukcionas paskelbtas kaip pakartotinis. Pradinė kaina siekia 9646 EUR, o Tarnybinis mokestis yra 964 EUR ir Registracijos mokestis yra 70 EUR.
Objektas yra unikaliame kultūros paveldo objekte – Namų komplekse (Kultūros vertybių registro kodas 33747), kurio pirmas namas turi kodą 10626. Dėl šios priežasties parduodamų patalpų naudojimas ir bet kokie statybos, remonto ar rekonstrukcijos darbai yra griežtai reglamentuojami Lietuvos Respublikos nekilnojamojo kultūros paveldo apsaugos įstatymu bei kitais susijusiais teisės aktais.
Savivaldybė patvirtina, kad skolų už elektros energijos tiekimą šiam objektui nėra. Tačiau pirkėjas turi suprasti, kad savivaldybė negarantuoja nenutrūkstamo ar techniškai tvarkingo elektros tiekimo ir vidaus elektros tinklų būklės. Visi su elektros tiekimo atnaujinimu, remontu ir sąlygų užtikrinimu susiję kaštai ir rizika pilnai tenka naujam savininkui, sprendžiant juos tiesiogiai su paslaugų tiekėjais.
Aukcionas prasideda 2026-01-26 09:00:00 ir baigiasi 2026-01-27 13:59:59. Registracija vyksta nuo 2026-01-19 00:00:00 iki 2026-01-21 23:59:59. Pirkimo-pardavimo sutartis turi būti pasirašyta per 30 dienų nuo aukciono vykdymo dienos, o visa kaina sumokėta per 10 dienų po sutarties pasirašymo.
Objektas yra unikaliame kultūros paveldo objekte – Namų komplekse (Kultūros vertybių registro kodas 33747), kurio pirmas namas turi kodą 10626. Dėl šios priežasties parduodamų patalpų naudojimas ir bet kokie statybos, remonto ar rekonstrukcijos darbai yra griežtai reglamentuojami Lietuvos Respublikos nekilnojamojo kultūros paveldo apsaugos įstatymu bei kitais susijusiais teisės aktais.
Savivaldybė patvirtina, kad skolų už elektros energijos tiekimą šiam objektui nėra. Tačiau pirkėjas turi suprasti, kad savivaldybė negarantuoja nenutrūkstamo ar techniškai tvarkingo elektros tiekimo ir vidaus elektros tinklų būklės. Visi su elektros tiekimo atnaujinimu, remontu ir sąlygų užtikrinimu susiję kaštai ir rizika pilnai tenka naujam savininkui, sprendžiant juos tiesiogiai su paslaugų tiekėjais.
Aukcionas prasideda 2026-01-26 09:00:00 ir baigiasi 2026-01-27 13:59:59. Registracija vyksta nuo 2026-01-19 00:00:00 iki 2026-01-21 23:59:59. Pirkimo-pardavimo sutartis turi būti pasirašyta per 30 dienų nuo aukciono vykdymo dienos, o visa kaina sumokėta per 10 dienų po sutarties pasirašymo.
📍 Objekto lokacija
📍 Vilniaus m. sav. Vilniaus m. Plačioji g. 8
❓ Dažnai užduodami klausimai
Kokia neįrengtos pastogės dalies pradinė kaina Vilniuje, Plačioji g. 8?
Neįrengtos pastogės 151/1000 dalies (27,64 kv. m) pradinė kaina yra 9646 EUR.
Kada vyks nekilnojamojo turto aukcionas ir kada baigiasi registracija?
Aukcionas prasidės 2026-01-26 09:00:00 ir baigsis 2026-01-27 13:59:59. Registracija baigiasi 2026-01-21 23:59:59.
Kokios yra papildomos finansinės įmokos dalyvaujant aukcione?
Privalomas Garantinis mokestis yra 964 EUR, o Registracijos mokestis yra 70 EUR.
Kokie yra apribojimai, susiję su šio objekto kultūrine verte?
Objektas yra nekilnojamosios kultūros vertybės - Namų komplekso dalis, todėl jo naudojimas, statybos, remonto ar rekonstrukcijos darbai yra griežtai reglamentuojami Lietuvos Respublikos nekilnojamojo kultūros paveldo apsaugos įstatymu.
Ar pardavėjas užtikrina elektros tiekimą ir sutvarkytą vidaus tinklą?
Savivaldybė neįsipareigoja užtikrinti nenutrūkstamo elektros tiekimo ar techniškai tvarkingo vidaus tinklo. Visus su tuo susijusius klausimus sprendžia pirkėjas savo lėšomis ir rizika.
Kada galima apžiūrėti parduodamą neįrengtą patalpą Plačioji g. 8?
Apžiūros numatytos 2026-01-06 10.00 val. ir 2026-01-13 10.00 val., tačiau laiką būtina suderinti su atsakingais specialistais.
Per kiek laiko po sutarties pasirašymo reikia sumokėti visą nekilnojamojo turto kainą?
Visa nekilnojamojo turto kaina turi būti sumokėta ne vėliau kaip per 10 dienų po nekilnojamojo turto pirkimo-pardavimo sutarties pasirašymo.