📝 Aprašymas
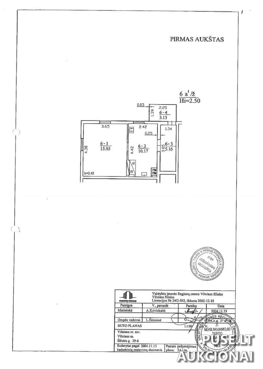
Parduodamas 34,41 kv. m ploto butas Vilniaus mieste, Šilutės g. 31-6, taikant pakartotino pardavimo procedūrą per savivaldybės organizuojamą viešą aukcioną. Patalpos priklauso vieno aukšto mediniam pastatui, unikalaus Nr. 1094-0464-4020:0007. Šis objektas yra strategiškai svarbioje teritorijoje – medinėse Šnipiškėse (unikalaus kodo 12599 teritorija) ir Vilniaus senamiesčio vizualinės apsaugos zonoje (unikalaus kodo 16073 teritorija).
Aukcionas prasideda 2026-01-26 09:00:00 ir baigiasi 2026-01-27 13:59:59. Registracija vyksta nuo 2026-01-19 00:00:00 iki 2026-01-21 23:59:59. Būtina sumokėti 5127 EUR garantinį mokestį ir 145 EUR registracijos mokestį.
Objektas parduodamas esamos būklės. Svarbios naudojimo sąlygos susijusios su kultūros paveldo apsauga – visi statybos, remonto ar rekonstrukcijos darbai turi būti vykdomi vadovaujantis Lietuvos Respublikos nekilnojamo kultūros paveldo apsaugos įstatymu. Savivaldybė neprisiima atsakomybės už vidaus elektros tinklo tvarkingumą ar elektros tiekimo nepertraukiamumą; pirkėjas įsipareigoja visus su remonto ir tiekimo atnaujinimu susijusius kaštus padengti savo lėšomis.
Turto apžiūros galimos 2026-01-08 14.00 val. ir 2026-01-15 14.00 val. Sutartis turi būti sudaryta per 30 dienų nuo pardavimo, o visa kaina sumokėta per 10 dienų po sutarties pasirašymo.
Aukcionas prasideda 2026-01-26 09:00:00 ir baigiasi 2026-01-27 13:59:59. Registracija vyksta nuo 2026-01-19 00:00:00 iki 2026-01-21 23:59:59. Būtina sumokėti 5127 EUR garantinį mokestį ir 145 EUR registracijos mokestį.
Objektas parduodamas esamos būklės. Svarbios naudojimo sąlygos susijusios su kultūros paveldo apsauga – visi statybos, remonto ar rekonstrukcijos darbai turi būti vykdomi vadovaujantis Lietuvos Respublikos nekilnojamo kultūros paveldo apsaugos įstatymu. Savivaldybė neprisiima atsakomybės už vidaus elektros tinklo tvarkingumą ar elektros tiekimo nepertraukiamumą; pirkėjas įsipareigoja visus su remonto ir tiekimo atnaujinimu susijusius kaštus padengti savo lėšomis.
Turto apžiūros galimos 2026-01-08 14.00 val. ir 2026-01-15 14.00 val. Sutartis turi būti sudaryta per 30 dienų nuo pardavimo, o visa kaina sumokėta per 10 dienų po sutarties pasirašymo.
📍 Objekto lokacija
📍 Vilniaus m. sav. Vilniaus m. Šilutės g. 31-6
❓ Dažnai užduodami klausimai
Kokia yra buto pradinė kaina aukcione?
Buto pradinė kaina aukcione yra 51273 EUR.
Kada vyks nekilnojamojo turto aukcionas?
Aukcionas prasidės 2026-01-26 09:00:00 ir baigsis 2026-01-27 13:59:59.
Kaip ilgai trunka registracija į aukcioną?
Registracija į elektroninį aukcioną prasideda 2026-01-19 00:00:00 ir baigiasi 2026-01-21 23:59:59.
Kokie papildomi mokesčiai yra taikomi dalyvaujant aukcione?
Reikalingas 5127 EUR garantinis mokestis ir 145 EUR registracijos mokestis.
Kokios specialios sąlygos taikomos butui dėl jo vietos Vilniuje?
Butas yra saugomose nekilnojamosios kultūros vertybės - medinėse Šnipiškėse (kodo 12599 teritorija) ir Vilniaus senamiesčio vizualinės apsaugos zonoje (kodo 16073 teritorija), todėl visi tvarkymo darbai reglamentuojami Paveldosaugos įstatymu.
Ar pardavėjas garantuoja elektros tiekimą ir tinklo būklę?
Ne, savivaldybė neįsipareigoja užtikrinti nenutrūkstamo elektros tiekimo ar vidaus tinklo tvarkingumo. Pirkėjas visus su tuo susijusius remonto ir atnaujinimo klausimus sprendžia savo lėšomis ir rizika.
Kada galima apžiūrėti parduodamą butą Šilutės g. 31-6?
Apžiūros yra numatytos 2026-01-08 14.00 val. ir 2026-01-15 14.00 val.