📝 Aprašymas
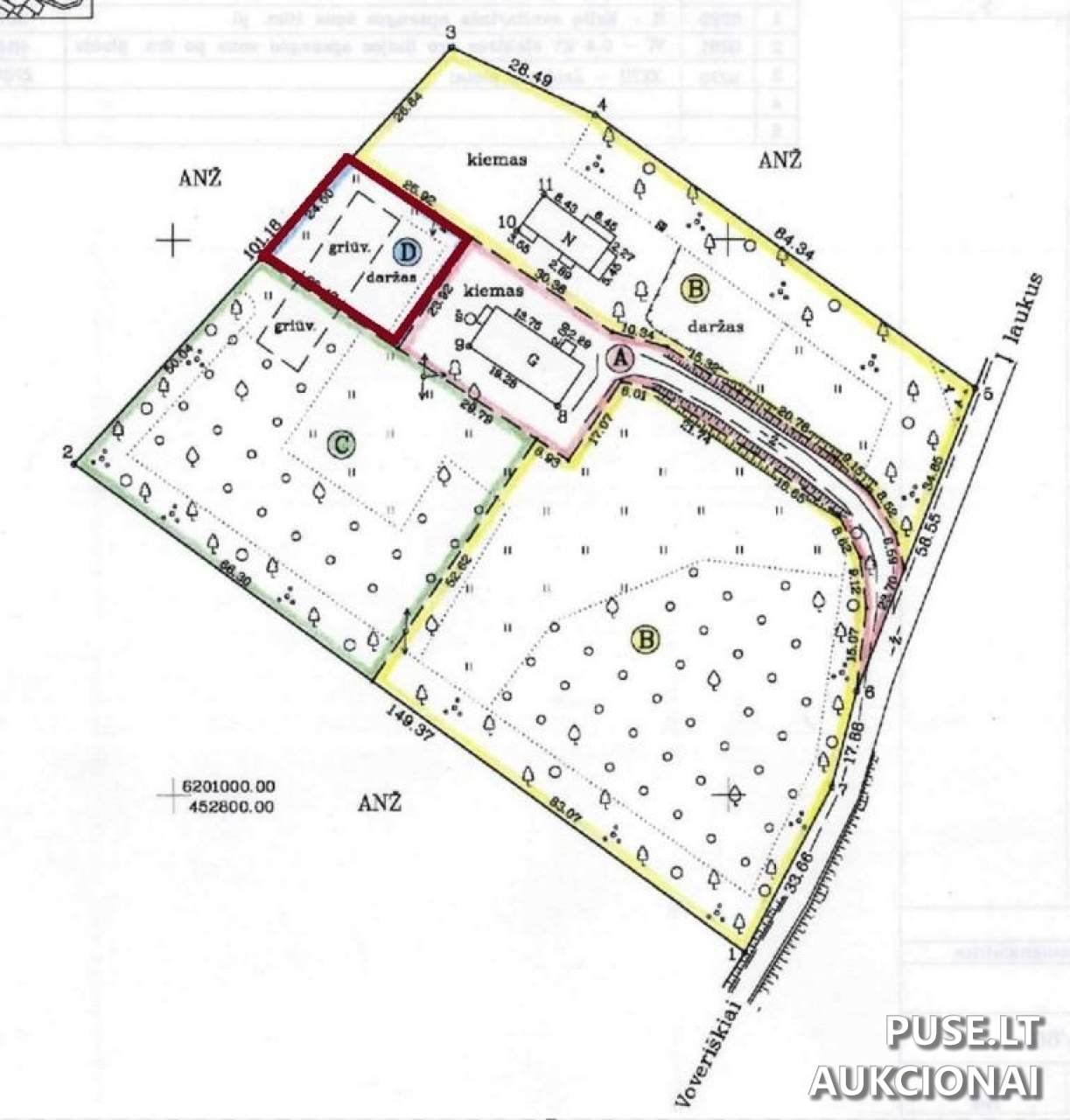
Parduodamas 1/1 dalies nuosavybės teise priklausantis butas Šiaulių rajono savivaldybėje, Voveriškių kaime, Pervažos gatvėje 60-3, kurio bendras plotas siekia 24.90 kvadratinius metrus. Šis nekilnojamasis turtas parduodamas su priklausančia 0.1021 ha žemės sklypo dalimi, kuri yra grafiškai pažymėta bendrajame 1.3918 ha sklype (unikalus Nr. 9177-0003-0019) ir yra būtina parduodamiems pastatams eksploatuoti.
Nekilnojamasis turtas parduodamas esamos faktinės būklės, vadovaujantis naujausiais nekilnojamojo turto kadastro duomenimis. Valstybės įmonė Turto bankas neprisiima įsipareigojimų nustatyti aktualią būklę ar iškraustyti iš patalpų esančius daiktus ar trečiuosius asmenis. Parduodamas turtas faktiškai naudojamas trečiojo asmens, todėl apžiūra yra ribota ir organizuojama individualiai suderinus laiką iki registracijos į aukcioną pradžios.
Aukciono dalyvio registracijos mokestis yra 10 EUR, o garantinis mokestis – 120 EUR. Aukcionas prasidės 2026 vasario 2 dieną ir baigsis 2026 vasario 3 dieną. Registracija į aukcioną vyksta nuo 2026 sausio 26 dienos iki 2026 sausio 28 dienos.
Namo bendrojo naudojimo objektų valdytoju yra UAB Kuršėnų komunalinis ūkis. Pardavėjas yra Lietuvos Respublika. Visas pirkimo-pardavimo sutarties projektas prieinamas per nurodytą nuorodą organizatoriaus skelbime.
Nekilnojamasis turtas parduodamas esamos faktinės būklės, vadovaujantis naujausiais nekilnojamojo turto kadastro duomenimis. Valstybės įmonė Turto bankas neprisiima įsipareigojimų nustatyti aktualią būklę ar iškraustyti iš patalpų esančius daiktus ar trečiuosius asmenis. Parduodamas turtas faktiškai naudojamas trečiojo asmens, todėl apžiūra yra ribota ir organizuojama individualiai suderinus laiką iki registracijos į aukcioną pradžios.
Aukciono dalyvio registracijos mokestis yra 10 EUR, o garantinis mokestis – 120 EUR. Aukcionas prasidės 2026 vasario 2 dieną ir baigsis 2026 vasario 3 dieną. Registracija į aukcioną vyksta nuo 2026 sausio 26 dienos iki 2026 sausio 28 dienos.
Namo bendrojo naudojimo objektų valdytoju yra UAB Kuršėnų komunalinis ūkis. Pardavėjas yra Lietuvos Respublika. Visas pirkimo-pardavimo sutarties projektas prieinamas per nurodytą nuorodą organizatoriaus skelbime.
📍 Objekto lokacija
📍 Šiaulių r. sav. Voveriškių k. Pervažos g. 60-3
❓ Dažnai užduodami klausimai
Kokia yra pradinė buto kaina ir unikalus kodas?
Buto bendroji kaina yra 1200 EUR. Unikalus Nr. yra 9191-7000-3019:0004.
Kada vyks nekilnojamojo turto aukcionas?
Aukcionas prasidės 2026-02-02 09:00:00 ir baigsis 2026-02-03 13:59:59.
Per kokį laikotarpį galima registruotis dalyvavimui aukcione?
Registracija pradedama 2026-01-26 00:00:00 ir baigiasi 2026-01-28 23:59:59.
Kokie privalomi mokesčiai taikomi aukciono dalyviams?
Būtinas registracijos mokestis yra 10 EUR, o garantinis mokestis – 120 EUR.
Kokios yra pagrindinės sąlygos dėl objekto būklės ir naudojimo?
Nekilnojamasis turtas parduodamas esamos faktinės būklės. Jis naudojamas trečiojo asmens, ir VĮ Turto bankas neįsipareigoja iškeldinti asmenų ar nustatyti aktualios kadastro būklės iki nuosavybės perleidimo.
Kokia parduodama žemės sklypo dalis ir kas yra namo valdytojas?
Parduodama 0.1021 ha žemės sklypo dalis, būtina pastatams eksploatuoti. Namo bendrojo naudojimo objektų valdytojas yra UAB Kuršėnų komunalinis ūkis.