📝 Aprašymas
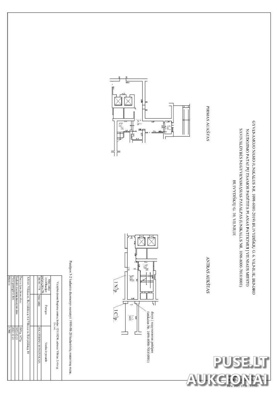
Parduodamos negyvenamosios patalpos Vilniaus miesto savivaldybėje, esančios Buivydiškių g. 10-3, Vilnius. Tai negyvenamosios patalpos, kurios sudaro 1/1 visą parduodamą dalį. Patalpos yra 2 aukštų mūrinio pastato antrajame aukšte, bendras plotas siekia 513,47 kv. m. Šis nekilnojamasis turtas parduodamas esamos fizinės ir funkcinės būklės, vadovaujantis esamais nekilnojamojo turto kadastro duomenimis. Savivaldybė neįsipareigoja atlikti kadastro duomenų tikslinimo, ypač po įėjimo/išėjimo per patalpas, pažymėtas indeksais 3-1, 3-15, 3-16, panaikinimo.
Objektas yra nustatytas su servitutu, įregistruotu nekilnojamojo turto registre 2023-10-17 nutartimi. Šis servitutas suteikia praėjimą per pirmo aukšto bendrojo naudojimo patalpas (plane pažymėtas a-1, a-2, a-5, a-137) ir antro aukšto bendrojo naudojimo patalpas (plane pažymėtas a-31, a-35) patalpoms, unikalus Nr.1098-6001-2019, siekiant užtikrinti patekimą į Vilniaus miesto savivaldybės patalpas unikalus Nr.1098-8000-7018:0001. Vilniaus miesto savivaldybė neprisiima atsakomybės už patalpose esančių daiktų iškraustymą.
Skolų už elektros energijos tiekimą šiam objektui nėra. Tačiau pirkėjas turi žinoti, kad savivaldybė neįsipareigoja užtikrinti stabilaus elektros tiekimo ar vidaus tinklo tvarkingumo. Galimi laikini elektros tiekimo apribojimai. Visi su remonto, elektros tiekimo atnaujinimu susiję kaštai ir rizika tenka pirkėjui, kuris visus klausimus sprendžia tiesiogiai su tiekėjais.
Objektas yra nustatytas su servitutu, įregistruotu nekilnojamojo turto registre 2023-10-17 nutartimi. Šis servitutas suteikia praėjimą per pirmo aukšto bendrojo naudojimo patalpas (plane pažymėtas a-1, a-2, a-5, a-137) ir antro aukšto bendrojo naudojimo patalpas (plane pažymėtas a-31, a-35) patalpoms, unikalus Nr.1098-6001-2019, siekiant užtikrinti patekimą į Vilniaus miesto savivaldybės patalpas unikalus Nr.1098-8000-7018:0001. Vilniaus miesto savivaldybė neprisiima atsakomybės už patalpose esančių daiktų iškraustymą.
Skolų už elektros energijos tiekimą šiam objektui nėra. Tačiau pirkėjas turi žinoti, kad savivaldybė neįsipareigoja užtikrinti stabilaus elektros tiekimo ar vidaus tinklo tvarkingumo. Galimi laikini elektros tiekimo apribojimai. Visi su remonto, elektros tiekimo atnaujinimu susiję kaštai ir rizika tenka pirkėjui, kuris visus klausimus sprendžia tiesiogiai su tiekėjais.
📍 Objekto lokacija
📍 Vilniaus m. sav. Vilniaus m. Buivydiškių g. 10-3
❓ Dažnai užduodami klausimai
Kokia negyvenamųjų patalpų adresas ir bendras plotas?
Nekilnojamasis turtas yra Buivydiškių g. 10-3, Vilnius, ir jo bendras plotas yra 513,47 kvadratinio metro.
Kokia pradinė šių patalpų kaina ir garantinis mokestis?
Pradinė kaina aukcione yra 398700 EUR. Garantinis mokestis, kurį reikia sumokėti, sudaro 39870 EUR, o registracijos mokestis yra 145 EUR.
Kada vyks nekilnojamojo turto aukcionas?
Aukcionas prasidės 2026-02-24 09:00:00 ir baigsis 2026-02-25 13:59:59.
Kokia yra registracijos į aukcioną eiga ir terminai?
Registracija prasideda 2026-02-17 00:00:00 ir baigiasi 2026-02-19 23:59:59. Sąskaita mokėjimams: LT63 7044 0600 0123 5132 AB SEB banke, mokant Vilniaus miesto savivaldybės administracijai (kodas 188710061).
Kokie apribojimai taikomi parduodamoms patalpoms dėl servituto ir būklės?
Patalpos parduodamos esamos būklės su jau įregistruotu servitutu (praėjimas per bendrojo naudojimo pirmo ir antro aukšto patalpas) ir be savivaldybės įsipareigojimo tikrinti kadastro duomenis ar iškraustyti esamus daiktus.
Kokios sąlygos taikomos elektros tiekimui po objekto įsigijimo?
Savivaldybė neįsipareigoja garantuoti nenutrūkstamo elektros tiekimo ar vidaus tinklo tvarkingumo. Visi remonto ir tiekimo atnaujinimo klausimai sprendžiami pirkėjo lėšomis ir rizika.
Kada reikia sudaryti pirkimo-pardavimo sutartį ir apmokėti visą kainą?
Pirkimo-pardavimo sutartis turi būti sudaryta per 30 dienų nuo aukciono vykdymo dienos, o visa kaina sumokėta ne vėliau kaip per 10 dienų po sutarties pasirašymo.