📝 Aprašymas
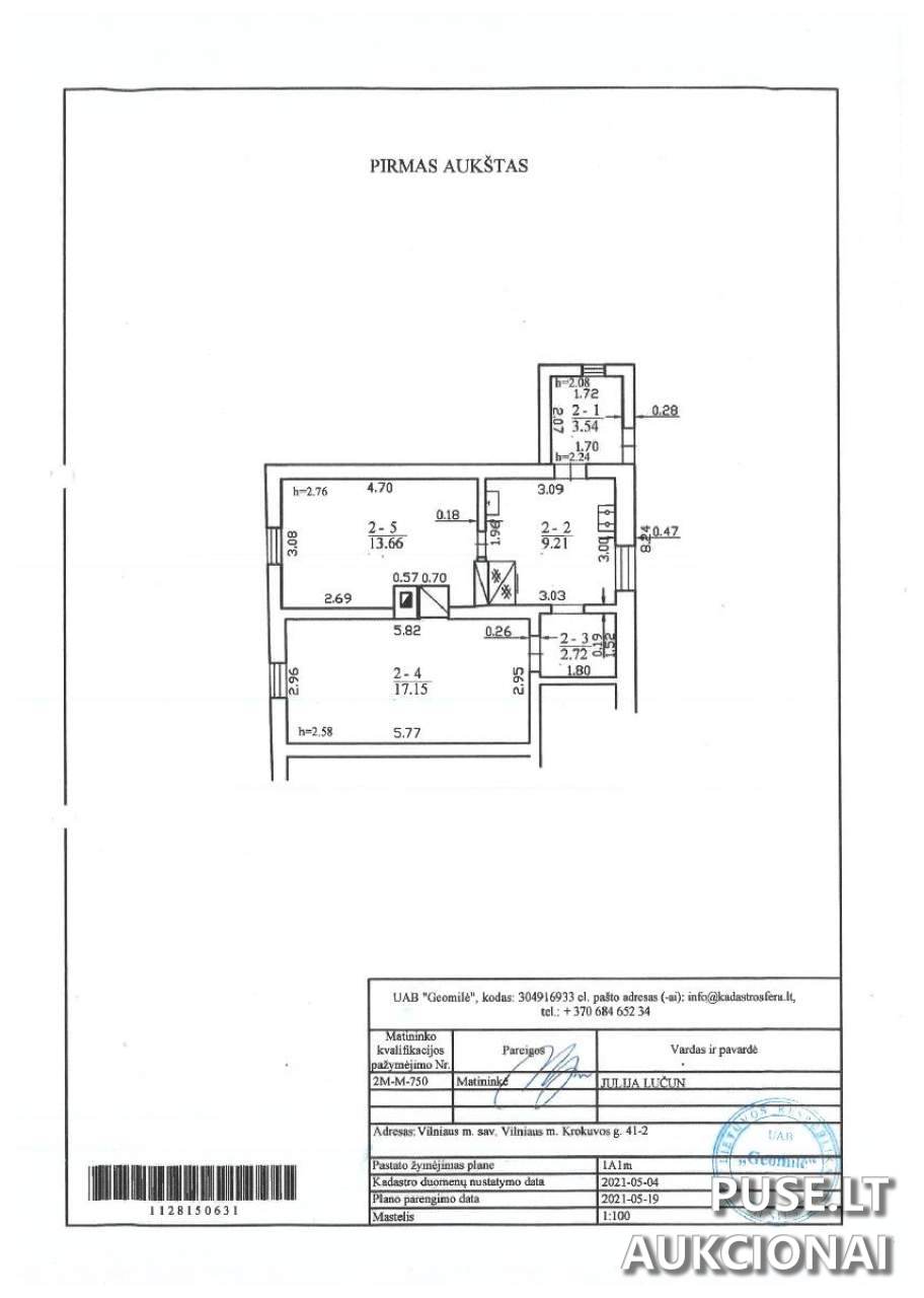
Parduodamas 1/1 dalies butas, unikalus Nr. 1094-0174-2016:0007, esantis Krokuvos g. 41-2, Vilniaus mieste. Šis NT objektas yra 46,28 kv. m ploto, yra vieno aukšto medinio pastato pirmame aukšte ir parduodamas esamos fizinės ir funkcinės būklės. Nekilnojamojo turto kadastro duomenys gali neatitikti faktinės situacijos, ir tai yra pirkėjo rizika.
Objektas yra valstybės saugomos nekilnojamosios kultūros vertybės - Vilniaus senamiesčio, paskelbto kultūros paminklu (unikalus kodas - 16073) vizualinės apsaugos pozonio teritorijoje, taip pat priklauso nekilnojamosios kultūros vertybei - Vilniaus miesto istorinei daliai, vad. Medinėms Šnipiškėms (unikalus kodas - 12599) teritorijai. Todėl turto naudojimas, tvarkymas bei statybos (remonto, rekonstrukcijos) darbai reglamentuojami Lietuvos Respublikos nekilnojamojo kultūros paveldo apsaugos įstatymu bei kitais susijusiais teisės aktais.
Savivaldybė neįsipareigoja nustatyti aktualios kadastro duomenų būklės. Dėl elektros tiekimo: skolų nėra, tačiau savivaldybė negarantuoja, kad elektros tiekimas bus nenutrūkstamas ar vidaus tinklas techniškai tvarkingas. Pirkėjas prisiima visą riziką ir įsipareigoja savo lėšomis spręsti visus su elektros tiekimo atnaujinimu ir vidaus tinklų remontu susijusius klausimus.
Pardavimo sąlygos: Pradinė kaina yra 64500 EUR. Užtikrinamasis (garantinis) mokestis – 6450 EUR, registracijos mokestis – 145 EUR. Nekilnojamojo turto pirkimo-pardavimo sutartis turi būti sudaryta per 30 dienų nuo aukciono vykdymo dienos, o visa kaina sumokėta ne vėliau kaip per 10 dienų po sutarties pasirašymo.
Prieš aukcioną numatytos dvi turto apžiūros: 2026-02-05 13.30 val. ir 2026-02-12 13.30 val. Organizatorius yra Vilniaus miesto savivaldybės administracija.
Objektas yra valstybės saugomos nekilnojamosios kultūros vertybės - Vilniaus senamiesčio, paskelbto kultūros paminklu (unikalus kodas - 16073) vizualinės apsaugos pozonio teritorijoje, taip pat priklauso nekilnojamosios kultūros vertybei - Vilniaus miesto istorinei daliai, vad. Medinėms Šnipiškėms (unikalus kodas - 12599) teritorijai. Todėl turto naudojimas, tvarkymas bei statybos (remonto, rekonstrukcijos) darbai reglamentuojami Lietuvos Respublikos nekilnojamojo kultūros paveldo apsaugos įstatymu bei kitais susijusiais teisės aktais.
Savivaldybė neįsipareigoja nustatyti aktualios kadastro duomenų būklės. Dėl elektros tiekimo: skolų nėra, tačiau savivaldybė negarantuoja, kad elektros tiekimas bus nenutrūkstamas ar vidaus tinklas techniškai tvarkingas. Pirkėjas prisiima visą riziką ir įsipareigoja savo lėšomis spręsti visus su elektros tiekimo atnaujinimu ir vidaus tinklų remontu susijusius klausimus.
Pardavimo sąlygos: Pradinė kaina yra 64500 EUR. Užtikrinamasis (garantinis) mokestis – 6450 EUR, registracijos mokestis – 145 EUR. Nekilnojamojo turto pirkimo-pardavimo sutartis turi būti sudaryta per 30 dienų nuo aukciono vykdymo dienos, o visa kaina sumokėta ne vėliau kaip per 10 dienų po sutarties pasirašymo.
Prieš aukcioną numatytos dvi turto apžiūros: 2026-02-05 13.30 val. ir 2026-02-12 13.30 val. Organizatorius yra Vilniaus miesto savivaldybės administracija.
📍 Objekto lokacija
📍 Vilniaus m. sav. Vilniaus m. Krokuvos g. 41-2
❓ Dažnai užduodami klausimai
Kokia yra buto Krokuvos g. 41-2 pradinė pardavimo kaina ir su kokiomis papildomomis išlaidomis susijęs dalyvavimas?
Buto pradinė kaina aukcione yra 64500 EUR. Papildomai mokamas 6450 EUR garantinis mokestis ir 145 EUR registracijos mokestis.
Kada vyksta buto aukcionas ir kada reikia baigti registraciją?
Aukcionas prasideda 2026-02-24 09:00:00 ir baigiasi 2026-02-25 13:59:59. Registracija į aukcioną vyksta nuo 2026-02-17 00:00:00 iki 2026-02-19 23:59:59.
Kokie apribojimai taikomi buto tvarkybai dėl jo buvimo kultūros paveldo teritorijoje?
Butas yra Vilniaus senamiesčio vizualinės apsaugos pozonio teritorijoje ir Medinių Šnipiškių teritorijoje. Todėl tvarkymo darbai ir statybos reglamentuojami Nekilnojamojo kultūros paveldo apsaugos įstatymu.
Ar pardavėjas garantuoja esamą turto būklę ir kad kadastro duomenys atitinka tikrovę?
Nekilnojamasis turtas parduodamas esamos fizinės ir funkcinės būklės, o savivaldybė neįsipareigoja nustatyti aktualios kadastro duomenų būklės, kuri gali neatitikti faktinės situacijos.
Ar butui yra užtikrinamas nenutrūkstamas elektros tiekimas ir kas atsakingas už elektros tinklo remontą?
Savivaldybė negarantuoja nenutrūkstamo elektros tiekimo ar vidaus tinklo tvarkingumo. Pirkėjas įsipareigoja visus su elektros tiekimo atnaujinimu ir tinklų remontu susijusius darbus spręsti savo lėšomis ir rizika.
Kada turi būti pasirašoma pirkimo-pardavimo sutartis po aukciono laimėjimo?
Pirkimo-pardavimo sutartis turi būti sudaryta per 30 dienų nuo pardavimo aukcione vykdymo dienos, o visa kaina sumokėta per 10 dienų po sutarties pasirašymo.
Kada galima apžiūrėti parduodamą butą Krokuvos g. 41-2 Vilniuje?
Numatytos apžiūros 2026-02-05 13.30 val. ir 2026-02-12 13.30 val. Apžiūros laiką būtina suderinti iš anksto su atsakingu specialistu.