📝 Aprašymas
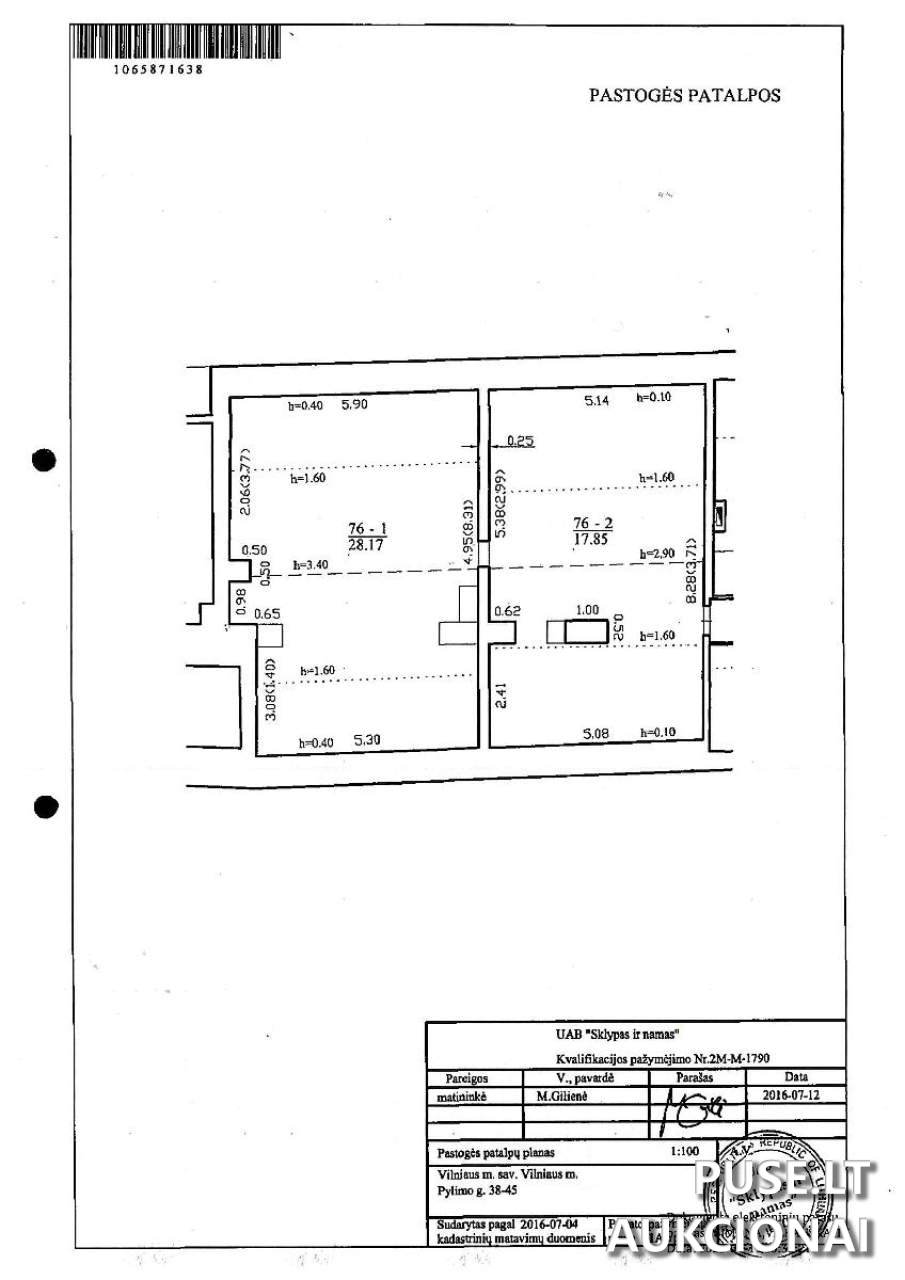
Parduodama 163/1000 dalis negyvenamosios paskirties patalpos, apibūdinamos kaip neįrengta pastogė, Vilniaus senamiestyje, Pylimo gatvėje 38-45. Tai yra dalis iš bendro 46,02 kv. m ploto, atitinkanti 7,50 kv. m, esanti mūriniame pastate. Unikalus šios dalies numeris yra 4400-4260-4979:2003.
Objektas yra įtrauktas į nekilnojamojo kultūros vertybės – Žydų ligoninės pastatų komplekso (unikalus kodas 47478) – Pirmąjį pastatą (unikalus kodas 44232). Dėl to, patalpų naudojimas, tvarkymas, o ypač statybos, remonto ar rekonstrukcijos darbai, yra griežtai reglamentuojami Lietuvos Respublikos nekilnojamojo kultūros paveldo apsaugos įstatymu bei kitais susijusiais teisės aktais. Patalpos parduodamos esamos būklės.
Turto apžiūra yra ribota, patekimas į pastogę galimas tik iš fizinio asmens buto. Pirkėjas įsipareigoja spręsti visus su vidaus elektros tinklų galimu remontu, elektros tiekimo atnaujinimu ir palaikymu susijusius klausimus savo lėšomis ir rizika. Nors skolų už elektros energijos tiekimą šiam objektui nėra, Savivaldybė negarantuoja nepertraukiamo elektros tiekimo ar tinklo techninės tvarkos, todėl rekomenduojama pačiam įvertinti faktinę situaciją.
Pakartotinio aukciono pradžia – 2026-02-24 09:00:00, o pabaiga – 2026-02-25 13:59:59. Registracija vyksta trumpiau: nuo 2026-02-17 00:00:00 iki 2026-02-19 23:59:59. Pradinė kaina yra 1434 EUR. Pirkėjas sumoka 143 EUR garantinį mokestį ir 70 EUR registracijos mokestį. Sutartis turi būti pasirašyta per 30 dienų nuo aukciono, o visa kaina sumokėta per 10 dienų po sutarties pasirašymo.
Objektas yra įtrauktas į nekilnojamojo kultūros vertybės – Žydų ligoninės pastatų komplekso (unikalus kodas 47478) – Pirmąjį pastatą (unikalus kodas 44232). Dėl to, patalpų naudojimas, tvarkymas, o ypač statybos, remonto ar rekonstrukcijos darbai, yra griežtai reglamentuojami Lietuvos Respublikos nekilnojamojo kultūros paveldo apsaugos įstatymu bei kitais susijusiais teisės aktais. Patalpos parduodamos esamos būklės.
Turto apžiūra yra ribota, patekimas į pastogę galimas tik iš fizinio asmens buto. Pirkėjas įsipareigoja spręsti visus su vidaus elektros tinklų galimu remontu, elektros tiekimo atnaujinimu ir palaikymu susijusius klausimus savo lėšomis ir rizika. Nors skolų už elektros energijos tiekimą šiam objektui nėra, Savivaldybė negarantuoja nepertraukiamo elektros tiekimo ar tinklo techninės tvarkos, todėl rekomenduojama pačiam įvertinti faktinę situaciją.
Pakartotinio aukciono pradžia – 2026-02-24 09:00:00, o pabaiga – 2026-02-25 13:59:59. Registracija vyksta trumpiau: nuo 2026-02-17 00:00:00 iki 2026-02-19 23:59:59. Pradinė kaina yra 1434 EUR. Pirkėjas sumoka 143 EUR garantinį mokestį ir 70 EUR registracijos mokestį. Sutartis turi būti pasirašyta per 30 dienų nuo aukciono, o visa kaina sumokėta per 10 dienų po sutarties pasirašymo.
📍 Objekto lokacija
📍 Vilniaus m. sav. Vilniaus m. Pylimo g. 38-45
❓ Dažnai užduodami klausimai
Kokia yra neįrengtos pastogės Pylimo g. 38-45 pradinė kaina ir parduodama dalis?
Pradinė kaina siekia 1434 EUR. Parduodama 163/1000 dalis negyvenamosios patalpos, kurios plotas yra 7,50 kv. m iš bendro 46,02 kv. m.
Kada vyks nekilnojamo turto aukcionas Vilniuje, Pylimo g. 38?
Aukcionas prasidės 2026-02-24 09:00:00 ir baigsis 2026-02-25 13:59:59.
Kokie papildomi mokesčiai taikomi dalyvaujant aukcione?
Dalyvaujant aukcione reikia sumokėti 143 EUR garantinį mokestį ir 70 EUR registracijos mokestį.
Kokios yra pagrindinės objekto naudojimo sąlygos?
Objektas yra Vilniaus miesto nekilnojamojo kultūros vertybės - Žydų ligoninės pastatų komplekso pastate, todėl visas tvarkymas ir darbai yra griežtai reguliuojami paveldosaugos reikalavimais. Patekimas į pastogę yra ribotas, galimas tik iš kaimyninio buto.
Kokios yra sąlygos dėl elektros tiekimo šiose Pylimo g. patalpose?
Pirkėjas įsipareigoja savo lėšomis spręsti visus elektros tiekimo ir vidaus tinklų remonto klausimus. Savivaldybė neužtikrina nenutrūkstamo tiekimo ar tinklo tvarkos.
Kada galiu apžiūrėti parduodamą pastogės dalį?
Oficialios apžiūros numatytos 2026-02-03 9.00 val. ir 2026-02-10 9.00 val., tačiau laikas turi būti suderintas iš anksto.
Koks yra nekilnojamo turto unikalus numeris?
Nekilnojamo turto unikalus numeris yra 4400-4260-4979:2003.