📝 Aprašymas
Parduodami išskirtiniai negyvenamieji Kultūros rūmai su amerikietiškųjų kėglių centru Vilniaus miesto savivaldybėje, Vytenio g. 6-101. Objekto unikalus numeris yra 4400-0959-2698:5664. Objekto pardavimo pradinė kaina yra 4128417 EUR. Parduodama visa 1/1 dalis.
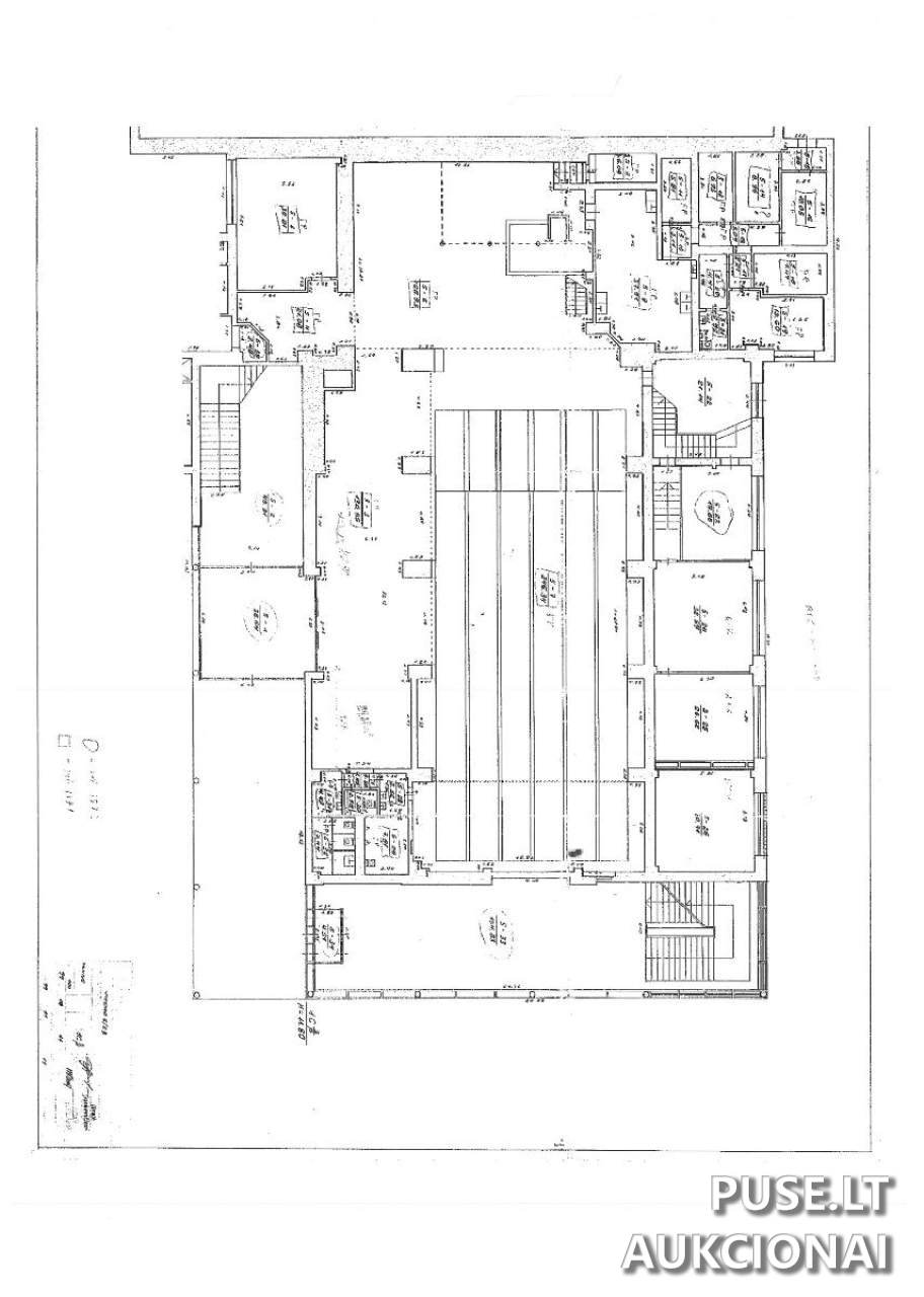
Parduodama 2878,06 kv. m ploto patalpa, išdėstyta trijų aukštų mūriniame pastate. Šios patalpos parduodamos kaip nekilnojamosios kultūros vertybės su tam tikrais apribojimais.
SVARBU DĖL PAVELDO: Nors pastatas nėra įrašytas į Kultūros vertybių registrą, jis yra nekilnojamosios kultūros vertybės - Vilniaus miesto istorinės dalies Naujamiesčio (unikalus kodas 33653) teritorijoje ir valstybės saugomos nekilnojamosios kultūros vertybės - Vilniaus senamiesčio (unikalus kodas 16073) vizualinės apsaugos zonoje. Todėl visokie statybos (remonto, rekonstrukcijos) darbai bus reglamentuojami Lietuvos Respublikos nekilnojamojo turto apsaugos įstatymu ir kitais teisės aktais. Tai svarbi investavimo sąlyga, kurią būtina įvertini ir suderinti su paveldo reikalavimais.
Aukcionas prasideda 2026-02-24 09:00:00, o registracija vyksta iki 2026-02-19 23:59:59. Būtina sumokėti 412841 EUR garantinį mokestį ir 145 EUR registracijos mokestį. Pirkimo-pardavimo sutartis turi būti sudaryta per 30 dienų nuo aukciono dienos, o visa kaina sumokėta per 10 dienų po sutarties pasirašymo.
Parduodama 2878,06 kv. m ploto patalpa, išdėstyta trijų aukštų mūriniame pastate. Šios patalpos parduodamos kaip nekilnojamosios kultūros vertybės su tam tikrais apribojimais.
SVARBU DĖL PAVELDO: Nors pastatas nėra įrašytas į Kultūros vertybių registrą, jis yra nekilnojamosios kultūros vertybės - Vilniaus miesto istorinės dalies Naujamiesčio (unikalus kodas 33653) teritorijoje ir valstybės saugomos nekilnojamosios kultūros vertybės - Vilniaus senamiesčio (unikalus kodas 16073) vizualinės apsaugos zonoje. Todėl visokie statybos (remonto, rekonstrukcijos) darbai bus reglamentuojami Lietuvos Respublikos nekilnojamojo turto apsaugos įstatymu ir kitais teisės aktais. Tai svarbi investavimo sąlyga, kurią būtina įvertini ir suderinti su paveldo reikalavimais.
Aukcionas prasideda 2026-02-24 09:00:00, o registracija vyksta iki 2026-02-19 23:59:59. Būtina sumokėti 412841 EUR garantinį mokestį ir 145 EUR registracijos mokestį. Pirkimo-pardavimo sutartis turi būti sudaryta per 30 dienų nuo aukciono dienos, o visa kaina sumokėta per 10 dienų po sutarties pasirašymo.
📍 Objekto lokacija
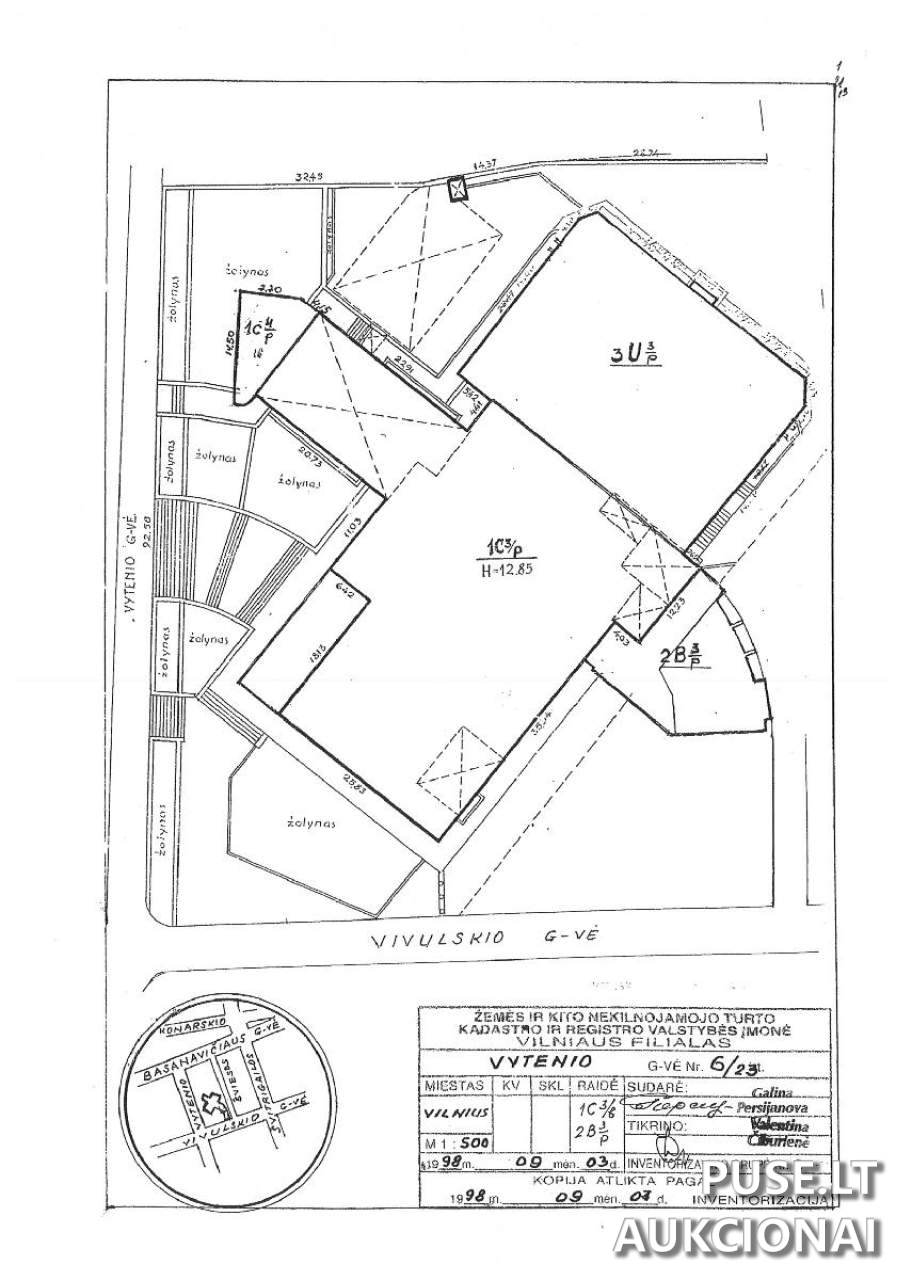
📍 Vilniaus m. sav. Vilniaus m. Vytenio g. 6-101
❓ Dažnai užduodami klausimai
Kokia yra negyvenamųjų patalpų Vytenio g. 6 kaina ir bendras plotas?
Pradinė aukciono kaina yra 4128417 EUR už 2878,06 kv. m ploto negyvenamąją patalpą - Kultūros rūmus su kėglių centru.
Kada vyks nekilnojamojo turto aukcionas?
Aukcionas prasideda 2026-02-24 09:00:00 ir baigiasi 2026-02-25 13:59:59.
Kokie yra privalomi mokesčiai dalyvaujant aukcione?
Reikalingas 412841 EUR garantinis mokestis ir 145 EUR registracijos mokestis.
Kokie yra apribojimai, susiję su šio objekto vieta?
Objektas, nors ir neįrašytas į Kultūros vertybių registrą, yra Vilniaus miesto istorinėje dalyje (Naujamiesčio teritorijoje ir Vilniaus senamiesčio vizualinės apsaugos zonoje), todėl tvarkymas reglamentuojamas Paveldo apsaugos įstatymu.
Kada galima apžiūrėti parduodamus Kultūros rūmus?
Apžiūra numatyta 2026-02-03 11.00 val. ir 2026-02-10 11.00 val., laiką būtina suderinti iš anksto.
Kada Pirkėjas privalo sumokėti visą pirkimo kainą po aukciono?
Pirkimo-pardavimo sutartis sudaroma per 30 dienų nuo pardavimo dienos, o visa kaina turi būti sumokėta ne vėliau kaip per 10 dienų po sutarties pasirašymo.