📝 Aprašymas
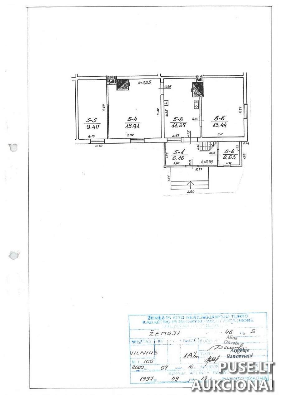
Parduodamas 58.91 kv. m ploto butas Vilniaus miesto savivaldybėje, Žemoji g. 46-5, esantis vieno aukšto medinio pastato pirmame aukšte (Pažymėjimas plane 1A1/m). Pradinė buto kaina aukcione sudaro 9745 EUR, o pirkėjas turi sumokėti 974 EUR garantinį mokestį ir 70 EUR registracijos mokestį.
Šis nekilnojamojo turto objektas (Unikalus Nr. 1094-0480-0015:0005) parduodamas esamos būklės, atsižvelgiant, kad turtas yra po įvykusio gaisro. Svarbu, kad nuosavybės teisės parduodamos visas dalis – 1/1.
Savivaldybė neprisiima atsakomybės už elektros tiekimo nenutrūkstamumą ar vidaus elektros tinklo tvarkingumą. Visi su vidaus elektros tinklų galimu remontu, elektros tiekimo atnaujinimu susiję klausimai ir išlaidos tenka išimtinai pirkėjui, sprendžiami savarankiškai su atitinkamomis institucijomis.
Administraciniai mokesčiai Pirkėjo sumokami į Vilniaus miesto savivaldybės administracijos sąskaitą (kodas 188710061) iki registracijos į elektroninį aukcioną. Sutartis turi būti pasirašyta per 30 dienų nuo aukciono vykdymo dienos, galutinė kaina turi būti sumokėta per 10 dienų po sutarties pasirašymo.
Aukcionas prasideda 2026-02-24 (09:00:00) ir baigiasi 2026-02-25 (13:59:59). Registracija vyksta nuo 2026-02-17 iki 2026-02-19. Turto apžiūros numatytos 2026-02-02 ir 2026-02-09, Būtina iš anksto suderinti laiką su atsakingu specialistu.
Šis nekilnojamojo turto objektas (Unikalus Nr. 1094-0480-0015:0005) parduodamas esamos būklės, atsižvelgiant, kad turtas yra po įvykusio gaisro. Svarbu, kad nuosavybės teisės parduodamos visas dalis – 1/1.
Savivaldybė neprisiima atsakomybės už elektros tiekimo nenutrūkstamumą ar vidaus elektros tinklo tvarkingumą. Visi su vidaus elektros tinklų galimu remontu, elektros tiekimo atnaujinimu susiję klausimai ir išlaidos tenka išimtinai pirkėjui, sprendžiami savarankiškai su atitinkamomis institucijomis.
Administraciniai mokesčiai Pirkėjo sumokami į Vilniaus miesto savivaldybės administracijos sąskaitą (kodas 188710061) iki registracijos į elektroninį aukcioną. Sutartis turi būti pasirašyta per 30 dienų nuo aukciono vykdymo dienos, galutinė kaina turi būti sumokėta per 10 dienų po sutarties pasirašymo.
Aukcionas prasideda 2026-02-24 (09:00:00) ir baigiasi 2026-02-25 (13:59:59). Registracija vyksta nuo 2026-02-17 iki 2026-02-19. Turto apžiūros numatytos 2026-02-02 ir 2026-02-09, Būtina iš anksto suderinti laiką su atsakingu specialistu.
📍 Objekto lokacija
📍 Vilniaus m. sav. Vilniaus m. Žemoji g. 46-5
❓ Dažnai užduodami klausimai
Kokia nekilnojamojo turto aukciono pradžios ir pabaigos data?
Aukcionas prasideda 2026-02-24 09:00:00 ir baigiasi 2026-02-25 13:59:59.
Kokia yra pradinė buto (Unikalus Nr. 1094-0480-0015:0005) kaina Vilniuje?
Buto pradinė kaina yra 9745 EUR.
Kokie papildomi mokesčiai taikomi dalyvaujant aukcione?
Dalyvio garantinis mokestis yra 974 EUR, o registracijos mokestis yra 70 EUR.
Kada galima apžiūrėti parduodamą butą Žemojoje g. 46-5?
Apžiūros numatytos 2026-02-02 9.00 val. ir 2026-02-09 9.00 val. Šį laiką būtina iš anksto suderinti su atsakingu asmeniu.
Kokie yra pagrindiniai objekto pardavimo apribojimai ar ypatybės?
Turtas parduodamas po gaisro, esamos būklės. Pirkėjas pats atsiskaito už visus elektros tinklo remonto ir atnaujinimo darbus.
Kokiuose registracijos intervale galima teikti paraišką dalyvauti aukcione?
Registracija vyksta nuo 2026-02-17 00:00:00 iki 2026-02-19 23:59:59.