📝 Aprašymas
Galimybė nuomotis negyvenamąsias administracinės paskirties patalpas Alytaus mieste, Pulko g. 1, viešo konkurso būdu, organizuojant Alytaus miesto savivaldybės administracijai.
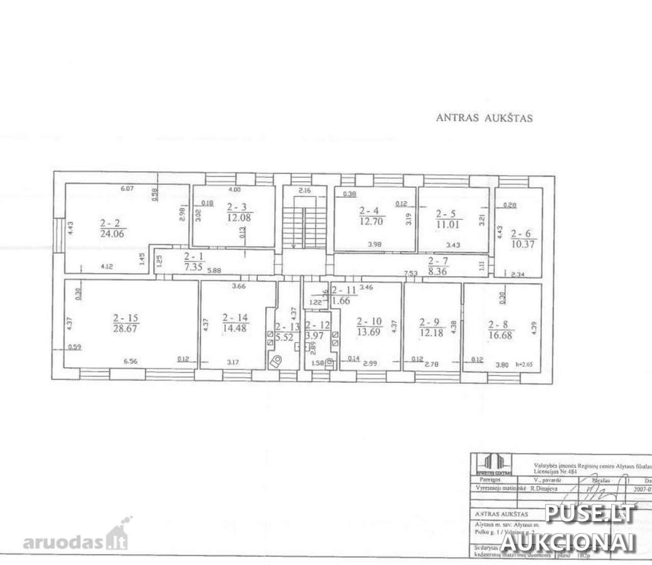
Bendra nuomojama plotas sudaro 32,74 kv. m, paskirstytas keliose vietose: patalpos plane 2-15 (28,67 kv. m), dalis patalpos 2-1 (2,64 kv. m iš 7,35 kv. m), dalis patalpos 2-12 (1 kv. m iš 3,97 kv. m) ir dalis patalpos 2-11 (0,43 kv. m iš 1,66 kv. m). Pastato unikalus numeris 1195-8002-1018, pastatas pažymėtas plane 1B2p.
Nuomos paskirtis – administracinei veiklai. Nuomos terminas yra 5 metai su galimybe terminą pratęsti dar papildomam 5 metų laikotarpiui. Pradinis nuompinigių dydis nustatytas 3 Eur už 1 kv. m per mėnesį.
Konkurso dalyviai turi sumokėti negrąžinamą registravimo mokestį – 30 Eur, bei pradinį įnašą – 297 Eur (šis įnašas grąžinamas nelaimėjusiems).
Nuomos sutartis su konkurso laimėtoju bus pasirašoma ne anksčiau kaip per 5 darbo dienas ir ne vėliau kaip per 10 darbo dienų nuo paskelbimo protokolo pasirašymo dienos. Jeigu laimėtojas neatvyksta pasirašyti sutarties nustatytu terminu, pradinis įnašas negrąžinamas, o konkursas anuliuojamas, išskyrus nenugalimos jėgos (force majeure) atvejus.
Administracijos įgaliotas atstovas ir organizatorius: Alytaus miesto savivaldybės administracija (įm. kodas 188706935). Konkurso dalyviai pradinį įnašą ir registracijos mokestį moka į Alytaus miesto savivaldybės administracijos sąskaitą AB Artea banke.
Bendra nuomojama plotas sudaro 32,74 kv. m, paskirstytas keliose vietose: patalpos plane 2-15 (28,67 kv. m), dalis patalpos 2-1 (2,64 kv. m iš 7,35 kv. m), dalis patalpos 2-12 (1 kv. m iš 3,97 kv. m) ir dalis patalpos 2-11 (0,43 kv. m iš 1,66 kv. m). Pastato unikalus numeris 1195-8002-1018, pastatas pažymėtas plane 1B2p.
Nuomos paskirtis – administracinei veiklai. Nuomos terminas yra 5 metai su galimybe terminą pratęsti dar papildomam 5 metų laikotarpiui. Pradinis nuompinigių dydis nustatytas 3 Eur už 1 kv. m per mėnesį.
Konkurso dalyviai turi sumokėti negrąžinamą registravimo mokestį – 30 Eur, bei pradinį įnašą – 297 Eur (šis įnašas grąžinamas nelaimėjusiems).
Nuomos sutartis su konkurso laimėtoju bus pasirašoma ne anksčiau kaip per 5 darbo dienas ir ne vėliau kaip per 10 darbo dienų nuo paskelbimo protokolo pasirašymo dienos. Jeigu laimėtojas neatvyksta pasirašyti sutarties nustatytu terminu, pradinis įnašas negrąžinamas, o konkursas anuliuojamas, išskyrus nenugalimos jėgos (force majeure) atvejus.
Administracijos įgaliotas atstovas ir organizatorius: Alytaus miesto savivaldybės administracija (įm. kodas 188706935). Konkurso dalyviai pradinį įnašą ir registracijos mokestį moka į Alytaus miesto savivaldybės administracijos sąskaitą AB Artea banke.
📍 Objekto lokacija
📍 Alytaus m. sav. Alytaus m. Pulko g. 1
❓ Dažnai užduodami klausimai
Kokia yra bendra nuomojama plotas ir pagrindinis adresas?
Nuomojamas bendras 32,74 kv. m plotas Alytaus mieste, Pulko g. 1, pastato unikalus Nr. 1195-8002-1018.
Kada vyks nuomos konkursas ir kokios trukmės nuomos terminas?
Konkursas prasideda 2026-02-09 09:00:00 ir baigiasi 2026-02-10 13:59:59. Nuomos terminas – 5 metai su galimybe pratęsti dar 5 metams.
Koks yra pradinio nuompinigių dydis už šias administracines patalpas Alytuje?
Pradinis nuompinigių dydis nustatytas 3 Eur už 1 kv. m per mėnesį.
Kokie yra privalomi mokesčiai dalyvaujant konkurse?
Dalyviai turi sumokėti 30 Eur registracijos mokestį (negrąžinamą) ir pradinį įnašą, lygų trijų mėnesių pradiniam nuomos mokesčiui (297 Eur, grąžinama nelaimėjusiems).
Kokia yra pradinė konkurso kaina?
Pradinė kaina nurodyta 0 EUR, tačiau nustatytas pradinio nuompinigių dydis ir įnašas.
Kada reikia spėti užsiregistruoti dalyvauti nuomos konkurse?
Registracija prasideda 2026-02-03 00:00:00 ir baigiasi 2026-02-05 23:59:59.
Kokia leidžiama objekto naudojimo paskirtis?
Leidžiama naudojimo paskirtis – administracinei veiklai.