📝 Aprašymas
Parduodamos (nuomojamos) 14,6 kv. m. administracinės paskirties negyvenamosios patalpos Alytaus mieste, Pulko g. 1, pastato unikalus Nr. 1195-8002-1018. Šios patalpos bus nuomojamos viešojo konkurso būdu.
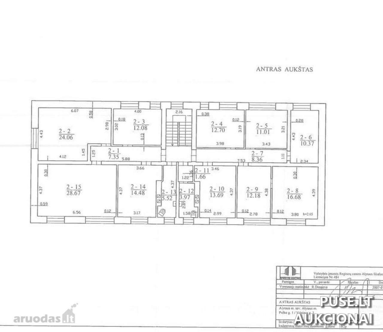
Bendras išnuomojamas plotas yra 14,6 kv. m., sudarytas iš kelių dalių: patalpos pažymėtos plane 2-3 (12,08 kv. m), dalis patalpos 2-1 (1,12 kv. m. iš 7,35 kv. m), dalis patalpos 2-12 (0,99 kv. m. iš 3,97 kv. m) ir dalis patalpos 2-11 (0,41 kv. m. iš 1,66 kv. m). Pastato planas žymimas 1B2p.
Nuomos sąlygos apima nustatytą naudojimo paskirtį – administracinė veikla. Nuomos terminas yra 5 metai, su galimybe jį pratęsti dar 5 metams. Pradinis nuompinigių dydis konkurso metu siekia 3 Eur už 1 kv. m per mėnesį.
Konkurso dalyviai turi sumokėti nedidelius mokesčius: registravimo mokestis yra 30 EUR (negrąžinamas). Taip pat reikalingas pradinis įnašas, lygus paskelbtam trijų mėnesių pradiniam nuomos mokesčiui (bendras pradinio įnašo dydis - 132 Eur). Šis įnašas grąžinamas nelaimėjusiems dalyviams.
Nuomos sutartis turi būti pasirašoma ne anksčiau kaip per 5 darbo dienas ir ne vėliau kaip per 10 darbo dienų nuo turto nuomos konkurso komisijos protokolo pasirašymo dienos. Jei konkurso laimėtojas laiku nepasirašo sutarties, pradinis įnašas negrąžinamas, o konkursas anuliuojamas.
Objektą administruoja Alytaus miesto savivaldybės administracija (įmonės kodas 188706935). Su visais nuomos sutarties projektais galima susipažinti kreipiantis nurodytais kontaktais.
Bendras išnuomojamas plotas yra 14,6 kv. m., sudarytas iš kelių dalių: patalpos pažymėtos plane 2-3 (12,08 kv. m), dalis patalpos 2-1 (1,12 kv. m. iš 7,35 kv. m), dalis patalpos 2-12 (0,99 kv. m. iš 3,97 kv. m) ir dalis patalpos 2-11 (0,41 kv. m. iš 1,66 kv. m). Pastato planas žymimas 1B2p.
Nuomos sąlygos apima nustatytą naudojimo paskirtį – administracinė veikla. Nuomos terminas yra 5 metai, su galimybe jį pratęsti dar 5 metams. Pradinis nuompinigių dydis konkurso metu siekia 3 Eur už 1 kv. m per mėnesį.
Konkurso dalyviai turi sumokėti nedidelius mokesčius: registravimo mokestis yra 30 EUR (negrąžinamas). Taip pat reikalingas pradinis įnašas, lygus paskelbtam trijų mėnesių pradiniam nuomos mokesčiui (bendras pradinio įnašo dydis - 132 Eur). Šis įnašas grąžinamas nelaimėjusiems dalyviams.
Nuomos sutartis turi būti pasirašoma ne anksčiau kaip per 5 darbo dienas ir ne vėliau kaip per 10 darbo dienų nuo turto nuomos konkurso komisijos protokolo pasirašymo dienos. Jei konkurso laimėtojas laiku nepasirašo sutarties, pradinis įnašas negrąžinamas, o konkursas anuliuojamas.
Objektą administruoja Alytaus miesto savivaldybės administracija (įmonės kodas 188706935). Su visais nuomos sutarties projektais galima susipažinti kreipiantis nurodytais kontaktais.
📍 Objekto lokacija
📍 Alytaus m. sav. Alytaus m. Pulko g. 1
❓ Dažnai užduodami klausimai
Koks yra nuomojamų patalpų bendras plotas ir paskirtis Alytuje?
Nuomojamas bendras 14,6 kv. m. negyvenamųjų patalpų plotas, skirtas administracinei veiklai, esantis Pulko g. 1, Alytuje.
Kokia yra pradinė nuompinigių kaina už kvadratinį metrą per mėnesį?
Pradinis nuompinigių dydis konkurse yra 3 Eur už 1 kv. m per mėnesį.
Kada vyks nuomos konkurso registracija ir balsavimas?
Registracija vyksta nuo 2026-02-03 00:00:00 iki 2026-02-05 23:59:59, o pats aukcionas baigiasi 2026-02-10 13:59:59.
Kokie yra mokami mokesčiai dalyvaujant konkurse?
Reikalingas 30 EUR negrąžinamas registravimo mokestis ir pradinis įnašas, lygus trijų mėnesių pradiniam nuomos mokesčiui (132 Eur).
Koks yra siūlomas nuomos terminas?
Nuomos terminas yra 5 metai su galimybe jį pratęsti dar 5 metams.
Koks yra objekto unikalus numeris ir kas yra nuomotojas?
Objekto unikalus Nr. yra 1195-8002-1018, o nuomotojas yra Alytaus miesto savivaldybės administracija.