📝 Aprašymas
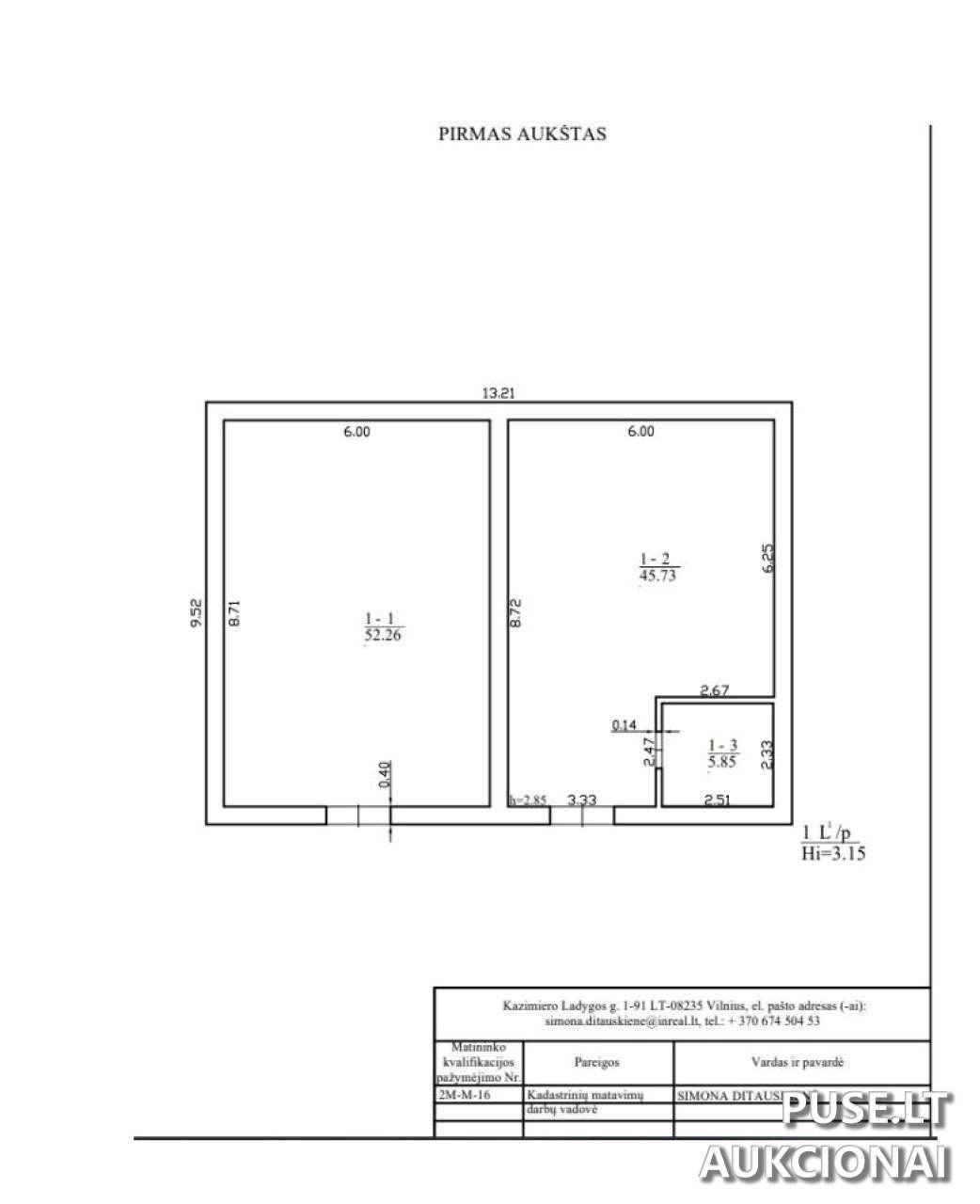
Vilniaus miesto savivaldybė siūlo nuomoti negyvenamąjį pastatą Antakalnio g. 61, Vilniaus mieste, kurio bendras plotas yra 103,84 kv. m. Šis objektas, turintis unikalų numerį 1096-3000-6023, pažymėtas plane kaip 1L1/p. Nuomos pagrindinis tikslas yra paslaugų veiklai vykdyti, o sutarties terminas siekia 5 metus. Pradinė mėnesinė nuomos kaina, nuo kurios prasideda nuomos e. konkursas, yra 654 Eur. Pradinis įnašas, kuris sudaro 3 mėnesių nuomos kainą, yra 1962 Eur.
Elektroninis nuomos konkursas prasideda 2026 m. sausio 29 d. 09:00:00 ir baigiasi 2026 m. sausio 30 d. 13:59:59. Dalyvių registracija vyks nuo 2026 m. sausio 26 d. iki 2026 m. sausio 27 d. 23:59:59. Konkurso dalyvio registracijos mokestis yra 20 EUR.
Pastato apžiūra yra organizuojama nuo 2026 m. sausio 13 d. iki 2026 m. sausio 26 d. darbo dienomis nuo 9 iki 15 valandos. Dėl apžiūros laiko būtina registruotis nurodytu kontaktiniu telefonu. Laimėtojas privalės pasirašyti Vilniaus miesto savivaldybės tarybos patvirtintą pavyzdinę nuomos sutartį (nuoroda pateikiama dokumentuose).
Nuomininko pasirinkimas bus atliekamas viešo e. konkurso būdu, reikalaujant pateikti išsamią informaciją apie veiklą, juridinius dokumentus, sutikimą su nuomos sąlygomis, įskaitant Potencialių nuomininkų reputacijos vertinimo tvarką. Taip pat privaloma pateikti įrodymus apie mokesčių ir socialinio draudimo įmokų mokėjimą bei kvito kopiją apie sumokėtą pradinį įnašą į Vilniaus miesto savivaldybės administracijos sąskaitą AB Luminor banke.
Elektroninis nuomos konkursas prasideda 2026 m. sausio 29 d. 09:00:00 ir baigiasi 2026 m. sausio 30 d. 13:59:59. Dalyvių registracija vyks nuo 2026 m. sausio 26 d. iki 2026 m. sausio 27 d. 23:59:59. Konkurso dalyvio registracijos mokestis yra 20 EUR.
Pastato apžiūra yra organizuojama nuo 2026 m. sausio 13 d. iki 2026 m. sausio 26 d. darbo dienomis nuo 9 iki 15 valandos. Dėl apžiūros laiko būtina registruotis nurodytu kontaktiniu telefonu. Laimėtojas privalės pasirašyti Vilniaus miesto savivaldybės tarybos patvirtintą pavyzdinę nuomos sutartį (nuoroda pateikiama dokumentuose).
Nuomininko pasirinkimas bus atliekamas viešo e. konkurso būdu, reikalaujant pateikti išsamią informaciją apie veiklą, juridinius dokumentus, sutikimą su nuomos sąlygomis, įskaitant Potencialių nuomininkų reputacijos vertinimo tvarką. Taip pat privaloma pateikti įrodymus apie mokesčių ir socialinio draudimo įmokų mokėjimą bei kvito kopiją apie sumokėtą pradinį įnašą į Vilniaus miesto savivaldybės administracijos sąskaitą AB Luminor banke.
📍 Objekto lokacija
📍 Vilniaus m. sav. Vilniaus m. Antakalnio g. 61
❓ Dažnai užduodami klausimai
Kokia yra negyvenamojo pastato Antakalnio g. 61 nuomos pradžia ir pabaiga?
Nuomos e. konkursas prasideda 2026 m. sausio 29 d. 09:00:00 ir baigiasi 2026 m. sausio 30 d. 13:59:59.
Kokia yra pradinė mėnesinė nuomos kaina už 103.84 kv. m patalpas?
Pradinė mėnesinė nuomos kaina yra 654 Eur.
Kokia yra pradinio įnašo suma, kurią reikia sumokėti registruojantis į konkursą?
Pradinis įnašas lygus 3 mėnesių nuomos kainai, t. y., 1962 Eur.
Kada galima apžiūrėti nuomojamas patalpas Antakalnio g. 61?
Patalpų apžiūra galima nuo 2026 m. sausio 13 d. iki 2026 m. sausio 26 d. darbo dienomis 9-15 val., būtina registruotis iš anksto telefonu.
Koks yra negyvenamojo pastato unikalus numeris ir kokiai veiklai jis nuomojamas?
Unikalus numeris yra 1096-3000-6023. Patalpos nuomojamos paslaugų veiklai 5 metams.
Koks yra registracijos mokestis ir į kokią sąskaitą mokėti?
Registracijos mokestis yra 20 EUR. Mokėjimas atliekamas į Vilniaus miesto savivaldybės administracijos sąskaitą Nr. LT27 4010 0424 0397 3788 AB Luminor banke.