📝 Aprašymas
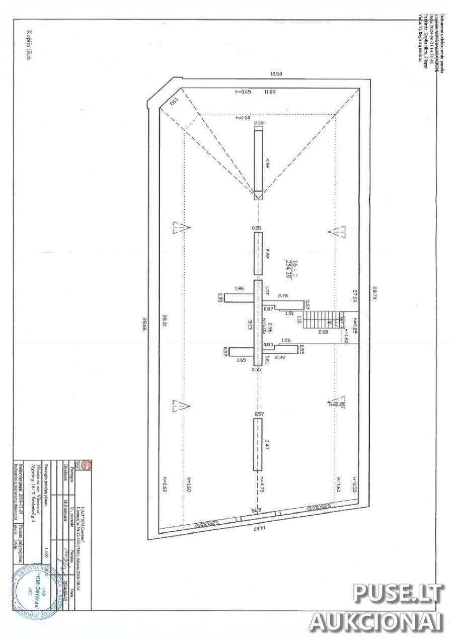
Parduodama 9/10000 dalis neįrengtos pastogės (unikalus Nr. 4400-1626-7975:5979) Vilniaus mieste, Algirdo g. 16, patenkančios į kultūros vertybių teritoriją. Parduodama dalis apima 23,12 kv. m iš bendro 254,39 kv. m ploto. Pastatas yra trijų aukštų, mūrinis.
Objektas parduodamas esamos būklės. Pirkėjas įsipareigoja savo lėšomis ir rizika spręsti visus su vidaus elektros tinklų galimu remontu bei elektros tiekimo atnaujinimu susijusius klausimus, tiesiogiai bendradarbiaudamas su atitinkamomis institucijomis. Skolų už elektros energiją šiam objektui nėra. Savivaldybė neužtikrina nenutrūkstamo elektros tiekimo ar vidaus tinklo tvarkingumo.
Šis turtas yra nekilnojamosios kultūros vertybės - Vilniaus miesto istorinės dalies, Naujamiesčio (unikalus kodas 33653), teritorijoje, taip pat valstybės saugomos Vilniaus senamiesčio (unikalus kodas 16073) vizualinės apsaugos zonoje. Dėl to visos statybos, remonto ar rekonstrukcijos darbų vykdymas reglamentuojamas Lietuvos Respublikos nekilnojamojo kultūros paveldo apsaugos įstatymu bei kitais teisės aktais.
Aukciono pradinė kaina – 17100 EUR. Registracijos mokestis – 70 EUR. Garantinis mokestis – 1710 EUR. Pirkimo-pardavimo sutartis turi būti sudaryta per 30 dienų nuo aukciono vykdymo dienos, o visa kaina sumokėta per 10 dienų po sutarties pasirašymo.
Objektas parduodamas esamos būklės. Pirkėjas įsipareigoja savo lėšomis ir rizika spręsti visus su vidaus elektros tinklų galimu remontu bei elektros tiekimo atnaujinimu susijusius klausimus, tiesiogiai bendradarbiaudamas su atitinkamomis institucijomis. Skolų už elektros energiją šiam objektui nėra. Savivaldybė neužtikrina nenutrūkstamo elektros tiekimo ar vidaus tinklo tvarkingumo.
Šis turtas yra nekilnojamosios kultūros vertybės - Vilniaus miesto istorinės dalies, Naujamiesčio (unikalus kodas 33653), teritorijoje, taip pat valstybės saugomos Vilniaus senamiesčio (unikalus kodas 16073) vizualinės apsaugos zonoje. Dėl to visos statybos, remonto ar rekonstrukcijos darbų vykdymas reglamentuojamas Lietuvos Respublikos nekilnojamojo kultūros paveldo apsaugos įstatymu bei kitais teisės aktais.
Aukciono pradinė kaina – 17100 EUR. Registracijos mokestis – 70 EUR. Garantinis mokestis – 1710 EUR. Pirkimo-pardavimo sutartis turi būti sudaryta per 30 dienų nuo aukciono vykdymo dienos, o visa kaina sumokėta per 10 dienų po sutarties pasirašymo.
📍 Objekto lokacija
📍 Vilniaus m. sav. Vilniaus m. Algirdo g. 16
❓ Dažnai užduodami klausimai
Kokia neįrengtos pastogės dalies pradinė kaina aukcione?
Neįrengtos pastogės dalies (23,12 kv. m) pradinė kaina aukcione yra 17100 EUR.
Kada vyks nekilnojamojo turto aukcionas Algirdo g. 16, Vilniuje?
Aukcionas prasidės 2026-02-24 09:00:00 ir baigsis 2026-02-25 13:59:59.
Kokie papildomi mokesčiai mokami dalyvaujant aukcione?
Reikalingas registracijos mokestis – 70 EUR ir garantinis mokestis – 1710 EUR.
Ar yra apribojimų dėl patalpų tvarkymo ar naudojimo būnant kultūros paveldo teritorijoje?
Objektas yra Vilniaus miesto istorinės dalies bei senamiesčio vizualinės apsaugos zonoje. Visi remonto darbai reglamentuojami Kultūros paveldo apsaugos įstatymu.
Kokia registracijos į aukcioną data?
Registracija į elektroninį aukcioną vyksta nuo 2026-02-17 00:00:00 iki 2026-02-19 23:59:59.
Koks yra parduodamos dalies plotas ir pastato charakteristika?
Parduodama 9/10000 dalis, atitinkanti 23,12 kv. m plotą iš 254,39 kv. m bendrojo ploto. Pastatas yra trijų aukštų, mūrinis.
Kokios sąlygos taikomos elektos tiekimui po objekto įsigijimo?
Pirkėjas įsipareigoja savo lėšomis ir rizika spręsti visus vidaus elektros tinklų remonto bei atnaujinimo klausimus. Savivaldybė neužtikrina elektros tiekimo tvarkingumo ar nenutrūkstamumo.