LT EN RU UA

Žemės sklypas Vilniuje, Miškinių Sodų g. 35, 0.0798 ha, pradinė kaina 31200 EUR

📝 Aprašymas

★★★★★ ★★★★★ 4.0
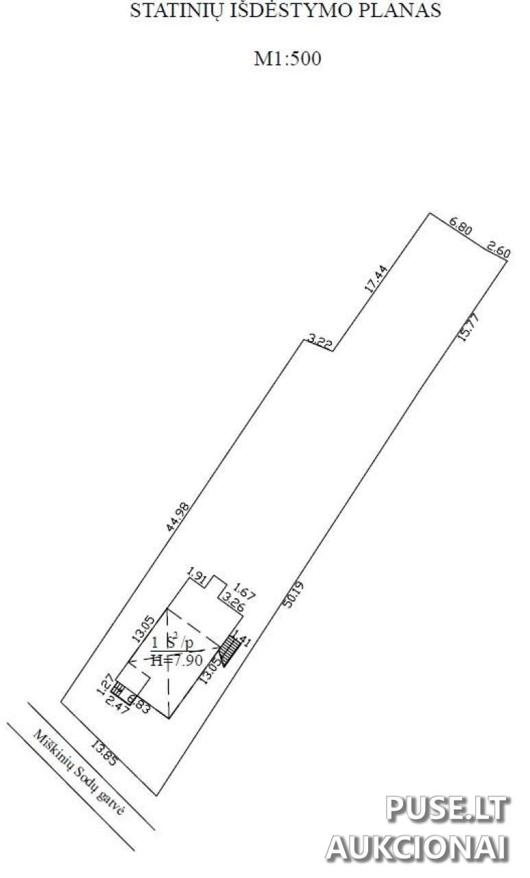
Parduodama 3/4 dalis nekilnojamojo turto - žemės sklypo Vilniaus miesto savivaldybėje, Vilniaus mieste, adresu Miškinių Sodų g. 35. Šis turto objektas, parduodamas antstolių varžytynėse, turi pradinę kainą, nustatytą 31200 EUR. Žemės sklypo bendras plotas yra 0.0798 ha. Pagrindinė daikto naudojimo paskirtis yra Žemės ūkio, o naudojimo būdas apibrėžiamas kaip Mėgėjų sodų žemės sklypai ir sodininkų bendrijų bendrojo naudojimo žemės sklypai. Visas sklypo plotas (0.0798 ha) priskiriamas sodų plotui. Žemės ūkio naudmenų našumo balas yra 25.0. Matavimai atlikti preliminariai suformuojant žemės sklypą.

Aukcionas prasideda 2026-01-19 13:38:48 ir baigiasi 2026-02-18 13:38:59. Kadastrinis numeris yra 0101/0084:428, o unikalus numeris – 0101-0084-0428. Parduodama dalis sudaro 3/4 bendrosios nuosavybės.

Objektui taikomas turto areštas, reiškiantis disponavimo teisių apribojimą. Galimybė apžiūrėti turtą yra ribota, rekomenduojamas nuvykimas į vietą. Visi suinteresuoti asmenys, siekiantys įgyti teises į parduodamą turtą, privalo iki varžytynių pabaigos pateikti antstoliui visus savo teises patvirtinančius dokumentus.

Varžytynes organizuoja Antstolių V.Meškauskienės ir I.Gaidelio kontora, atstovas yra antstolis Irmantas Gaidelis.

📍 Objekto lokacija

📍 Vilniaus m. sav. Vilniaus m. Miškinių Sodų g. 35

❓ Dažnai užduodami klausimai

Kokia žemės sklypo pradinė kaina antstolių varžytynėse?
Žemės sklypo Vilniuje, Miškinių Sodų g. 35, pradinė kaina nustatyta 31200 EUR.
Kada vyksta aukcionas šiam 0.0798 ha sklypui Vilniuje?
Aukcionas prasideda 2026-01-19 13:38:48 ir baigiasi 2026-02-18 13:38:59.
Koks yra šio parduodamo turto plotas ir pagrindinė paskirtis?
Sklypo plotas yra 0.0798 ha. Pagrindinė naudojimo paskirtis yra Žemės ūkio, naudojimo būdas: Mėgėjų sodų žemės sklypai ir sodininkų bendrijų bendrojo naudojimo žemės sklypai.
Kokia dalis nuosavybės parduodama šioje aukcione?
Parduodama 3/4 dalis žemės sklypo.
Kokie apribojimai galioja šiam nekilnojamajam turtui?
Objektui taikomas Turto areštas, reiškiantis disponavimo teisių apribojimą.
Kur galima rasti daugiau informacijos ar apžiūrėti parduodamą sklypą?
Apžiūros galimybė ribota, rekomenduojama nuvykti į vietą. Dėl varžytynių kreiptis į Antstolių V.Meškauskienės ir I.Gaidelio kontorą.

⏱ Aukciono laikas

Aukcionas pasibaigė

Aukcionas

Iki: 2026-02-18 13:38:59

🏠 Objekto informacija

📍 Adresas
Vilniaus m. sav. Vilniaus m. Miškinių Sodų g. 35
Tipas
Antrosios
Potipis
Sklypai
Kadastrinis Nr.
0101/0084:428
⚠️ Apribojimai
Disponavimo teisės apribojimas Turto areštas
Objekto ID: 409887
💰 Pradinė kaina
31200.00 €
Dalyvauti aukcione
🔑 Raktažodžiai
žemės sklypai vilniuje aukcionas miškinių sodų g 35 sklypas žemės ūkio paskirtis sklypas parduoda 3/4 dalis sklypo vilniuje antstolių varžytynės vilnius