📝 Aprašymas
Parduodamas gyvenamasis namas ir priklausiniai su 0.2919 ha žemės sklypu Akmenės rajono savivaldybėje, Kinkių II kaime, Smilgų g. 14. Šis nekilnojamojo turto kompleksas parduodamas pakartotiniu aukcionu, kurio pradinė kaina yra 9608 EUR. Pardavimo dalis yra 1/1.
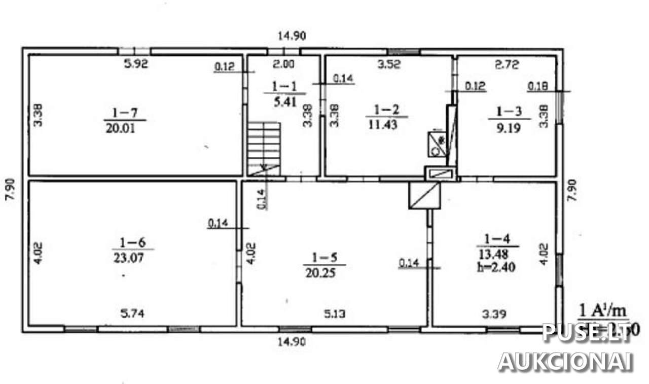
Kompleksą sudaro pagrindinis objektas - gyvenamasis namas, kurio bendras plotas 102.84 kv. m. (Unikalus Nr. 3292-9001-6016). Taip pat parduodami suformuoti ūkiniai ir pagalbiniai statiniai: Ūkinis pastatas, užstatyto ploto 170.00 kv. m. (Unikalus Nr. 3292-9001-6027); Sandėlis 15.00 kv. m. (Unikalus Nr. 3292-9001-6038); Sandėlis 7.00 kv. m. (Unikalus Nr. 3292-9001-6049); Daržinė 94.00 kv. m. (Unikalus Nr. 3292-9001-6052); Kiemo statiniai (šulinys, lauko tualetas, stoginė 6I1ž) (Unikalus Nr. 3292-9001-6066). Nekilnojamasis turtas parduodamas su 0.2919 ha žemės sklypu (Unikalus Nr. 3205-0009-0023) Kinkių II kaime.
Objektai parduodami esamos fizinės ir funkcinės būklės, pagal esamus kadastro duomenis. Yra nustatyta, kad ūkinio pastato (plane pažymėto 2I1p) langas užmūrytas. VĮ Turto bankas neturi informacijos apie rekonstrukcijos laiką ir teisėtumą, neįsipareigoja nustatyti aktualios kadastro būklės. Pirkėjui rekomenduojama atlikti išsamią apžiūrą vietoje ir įvertinti visas su tokios būklės turto pirkimu susijusias teisines bei ekonomines rizikas, įskaitant galimus kaštus įrengimui ar nugriovimui bei atitikimą statybos ir aplinkosaugos reikalavimams. VĮ Turto bankas neatsako už statinio trūkumus, leidimų nebuvimą ar kadastro duomenų neatitikimus. Taip pat pirkėjas turi išnagrinėti sąlygas dėl inžinierinio statinio (lauko tualeto), kuris neatitinka jam taikomų teisės aktų reikalavimų. VĮ Turto bankas neįsipareigoja iškraustyti jame esančių daiktų.
Aukcionas prasideda 2026-02-11 09:00:00 ir baigiasi 2026-02-12 13:59:59. Privalomas garantinis mokestis yra 960 EUR, o registracijos mokestis – 30 EUR. Dalyvavimas bus užtikrintas sėkmingai pateikus registracijos mokestį ir garantinį įnašą iki 2026-02-06 23:59:59.
Kompleksą sudaro pagrindinis objektas - gyvenamasis namas, kurio bendras plotas 102.84 kv. m. (Unikalus Nr. 3292-9001-6016). Taip pat parduodami suformuoti ūkiniai ir pagalbiniai statiniai: Ūkinis pastatas, užstatyto ploto 170.00 kv. m. (Unikalus Nr. 3292-9001-6027); Sandėlis 15.00 kv. m. (Unikalus Nr. 3292-9001-6038); Sandėlis 7.00 kv. m. (Unikalus Nr. 3292-9001-6049); Daržinė 94.00 kv. m. (Unikalus Nr. 3292-9001-6052); Kiemo statiniai (šulinys, lauko tualetas, stoginė 6I1ž) (Unikalus Nr. 3292-9001-6066). Nekilnojamasis turtas parduodamas su 0.2919 ha žemės sklypu (Unikalus Nr. 3205-0009-0023) Kinkių II kaime.
Objektai parduodami esamos fizinės ir funkcinės būklės, pagal esamus kadastro duomenis. Yra nustatyta, kad ūkinio pastato (plane pažymėto 2I1p) langas užmūrytas. VĮ Turto bankas neturi informacijos apie rekonstrukcijos laiką ir teisėtumą, neįsipareigoja nustatyti aktualios kadastro būklės. Pirkėjui rekomenduojama atlikti išsamią apžiūrą vietoje ir įvertinti visas su tokios būklės turto pirkimu susijusias teisines bei ekonomines rizikas, įskaitant galimus kaštus įrengimui ar nugriovimui bei atitikimą statybos ir aplinkosaugos reikalavimams. VĮ Turto bankas neatsako už statinio trūkumus, leidimų nebuvimą ar kadastro duomenų neatitikimus. Taip pat pirkėjas turi išnagrinėti sąlygas dėl inžinierinio statinio (lauko tualeto), kuris neatitinka jam taikomų teisės aktų reikalavimų. VĮ Turto bankas neįsipareigoja iškraustyti jame esančių daiktų.
Aukcionas prasideda 2026-02-11 09:00:00 ir baigiasi 2026-02-12 13:59:59. Privalomas garantinis mokestis yra 960 EUR, o registracijos mokestis – 30 EUR. Dalyvavimas bus užtikrintas sėkmingai pateikus registracijos mokestį ir garantinį įnašą iki 2026-02-06 23:59:59.
📍 Objekto lokacija
📍 Akmenės r. sav. Kinkių II k. Smilgų g. 14
❓ Dažnai užduodami klausimai
Kokia yra gyvenamojo namo ir ūkinio komplekso su sklypu pradinė kaina Akmenės rajone?
Šio nekilnojamojo turto komplekso (gyvenamasis namas, ūkiniai statiniai ir 0.2919 ha sklypas) pradinė kaina yra 9608 EUR.
Kada vyksta aukcionas, kuriame parduodamas objektas Smilgų g. 14, Kinkiuose II?
Aukcionas prasideda 2026-02-11 09:00:00 ir baigiasi 2026-02-12 13:59:59.
Kokia yra registracijos galutinė data norintiems dalyvauti aukcione?
Registracija į aukcioną baigiasi 2026-02-06 23:59:59.
Kokie papildomi mokesčiai yra taikomi dalyvaujant šiame Turto banko aukcione?
Reikalingas garantinis mokestis – 960 EUR, bei registracijos mokestis – 30 EUR.
Koks yra pagrindinio gyvenamojo namo plotas ir žemės sklypo dydis?
Gyvenamojo namo bendras plotas yra 102.84 kv. m. Pardavimas vyksta kartu su 0.2919 ha žemės sklypu.
Ar pardavėjas garantuoja statinių atitikimą galiojantiems teisės aktams?
Ne, VĮ Turto bankas neįsipareigoja nustatyti aktualios nekilnojamojo turto kadastro duomenų būklės ir neatsako už statinių trūkumus, neatitikimus statybos ar aplinkosaugos reikalavimams. Pirkėjas turi pats įvertinti rizikas.