📝 Aprašymas
Parduodamas 1/1 dalis buto, esančio Šilutės rajono savivaldybėje, Domaičių kaime, adresu 1-9. Šio nekilnojamojo turto pradinė kaina aukcione yra 2070 EUR. Bendra parduodamo buto naudingasis plotas siekia 51.68 kv. m. Unikalus daikto kodas – 4400-0653-7802:4836.
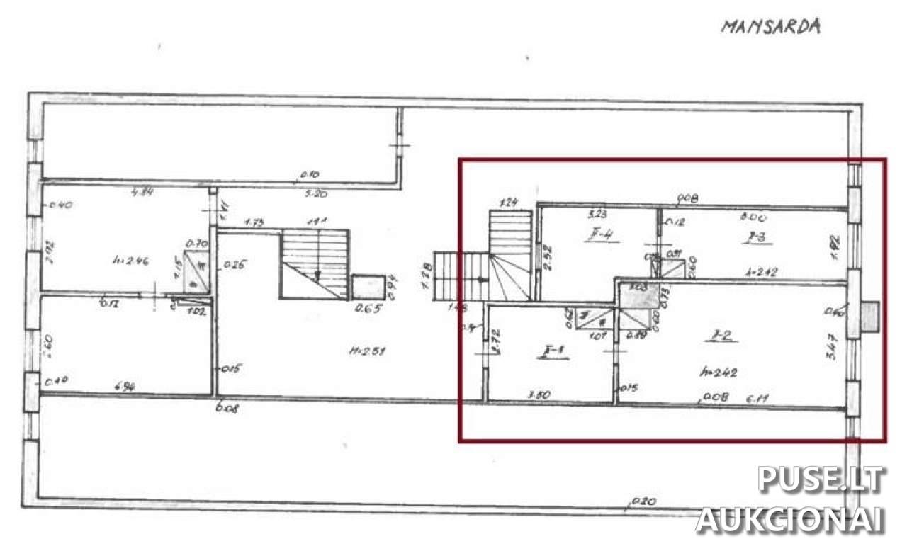
Nekilnojamasis turtas parduodamas esamos fizinės ir funkcinės būklės, remiantis neaktualizuotais kadastro duomenimis. Buto viduje pakeistas patekimas iš 2 patalpos į 3 patalpą – sienoje padaryta durų anga. Pardavėjas VĮ Turto bankas neturi informacijos apie pastato rekonstrukcijos detales ir jos atitikimą tuo metu galiojusiems teisės aktams. VĮ Turto bankas neįsipareigoja nustatyti aktualios nekilnojamojo turto kadastro duomenų būklės ar registruoti pakeistų duomenų. Potencialiam pirkėjui rekomenduojama išnagrinėti visas teikines ir ekonomines rizikas bei atlikti objekto apžiūrą, surinkti informaciją apie galimus įrengimo kaštus.
Papildomos sąlygos: VĮ Turto bankas neatsako už jokius su defektais susijusius nuostolius, galinčius kilti dėl neatitikimo statybos, aplinkos apsaugos ar kitiems teisės aktams. Taip pat neatsakoma už tinkamumą naudoti tam tikrai paskirčiai ar privalomų leidimų nebuvimą. VĮ Turto bankas neįsipareigoja iškraustyti objekte esančių daiktų. Svarbu žinoti, kad parduodamas statinys yra valstybinėje žemėje, kurios sklypas nėra suformuotas, todėl Turto bankas teisių į sklypą ar jo dalį neperleidžia. Objekte nustatytas bendro naudojimo objektų valdymas pagal 2020-11-25 sudarytą jungtinės veiklos sutartį.
Aukcionas prasideda 2026-03-09 09:00:00 ir baigiasi 2026-03-10 13:59:59. Registracija vyksta nuo 2026-03-02 00:00:00 iki 2026-03-04 23:59:59. Privalomasis garantinis mokestis yra 207 EUR, o registracijos mokestis – 10 EUR.
Nekilnojamasis turtas parduodamas esamos fizinės ir funkcinės būklės, remiantis neaktualizuotais kadastro duomenimis. Buto viduje pakeistas patekimas iš 2 patalpos į 3 patalpą – sienoje padaryta durų anga. Pardavėjas VĮ Turto bankas neturi informacijos apie pastato rekonstrukcijos detales ir jos atitikimą tuo metu galiojusiems teisės aktams. VĮ Turto bankas neįsipareigoja nustatyti aktualios nekilnojamojo turto kadastro duomenų būklės ar registruoti pakeistų duomenų. Potencialiam pirkėjui rekomenduojama išnagrinėti visas teikines ir ekonomines rizikas bei atlikti objekto apžiūrą, surinkti informaciją apie galimus įrengimo kaštus.
Papildomos sąlygos: VĮ Turto bankas neatsako už jokius su defektais susijusius nuostolius, galinčius kilti dėl neatitikimo statybos, aplinkos apsaugos ar kitiems teisės aktams. Taip pat neatsakoma už tinkamumą naudoti tam tikrai paskirčiai ar privalomų leidimų nebuvimą. VĮ Turto bankas neįsipareigoja iškraustyti objekte esančių daiktų. Svarbu žinoti, kad parduodamas statinys yra valstybinėje žemėje, kurios sklypas nėra suformuotas, todėl Turto bankas teisių į sklypą ar jo dalį neperleidžia. Objekte nustatytas bendro naudojimo objektų valdymas pagal 2020-11-25 sudarytą jungtinės veiklos sutartį.
Aukcionas prasideda 2026-03-09 09:00:00 ir baigiasi 2026-03-10 13:59:59. Registracija vyksta nuo 2026-03-02 00:00:00 iki 2026-03-04 23:59:59. Privalomasis garantinis mokestis yra 207 EUR, o registracijos mokestis – 10 EUR.
📍 Objekto lokacija
📍 Šilutės r. sav. Domaičių k. 1-9
❓ Dažnai užduodami klausimai
Kokia yra nekilnojamojo turto Šilutės rajone pradinė kaina aukcione?
Pradinė buto kaina Šilutės r. sav., Domaičių k. 1-9, aukcione yra 2070 EUR.
Kada vyks aukcionas, kuriame parduodamas 51.68 kv. m. butas?
Aukcionas vyks 2026-03-09 09:00:00 iki 2026-03-10 13:59:59.
Kokie yra papildomi mokėjimai dalyvaujant aukcione?
Reikalingas 207 EUR garantinis mokestis ir 10 EUR registracijos mokestis.
Kada baigiasi registracija dalyvauti aukcione?
Registracija į aukcioną baigiasi 2026-03-04 23:59:59.
Ar pardavėjas garantuoja nekilnojamojo turto kadastro duomenų atitikimą?
Ne, VĮ Turto bankas neįsipareigoja nustatyti aktualios nekilnojamojo turto kadastro duomenų būklės ir neatsako už galimus nuostolius dėl neatitikimo teisės aktų reikalavimams.
Ar butas parduodamas su suformuotu žemės sklypu?
Ne, parduodamas statinys yra valstybinėje žemėje, kurios sklypas nesuformuotas, o Turto bankas teisių į sklypą neperleidžia.
Kokia atlikta buto vidinė modifikacija?
Bute pakeistas patekimas iš 2 patalpos į 3 patalpą – sienoje padaryta durų anga.