📝 Aprašymas
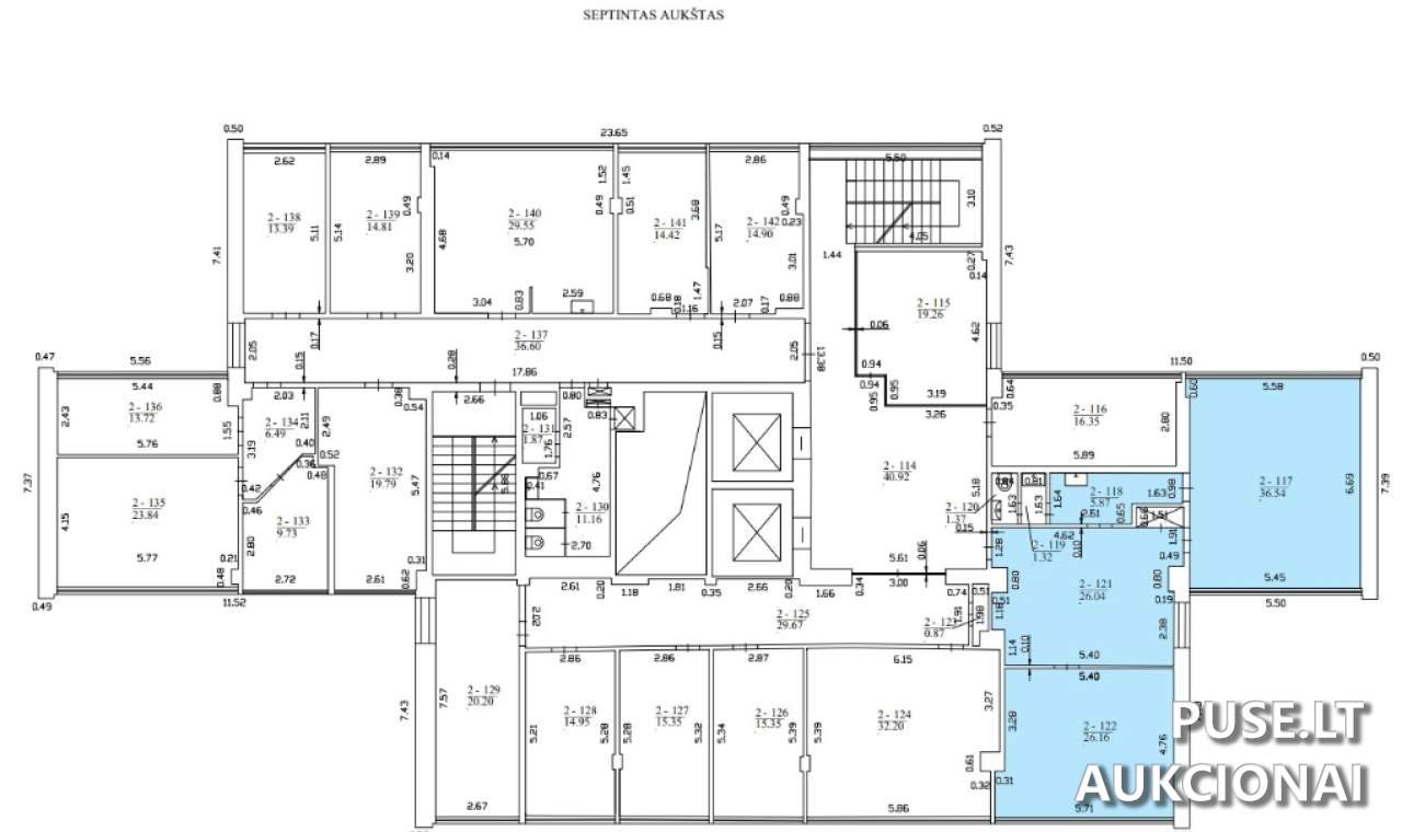
Skelbiamas nuomos konkursas dėl administracinės paskirties patalpų Vilniaus miesto savivaldybėje, adresu A. Juozapavičiaus g. 9-2. Bendras siūlomas nuomai plotas sudaro 132,81 kv. m. Patalpos yra 7-ame aukšte ir apima indeksais 2-117, 2-118, 2-121, 2-122 pažymėtas patalpas (94,61 kv. m) bei bendro naudojimo patalpas. Unikalus turto kodas - 1097-3000-1019:0005.
Šis turtas, kurio unikalus numeris 1097-3000-1019:0005, yra parduodamas esamos būklės. Būsimas nuomininkas turi galimybę, savo lėšomis, patalpas įsirengti pagal savo verslo poreikius ir specifikacijas, kas suteikia lankstumo pritaikant erdvę.
Nuomos konkursas prasideda 2026-02-11 09:00:00 ir baigiasi 2026-02-12 13:59:59. Registracija dalyvavimui vyksta nuo 2026-02-02 00:00:00 iki 2026-02-04 23:59:59. Užregistravimo mokestis, reikalingas norint dalyvauti konkurse, yra 50 EUR.
Patalpų apžiūra yra organizuojama nuo 2026-01-23 iki 2026-02-04, kasdien nuo 10:00 val. iki 15:00 val. Būtina informuoti kontaktinį asmenį ne vėliau kaip prieš 1 darbo dieną iki planuojamos apžiūros.
Nuomos organizatorius yra Valstybės įmonė Turto bankas (įmonės kodas 112021042). Maksimali pradinė nuomos kaina nurodyta 0 EUR. Dalyvio registravimo mokesčio ir pradinio įnašo sumokėjimai atliekami į AB SEB banko sąskaitą, nurodytą VĮ Turto bankas (įm. k. 112021042) gavėjui, nurodant konkretaus e. konkurso numerį mokėjimo paskirtyje.
Šis turtas, kurio unikalus numeris 1097-3000-1019:0005, yra parduodamas esamos būklės. Būsimas nuomininkas turi galimybę, savo lėšomis, patalpas įsirengti pagal savo verslo poreikius ir specifikacijas, kas suteikia lankstumo pritaikant erdvę.
Nuomos konkursas prasideda 2026-02-11 09:00:00 ir baigiasi 2026-02-12 13:59:59. Registracija dalyvavimui vyksta nuo 2026-02-02 00:00:00 iki 2026-02-04 23:59:59. Užregistravimo mokestis, reikalingas norint dalyvauti konkurse, yra 50 EUR.
Patalpų apžiūra yra organizuojama nuo 2026-01-23 iki 2026-02-04, kasdien nuo 10:00 val. iki 15:00 val. Būtina informuoti kontaktinį asmenį ne vėliau kaip prieš 1 darbo dieną iki planuojamos apžiūros.
Nuomos organizatorius yra Valstybės įmonė Turto bankas (įmonės kodas 112021042). Maksimali pradinė nuomos kaina nurodyta 0 EUR. Dalyvio registravimo mokesčio ir pradinio įnašo sumokėjimai atliekami į AB SEB banko sąskaitą, nurodytą VĮ Turto bankas (įm. k. 112021042) gavėjui, nurodant konkretaus e. konkurso numerį mokėjimo paskirtyje.
📍 Objekto lokacija
📍 Vilniaus m. sav. Vilniaus m. A. Juozapavičiaus g. 9-2
❓ Dažnai užduodami klausimai
Kokia siūlomų administracinių patalpų bendra nuomojama kvadratūra Vilniuje?
Bendras nuomojamas plotas sudaro 132,81 kv. m. Tai apima 94,61 kv. m. pagrindinių patalpų (indeksai 2-117, 2-118, 2-121, 2-122) ir bendro naudojimo patalpas.
Kada vyks nuomos konkurso balsavimas ir kada jame galima registruotis?
Aukcionas vyks nuo 2026-02-11 09:00:00 iki 2026-02-12 13:59:59. Registracija dalyvavimui priimama nuo 2026-02-02 00:00:00 iki 2026-02-04 23:59:59.
Kokia administratoriaus nustatyta pradinė nuomos kaina ir kokie yra dokumentų pateikimo mokesčiai?
Pradinė kaina nurodyta 0 EUR. Registracijos mokestis dalyvavimui konkurse yra 50 EUR.
Kur tiksliai yra nuomojamos patalpos ir kokiame aukšte jos yra?
Patalpos yra Vilniaus m. sav., A. Juozapavičiaus g. 9-2, jos yra 7-ame aukšte.
Ar patalpos yra įrengtos ir kas atsakingas už įrengimą?
Patalpos nuomojamos esamos būklės. Nuomininkas turi teisę (savo lėšomis) patalpas įsirengti pagal savo poreikius.
Kaip susitarti dėl patalpų apžiūros A. Juozapavičiaus g. 9?
Apžiūra galima nuo 2026-01-23 iki 2026-02-04, 10:00-15:00 val., iš anksto informuojant kontaktinį asmenį ne vėliau kaip prieš 1 darbo dieną.