📝 Aprašymas
Ieškote nuomotis didelės ploto administracines patalpas Vilniaus miesto centre, strategiškai patogioje vietoje? Siūlomos nuomoti 139,31 kv. m ploto administracinės paskirties patalpos, esančios A. Juozapavičiaus g. 9-2, Vilniaus m. savivaldybėje. Tai puiki investavimo galimybė į verslo patalpas su galimybe įsirengti pagal savo poreikius.
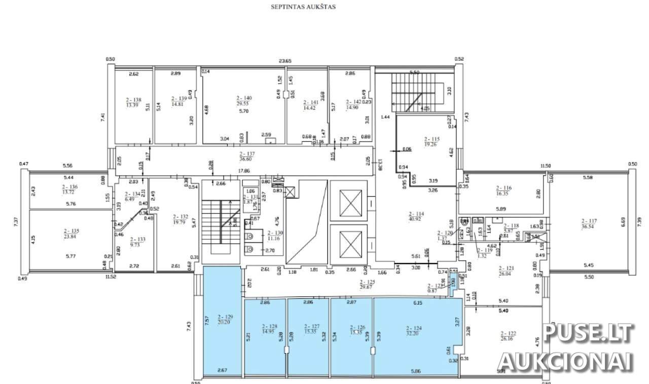
Nuomojamas bendras plotas siekia 139,31 kv. m. Patalpos yra 7-ajame aukšte ir apima indeksus: 2-123, 2-124, 2-126, 2-127, 2-128, 2-129 (iš jų 98,92 kv. m yra pagrindinis plotas, papildomai priskiriamos bendro naudojimo patalpos). Patalpos nuomojamos esamos būklės, todėl naujasis nuomininkas galės savo lėšomis atlikti individualų remontą ir pritaikyti erdves specifiniams verslo poreikiams.
Šis nuomos konkursas yra pakartotinis. Pradinė nuomos kaina nurodyta 0 EUR, tačiau tai yra nuomos konkursas, kuriame siūloma kaina bus pagrindinis kriterijus. Registracijos mokestis dalyviams sudaro 50 EUR.
Aukciono (e. konkurso) laikotarpis yra griežtai apibrėžtas. Patalpų apžiūrai būtina registruotis iš anksto. Apžiūros vyks nuo 2026-01-23 iki 2026-02-04, kasdien nuo 10:00 val. iki 15:00 val. Apie savo atvykimą privaloma informuoti kontaktinį asmenį ne vėliau kaip prieš 1 darbo dieną iki planuojamos apžiūros.
Konkurso pradžia numatyta 2026-02-11 09:00:00, o pabaiga – 2026-02-12 13:59:59. Registracija į konkursą vyksta nuo 2026-02-02 00:00:00 iki 2026-02-04 23:59:59. Dėl detalių ir sutarties sąlygų konsultuotis galima su konkurso organizatoriumi Valstybės įmone „Turto bankas“ (įm. k. 112021042).
Nuomos sąlygas ir sutarties projektus galima peržiūrėti oficialiuose skelbimo vietoje pateikiamuose dokumentuose. Savininko statusas nurodytas kaip Lietuvos Respublika.
Nuomojamas bendras plotas siekia 139,31 kv. m. Patalpos yra 7-ajame aukšte ir apima indeksus: 2-123, 2-124, 2-126, 2-127, 2-128, 2-129 (iš jų 98,92 kv. m yra pagrindinis plotas, papildomai priskiriamos bendro naudojimo patalpos). Patalpos nuomojamos esamos būklės, todėl naujasis nuomininkas galės savo lėšomis atlikti individualų remontą ir pritaikyti erdves specifiniams verslo poreikiams.
Šis nuomos konkursas yra pakartotinis. Pradinė nuomos kaina nurodyta 0 EUR, tačiau tai yra nuomos konkursas, kuriame siūloma kaina bus pagrindinis kriterijus. Registracijos mokestis dalyviams sudaro 50 EUR.
Aukciono (e. konkurso) laikotarpis yra griežtai apibrėžtas. Patalpų apžiūrai būtina registruotis iš anksto. Apžiūros vyks nuo 2026-01-23 iki 2026-02-04, kasdien nuo 10:00 val. iki 15:00 val. Apie savo atvykimą privaloma informuoti kontaktinį asmenį ne vėliau kaip prieš 1 darbo dieną iki planuojamos apžiūros.
Konkurso pradžia numatyta 2026-02-11 09:00:00, o pabaiga – 2026-02-12 13:59:59. Registracija į konkursą vyksta nuo 2026-02-02 00:00:00 iki 2026-02-04 23:59:59. Dėl detalių ir sutarties sąlygų konsultuotis galima su konkurso organizatoriumi Valstybės įmone „Turto bankas“ (įm. k. 112021042).
Nuomos sąlygas ir sutarties projektus galima peržiūrėti oficialiuose skelbimo vietoje pateikiamuose dokumentuose. Savininko statusas nurodytas kaip Lietuvos Respublika.
📍 Objekto lokacija
📍 Vilniaus m. sav. Vilniaus m. A. Juozapavičiaus g. 9-2
❓ Dažnai užduodami klausimai
Kokia yra nuomojamų administracinių patalpų bendra ploto apimtis A. Juozapavičiaus g. 9?
Nuomojamas bendras plotas yra 139,31 kv. m, apimantis keletą segmentų (2-123, 2-124, 2-126, 2-127, 2-128, 2-129) 7-ajame aukšte.
Kada prasidės ir baigsis e. konkursas dėl šių patalpų nuomos?
Aukcionas prasideda 2026-02-11 09:00:00 ir baigiasi 2026-02-12 13:59:59.
Kokia yra pradinė nuomos kaina ir kokio dydžio registracijos mokestis taikomas dalyviui?
Pradinė nuomos kaina nurodyta 0 EUR. Registracijos mokestis dalyviui yra 50 EUR.
Kada galima apžiūrėti nuomojamas administracines patalpas A. Juozapavičiaus g. 9?
Apžiūros vyksta nuo 2026-01-23 iki 2026-02-04, kasdien nuo 10:00 val. iki 15:00 val., išanksto informavus kontaktinį asmenį.
Kokia yra nuomojamų patalpų būklė ir ar galima jas pritaikyti savo poreikiams?
Patalpos nuomojamos esamos būklės, tačiau nuomininkas turi galimybę (savo lėšomis) jas įsirengti pagal savo verslo poreikius.
Koks juridinio turto unikalus numeris yra priskirtas šioms nuomojamoms patalpoms?
Patalpų unikalus numeris yra 1097-3000-1019:0005.