📝 Aprašymas
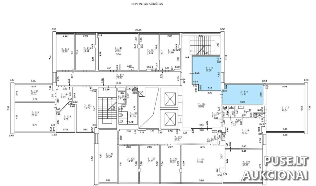
Parduodamos (nuomojamos) administracinės paskirties patalpos Vilniaus miesto savivaldybėje, esančios A. Juozapavičiaus gatvėje 9-2. Tai yra pakartotinis nuomos konkursas, kuriame taikoma 0 EUR pradinė kaina. Nuomojamas turtas yra 7-ame aukšte ir apima patalpas su indeksais 2-115 bei 2-116, kurių bendras plotas siekia 50,16 kv. m. Šiame plote yra ir bendro naudojimo patalpos.
Administracinės patalpos nuomojamos esamos būklės. Svarbu pažymėti, kad nuomininkas turės galimybę patalpas įsirengti pagal savo specifinius poreikius, tačiau tai reikalaus nuomininko lėšų.
E-konkursas prasidės 2026-02-11 09:00:00 ir baigsis 2026-02-12 13:59:59. Dalyvių registracija vyksta nuo 2026-02-02 00:00:00 iki 2026-02-04 23:59:59. Registracijos mokestis, kuris yra negrąžinamas, sudaro 50 EUR. Ši suma ir pradinė įmoka (kuri yra 0 EUR) turi būti sumokėta į VĮ Turto bankas sąskaitą AB SEB banke.
Nuomojamo turto unikalus numeris yra 1097-3000-1019:0005. Turto savininkas yra Lietuvos Respublika (kodas 111105555). Valstybės ilgalaikio materialiojo turto nuomos elektroninio konkurso bendrosios sąlygos ir nuomos sutarties projektas yra skelbiami viešai.
Turto apžiūros galimos nuo 2026-01-23 iki 2026-02-04, kasdien nuo 10:00 iki 15:00 valandos. Būtina išankstinė registracija, informuojant kontaktinį asmenį ne vėliau kaip prieš 1 darbo dieną iki planuojamos apžiūros.
Administracinės patalpos nuomojamos esamos būklės. Svarbu pažymėti, kad nuomininkas turės galimybę patalpas įsirengti pagal savo specifinius poreikius, tačiau tai reikalaus nuomininko lėšų.
E-konkursas prasidės 2026-02-11 09:00:00 ir baigsis 2026-02-12 13:59:59. Dalyvių registracija vyksta nuo 2026-02-02 00:00:00 iki 2026-02-04 23:59:59. Registracijos mokestis, kuris yra negrąžinamas, sudaro 50 EUR. Ši suma ir pradinė įmoka (kuri yra 0 EUR) turi būti sumokėta į VĮ Turto bankas sąskaitą AB SEB banke.
Nuomojamo turto unikalus numeris yra 1097-3000-1019:0005. Turto savininkas yra Lietuvos Respublika (kodas 111105555). Valstybės ilgalaikio materialiojo turto nuomos elektroninio konkurso bendrosios sąlygos ir nuomos sutarties projektas yra skelbiami viešai.
Turto apžiūros galimos nuo 2026-01-23 iki 2026-02-04, kasdien nuo 10:00 iki 15:00 valandos. Būtina išankstinė registracija, informuojant kontaktinį asmenį ne vėliau kaip prieš 1 darbo dieną iki planuojamos apžiūros.
📍 Objekto lokacija
📍 Vilniaus m. sav. Vilniaus m. A. Juozapavičiaus g. 9-2
❓ Dažnai užduodami klausimai
Kokia yra administracinių patalpų bendroji nuomojama kvadratūra A. Juozapavičiaus g. 9?
Bendras nuomojamas plotas siekia 50,16 kv. m, apimantis patalpas su indeksais 2-115, 2-116, bei bendro naudojimo patalpas 7-ame aukšte.
Kada vyksta nuomos konkursas A. Juozapavičiaus g. 9 nuomojamoms patalpoms?
Aukcionas (e-konkursas) prasideda 2026-02-11 09:00:00 ir baigiasi 2026-02-12 13:59:59.
Kokia yra pradinė kaina ir registracijos mokestis šiam aukcionui?
Pradinė kaina yra 0 EUR. Registracijos mokestis dalyviui sudaro 50 EUR.
Kada galima apžiūrėti nuomojamas administracines patalpas Vilniuje?
Apžiūros vyksta nuo 2026-01-23 iki 2026-02-04, nuo 10:00 val. iki 15:00 val., išankstiniu susitarimu.
Kokia yra pagrindinė patalpų būklė ir ar galimas įsirengimas?
Patalpos nuomojamos esamos būklės. Nuomininkas turi teisę patalpas įsirengti savo lėšomis pagal savo poreikius.
Kuri organizacija organizuoja šį nuomos konkursą ir koks yra turto unikalus numeris?
Konkursą organizuoja VĮ Turto bankas (įm. k. 112021042). Turto unikalus Nr. yra 1097-3000-1019:0005.