📝 Aprašymas
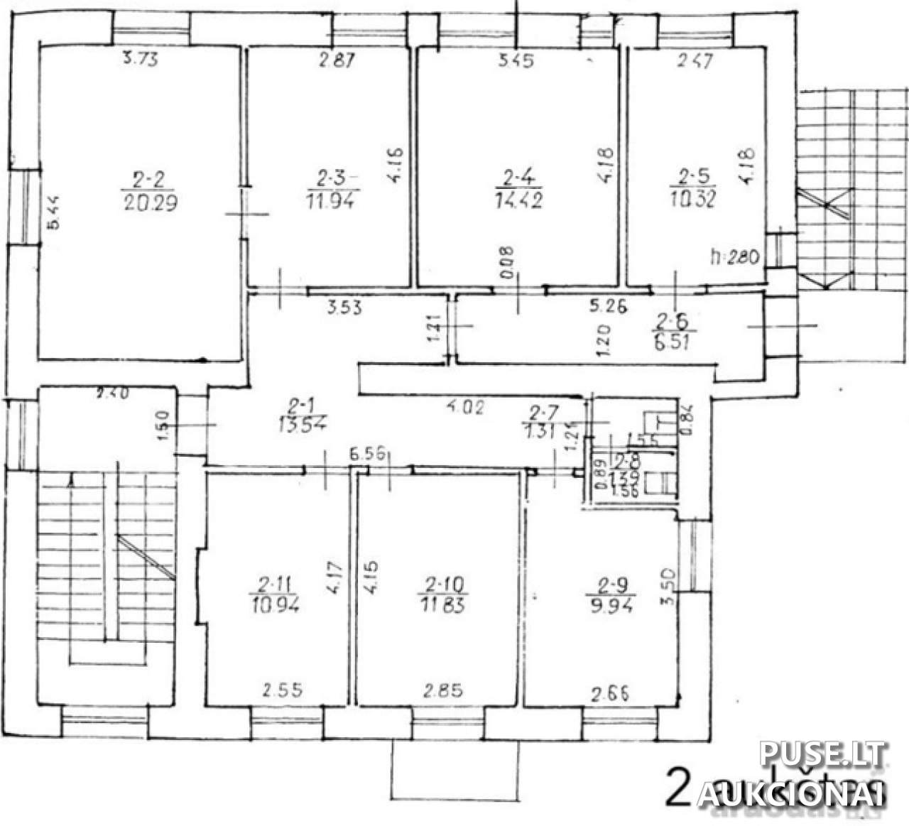
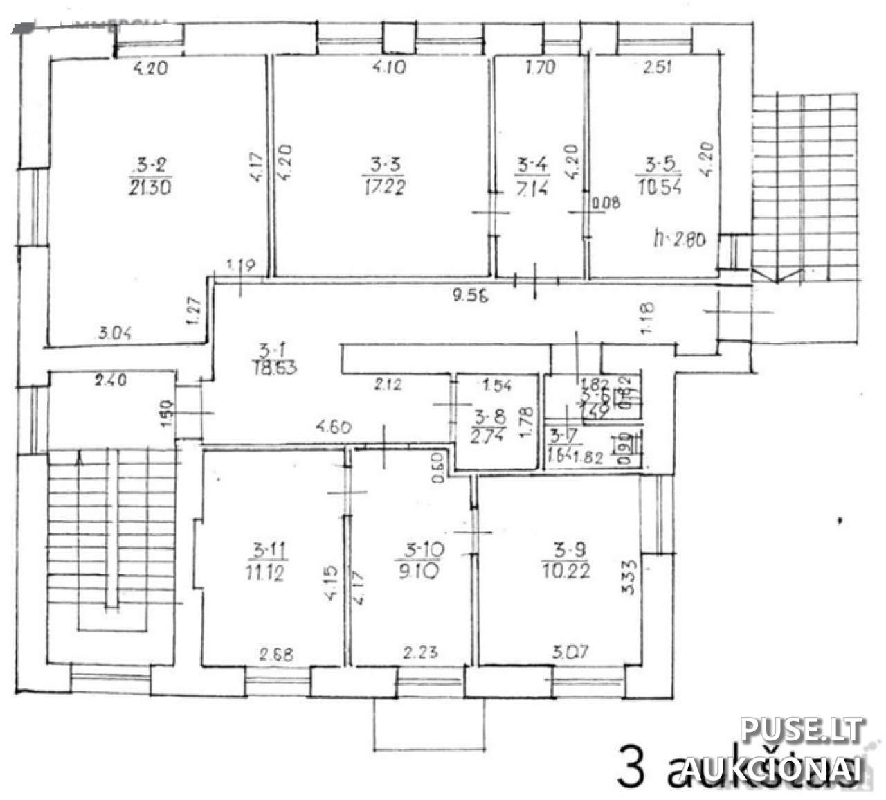
Skelbiamas pakartotinis nuomos konkursas administracinės paskirties pastatui Vilniaus mieste, esančiam Ankštoji g. 1A. Patalpos nuomojamos esamos būklės, suteikiant nuomininkui galimybę jas įsirengti pagal savo veiklą ir poreikius, naudojant nuomininko lėšas. Nuomojamas bendras plotas sudaro 501,25 kvadratinių metrų.
Konkurso pradžia numatyta 2026-03-09, o baigsis 2026-03-10. Registracija dalyvauti konkurse vyksta nuo 2026-03-02 iki 2026-03-04. Pradėta nuomos kaina nustatyta 0 EUR, tačiau dalyvio registracijos mokestis yra 50 EUR. Visos nuomos konkurso sąlygos, įskaitant Valstybės ilgalaikio materialiojo turto nuomos elektroninio konkurso bendrąsias sąlygas ir nuomos sutarties projektą, yra prieinamos per nurodytas nuorodas.
Turto apžiūra organizuojama laikotarpiu nuo 2026-01-30 iki 2026-03-02, nuo 10:00 iki 15:00 valandos. Būtina iš anksto informuoti kontaktinį asmenį apie atvykimą ne vėliau kaip prieš 1 darbo dieną. Konkursą organizuoja Valstybės įmonė Turto bankas (įm. k. 112021042).
Atsiskaitymai už registracijos mokestį ir pradinį įnašą turi būti pervesti į VĮ Turto bankas sąskaitą AB SEB banke, nurodant konkretaus e. konkurso numerį.
Konkurso pradžia numatyta 2026-03-09, o baigsis 2026-03-10. Registracija dalyvauti konkurse vyksta nuo 2026-03-02 iki 2026-03-04. Pradėta nuomos kaina nustatyta 0 EUR, tačiau dalyvio registracijos mokestis yra 50 EUR. Visos nuomos konkurso sąlygos, įskaitant Valstybės ilgalaikio materialiojo turto nuomos elektroninio konkurso bendrąsias sąlygas ir nuomos sutarties projektą, yra prieinamos per nurodytas nuorodas.
Turto apžiūra organizuojama laikotarpiu nuo 2026-01-30 iki 2026-03-02, nuo 10:00 iki 15:00 valandos. Būtina iš anksto informuoti kontaktinį asmenį apie atvykimą ne vėliau kaip prieš 1 darbo dieną. Konkursą organizuoja Valstybės įmonė Turto bankas (įm. k. 112021042).
Atsiskaitymai už registracijos mokestį ir pradinį įnašą turi būti pervesti į VĮ Turto bankas sąskaitą AB SEB banke, nurodant konkretaus e. konkurso numerį.
📍 Objekto lokacija
📍 Vilniaus m. sav. Vilniaus m. Ankštoji g. 1A
❓ Dažnai užduodami klausimai
Kokia administracinio pastato nuomos Ankštoji g. 1A pradinė kaina ir registracijos mokestis?
Pradinė nuomos kaina yra 0 EUR. Dalyvio registracijos mokestis sudaro 50 EUR.
Kada baigiasi nuomos konkurso registracija ir kada prasideda aukcionas?
Registracija baigiasi 2026-03-04 23:59:59, o aukcionas prasideda 2026-03-09 09:00:00 ir baigiasi 2026-03-10 13:59:59.
Koks yra nuomojamo objekto unikalus numeris ir plotas?
Unikalus numeris yra 1094-0084-2039. Nuomojamas plotas — 501,25 kv. m.
Kokia pastato Ankštoji g. 1A būklė ir kokias investicijas numato nuomos sąlygos?
Patalpos nuomojamos esamos būklės; nuomininkas turi galimybę (savo lėšomis) patalpas įsirengti pagal savo poreikius.
Kaip ir kada galima apžiūrėti administracinį pastatą Vilniuje?
Apžiūra vyksta nuo 2026-01-30 iki 2026-03-02, nuo 10:00 iki 15:00, tačiau būtina informuoti kontaktinį asmenį ne vėliau kaip prieš 1 darbo dieną.
Kas organizuoja nuomos konkursą ir koks organizatoriaus įmonės kodas?
Konkursą organizuoja Valstybės įmonė Turto bankas, įmonės kodas yra 112021042.