📝 Aprašymas
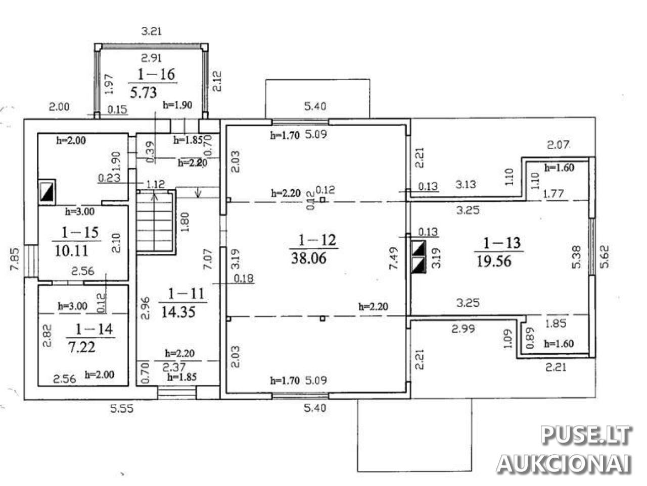
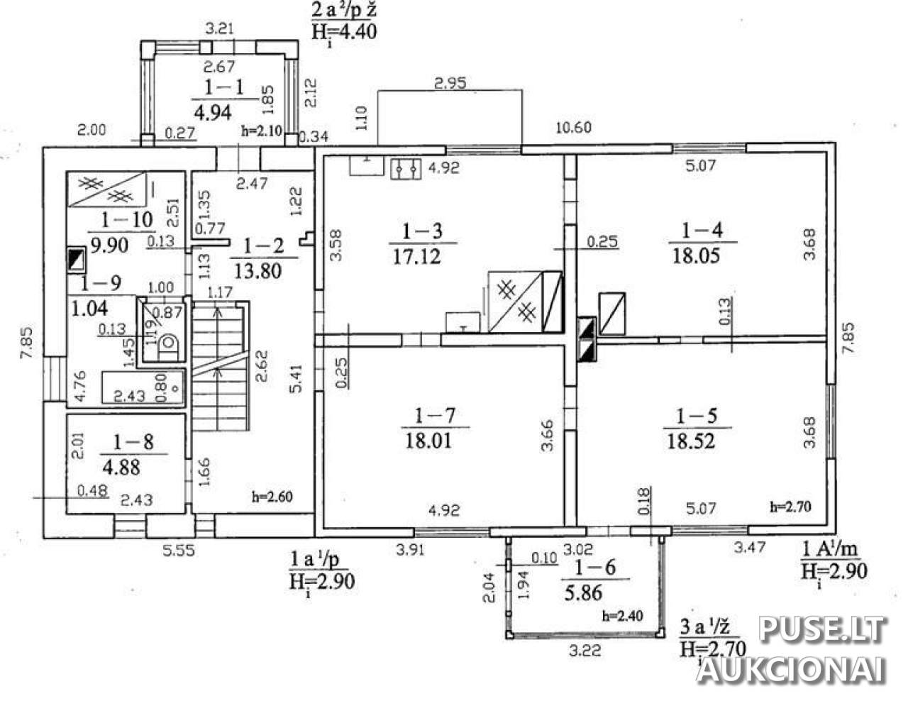
Parduodamas gyvenamasis namas su priklausiniais ir 0.3766 ha žemės sklypu Šakių rajono savivaldybėje, Slavikų kaimo teritorijoje, Suvalkiečių g. 3A, siūlomas Turto banko aukcione. Bendra namo gyvenamoji plotas siekia 224.59 kv. m, parduodama 1/1 dalis viso turto. Aukcionas prasideda 2026-03-23 09:00:00 ir baigiasi 2026-03-24 13:59:59, su pradine kaina nustatyta 21765 EUR. Registracija vyksta nuo 2026-03-16 iki 2026-03-18 23:59:59.
Į turto kompleksą taip pat įeina garažas (unikalus Nr. 8495-5011-2023, užstatytas plotas 63.00 kv. m), tvartas (unikalus Nr. 8495-5011-2034, užstatytas plotas 56.00 kv. m) ir kiemo statiniai, tarp jų šulinys bei lauko tualetas (unikalus Nr. 8495-5011-2045). Unikalus nekilnojamojo turto Nr. yra 8495-5011-2012, o žemės sklypo unikalus Nr. – 4400-6595-0261.
Svarbu atkreipti dėmesį į pardavimo sąlygas: nekilnojamasis turtas parduodamas esamos fizinės ir funkcinės būklės. Valstybės įmonė Turto bankas neįsipareigoja nustatyti aktualios kadastro duomenų būklės ar iškraustyti esamų daiktų. Ypatingas dėmesys turi būti skiriamas inžinieriniam statiniui (lauko tualetui), kuris neatitinka taikomų teisės aktų reikalavimų. Potencialiam dalyviui rekomenduojama atlikti išsamią apžiūrą vietoje ir įvertinti visas susijusias rizikas bei galimus kaštus, kadangi Turto bankas neatsako už jokius nuostolius dėl statinio trūkumų ar neatitikimo teisės aktams.
Norint dalyvauti aukcione, taikomas 2176 EUR dydžio garantinis mokestis ir 40 EUR registracijos mokestis. Mokėjimus galima atlikti tiesiogiai per NEOPAY sistemą arba bankiniu pavedimu į sąskaitą LT85 7044 0901 0022 1537 AB SEB banke, nurodant aukciono numerį paskirtyje. Turto apžiūra organizuojama individualiai suderinus laiką iki registracijos pradžios su atsakinga vadybininke.
Į turto kompleksą taip pat įeina garažas (unikalus Nr. 8495-5011-2023, užstatytas plotas 63.00 kv. m), tvartas (unikalus Nr. 8495-5011-2034, užstatytas plotas 56.00 kv. m) ir kiemo statiniai, tarp jų šulinys bei lauko tualetas (unikalus Nr. 8495-5011-2045). Unikalus nekilnojamojo turto Nr. yra 8495-5011-2012, o žemės sklypo unikalus Nr. – 4400-6595-0261.
Svarbu atkreipti dėmesį į pardavimo sąlygas: nekilnojamasis turtas parduodamas esamos fizinės ir funkcinės būklės. Valstybės įmonė Turto bankas neįsipareigoja nustatyti aktualios kadastro duomenų būklės ar iškraustyti esamų daiktų. Ypatingas dėmesys turi būti skiriamas inžinieriniam statiniui (lauko tualetui), kuris neatitinka taikomų teisės aktų reikalavimų. Potencialiam dalyviui rekomenduojama atlikti išsamią apžiūrą vietoje ir įvertinti visas susijusias rizikas bei galimus kaštus, kadangi Turto bankas neatsako už jokius nuostolius dėl statinio trūkumų ar neatitikimo teisės aktams.
Norint dalyvauti aukcione, taikomas 2176 EUR dydžio garantinis mokestis ir 40 EUR registracijos mokestis. Mokėjimus galima atlikti tiesiogiai per NEOPAY sistemą arba bankiniu pavedimu į sąskaitą LT85 7044 0901 0022 1537 AB SEB banke, nurodant aukciono numerį paskirtyje. Turto apžiūra organizuojama individualiai suderinus laiką iki registracijos pradžios su atsakinga vadybininke.
📍 Objekto lokacija
📍 Šakių r. sav. Slavikų k. Suvalkiečių g. 3A
❓ Dažnai užduodami klausimai
Kokia yra pradinė gyvenamojo namo Suvalkiečių g. 3A, Slavikuose, kaina?
Pradinė kaina nustatyta 21765 EUR.
Kada vyksta šio turto aukcionas Šakių rajone?
Aukcionas prasideda 2026-03-23 09:00:00 ir baigiasi 2026-03-24 13:59:59.
Kokie yra privalomi mokesčiai dalyvaujant aukcione?
Reikalingas 2176 EUR garantinis mokestis ir 40 EUR registracijos mokestis.
Kokie pagrindiniai statiniai parduodami su namu ir sklypu?
Parduodamas 224.59 kv. m gyvenamasis namas, 63.00 kv. m garažas, 56.00 kv. m tvartas, kiemo statiniai (šulinys, lauko tualetas) ir 0.3766 ha žemės sklypas.
Kokia registracijos laikotarpio pabaiga šiam Turto banko aukcionui?
Registracija baigiasi 2026-03-18 23:59:59.
Kokia yra svarbiausia pardavimo sąlyga dėl turto būklės?
Nekilnojamasis turtas parduodamas esamos fizinės ir funkcinės būklės, o lauko tualetas neatitinka teisės aktų reikalavimų.