📝 Aprašymas
Siūlomos nuomoti administracinės paskirties patalpos Plungės rajono savivaldybėje, esančios Plungės mieste, Salantų g. 18. Pradinė nuomos kaina yra 0 EUR, skelbiamas nuomos konkursas. Tai puiki investavimo galimybė į verslo patalpas, kurias bus galima įsirengti pagal asmeninius poreikius.
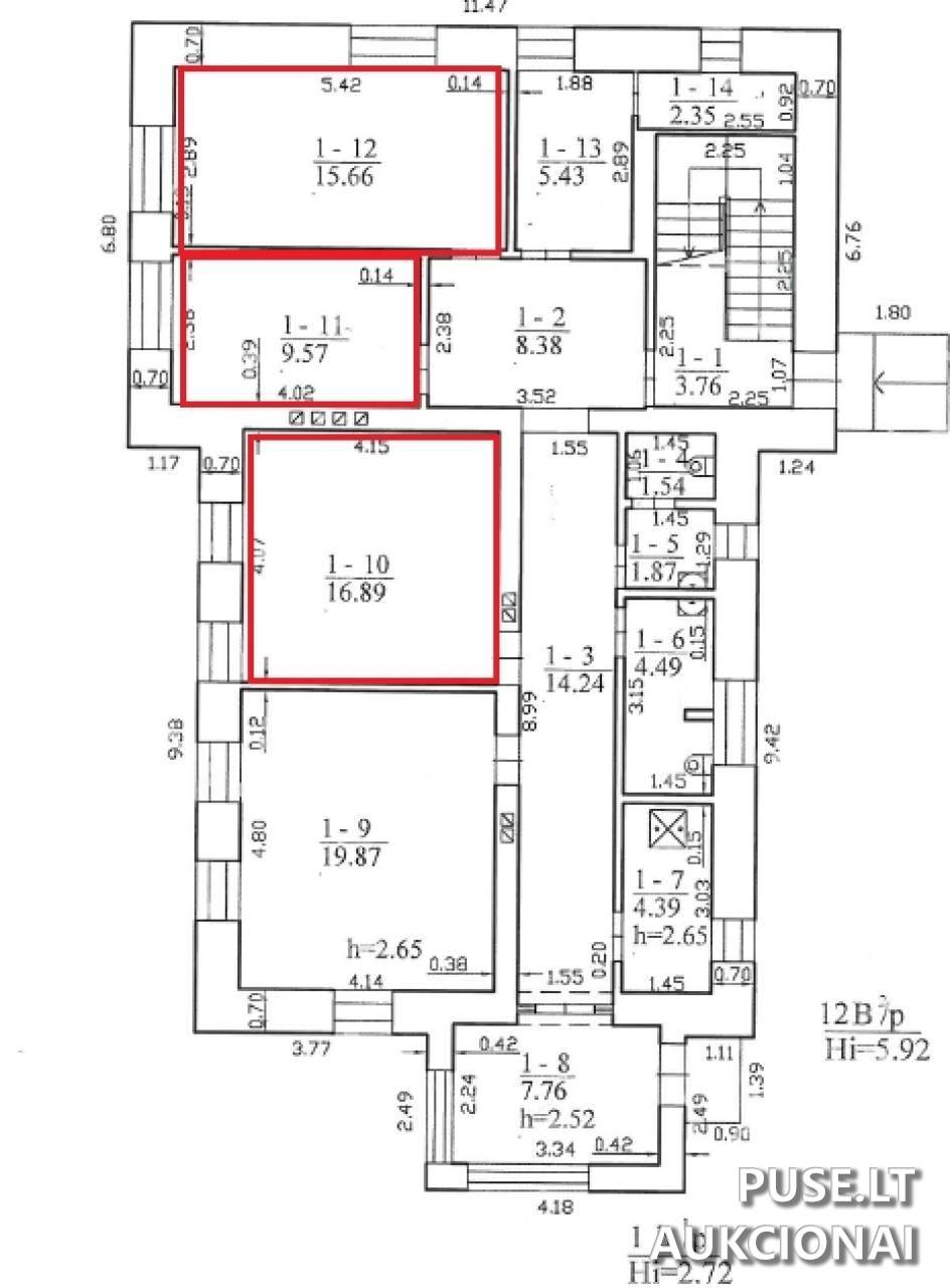
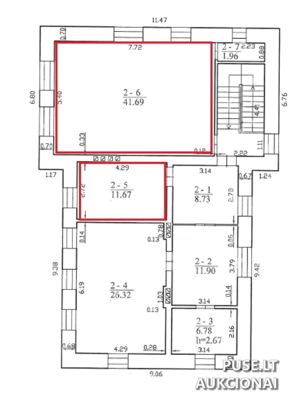
Nuomojamas bendras 123,95 kv. m. plotas. Konkrečiai nuomojamos patalpos 1 ir 2 aukštuose, pažymėtos indeksais 1-10, 1-11, 1-12, 2-5, 2-6, kurių bendras plotas sudaro 95,48 kv. m. Patalpos nuomojamos esamos būklės – nuomininkas turi galimybę patalpas įsirengti savo lėšomis pagal savo poreikius.
Šio turto unikalus numeris – 6895-8003-2183. Dalyvavimo konkurse registracijos mokestis siekia 50 EUR. Nuomos organizatorius yra Valstybės įmonė Turto bankas, juridinio asmens kodas 112021042. Savininkas yra Lietuvos Respublika.
E-konkurso dalyvio registravimo mokesčiui ir pradiniam įnašui turi būti mokama į AB SEB banko sąskaitą (LT51 7044 0600 0044 3925), nurodant VĮ Turto banką (įm. k. 112021042) ir konkretaus e. konkurso numerį. Valstybės ilgalaikio materialiojo turto nuomos elektroninio konkurso bendrosios sąlygos ir nuomos sutarties projektas yra prieinami per nurodytą nuorodą.
Turto apžiūra organizuojama 2026-02-06 – 2026-02-17, nuo 10:00 iki 15:00 valandomis. Būtina iš anksto informuoti kontaktinį asmenį (ne vėliau kaip prieš 1 darbo dieną iki apžiūros) dėl atvykimo.
Nuomojamas bendras 123,95 kv. m. plotas. Konkrečiai nuomojamos patalpos 1 ir 2 aukštuose, pažymėtos indeksais 1-10, 1-11, 1-12, 2-5, 2-6, kurių bendras plotas sudaro 95,48 kv. m. Patalpos nuomojamos esamos būklės – nuomininkas turi galimybę patalpas įsirengti savo lėšomis pagal savo poreikius.
Šio turto unikalus numeris – 6895-8003-2183. Dalyvavimo konkurse registracijos mokestis siekia 50 EUR. Nuomos organizatorius yra Valstybės įmonė Turto bankas, juridinio asmens kodas 112021042. Savininkas yra Lietuvos Respublika.
E-konkurso dalyvio registravimo mokesčiui ir pradiniam įnašui turi būti mokama į AB SEB banko sąskaitą (LT51 7044 0600 0044 3925), nurodant VĮ Turto banką (įm. k. 112021042) ir konkretaus e. konkurso numerį. Valstybės ilgalaikio materialiojo turto nuomos elektroninio konkurso bendrosios sąlygos ir nuomos sutarties projektas yra prieinami per nurodytą nuorodą.
Turto apžiūra organizuojama 2026-02-06 – 2026-02-17, nuo 10:00 iki 15:00 valandomis. Būtina iš anksto informuoti kontaktinį asmenį (ne vėliau kaip prieš 1 darbo dieną iki apžiūros) dėl atvykimo.
📍 Objekto lokacija
📍 Plungės r. sav. Plungės m. Salantų g. 18
❓ Dažnai užduodami klausimai
Kokia administracinių patalpų bendras plotas ir adresas?
Bendras nuomojamas plotas yra 123,95 kv. m., o patalpos yra Plungės m., Salantų g. 18.
Kokia pradinė nuomos kaina ir kada prasidės aukcionas?
Pradinė kaina yra 0 EUR. Aukcionas prasideda 2026-02-26 09:00:00 ir baigiasi 2026-02-27 13:59:59.
Kokios yra patalpų nuomos sąlygos dėl įrengimo?
Patalpos nuomojamos esamos būklės, ir nuomininkas turės galimybę (savo lėšomis) jas įsirengti pagal savo poreikius.
Kada galima apžiūrėti nuomojamas patalpas Plungėje?
Apžiūra vyksta nuo 2026-02-06 iki 2026-02-17, kasdien nuo 10:00 val. iki 15:00 val., iš anksto informavus kontaktinį asmenį.
Koks yra registracijos mokestis ir į kokią sąskaitą jį mokėti?
Registracijos mokestis yra 50 EUR. Mokėjimas atliekamas į VĮ Turto banko sąskaitą (LT51 7044 0600 0044 3925 AB SEB banke).
Koks yra turto unikalus numeris?
Turto unikalus numeris yra 6895-8003-2183.