📝 Aprašymas
Parduodamas 3 kambarių butas Vilniaus miesto savivaldybėje, esantis Taikos gatvėje 94-20, antrosios pakartotinės, vykstančių antstolių varžytynių būdu. Pradinė šio objekto kaina siekia 79200 EUR. Aukcionas vyks nuo 2026-02-09 11:24:32 iki 2026-03-12 11:24:59.
Buto bendras plotas yra 66.86 kv. m, gyvenamasis plotas sudaro 40.64 kv. m. Tai yra 3 kambarių butas, esantis 5-ajame iš 5-ių aukštų pastate. Pastatas statytas 1984 metais, išorės sienos pagamintos iš gelžbetonio plokščių, o baigtumas yra 100 proc. Butui priklauso rūsys. Šildymas užtikrinamas centralizuotai, o vandens tiekimas ir nuotekos prijungtos prie miesto tinklų.
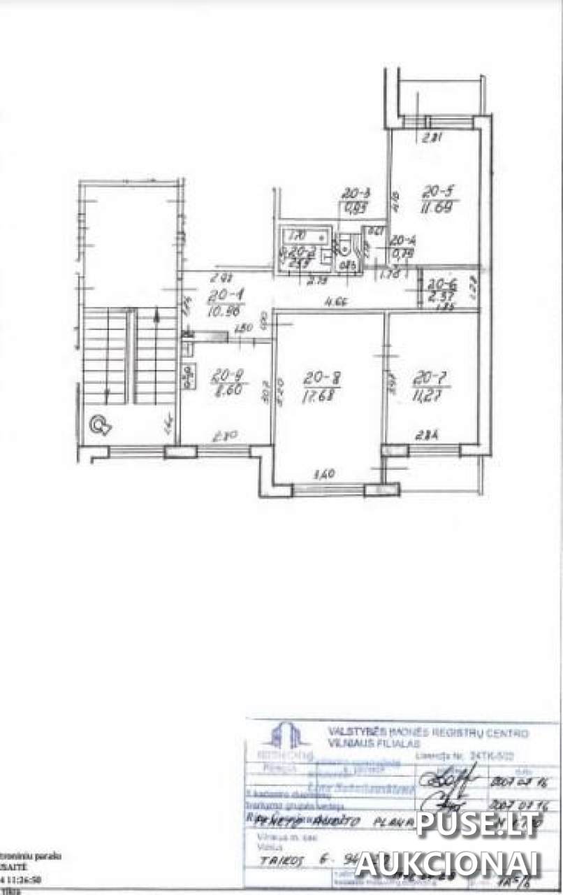
Įvertinto buto vidaus patalpų eksplikacija pagal patalpų išdėstymo planą apima: koridorių (10.96 kv. m), vonią (2.55 kv. m), tualetą (0.95 kv. m), sandėlį (0.79 kv. m), kambariai (11.69 kv. m su balkonu, 11.27 kv. m, 17.68 kv. m su balkonu) bei virtuvę (8.60 kv. m). Butas turi du įstiklintus balkonus su plastikinių rėmų stiklo paketais. Unikalus turto numeris 1098-4012-9015:0020.
Pardavimui taikomas Hipotekos nutartis apribojimas. Objektą parduoda Antstolių kontora, atstovaujama Antstolės I. Karalienės.
Buto bendras plotas yra 66.86 kv. m, gyvenamasis plotas sudaro 40.64 kv. m. Tai yra 3 kambarių butas, esantis 5-ajame iš 5-ių aukštų pastate. Pastatas statytas 1984 metais, išorės sienos pagamintos iš gelžbetonio plokščių, o baigtumas yra 100 proc. Butui priklauso rūsys. Šildymas užtikrinamas centralizuotai, o vandens tiekimas ir nuotekos prijungtos prie miesto tinklų.
Įvertinto buto vidaus patalpų eksplikacija pagal patalpų išdėstymo planą apima: koridorių (10.96 kv. m), vonią (2.55 kv. m), tualetą (0.95 kv. m), sandėlį (0.79 kv. m), kambariai (11.69 kv. m su balkonu, 11.27 kv. m, 17.68 kv. m su balkonu) bei virtuvę (8.60 kv. m). Butas turi du įstiklintus balkonus su plastikinių rėmų stiklo paketais. Unikalus turto numeris 1098-4012-9015:0020.
Pardavimui taikomas Hipotekos nutartis apribojimas. Objektą parduoda Antstolių kontora, atstovaujama Antstolės I. Karalienės.
📍 Objekto lokacija
📍 Vilniaus m. sav. Vilniaus m. Taikos g. 94-20
❓ Dažnai užduodami klausimai
Kokia yra pradinė šio 3 kambarių buto kaina Vilniuje?
Pradinė buto Taikos g. 94-20 kaina yra 79200 EUR.
Kada baigiasi šios antstolių varžytynės?
Aukcionas baigiasi 2026-03-12 11:24:59.
Koks buto bendras plotas ir aukštas?
Buto bendras plotas yra 66.86 kv. m. Butas yra 5-ajame iš 5-ių aukštų pastate.
Kokie pagrindiniai patogumai, susiję su komunalinėmis paslaugomis?
Šildymas yra centrinis iš centralizuotų sistemų, o šaltas vanduo ir nuotekos prijungti prie miesto tinklų.
Koks turto unikalus numeris ir ar yra rūsys?
Buto unikalus numeris yra 1098-4012-9015:0020. Butui priklauso rūsys.
Ar yra kokių nors apribojimų šiam nekilnojamajam turtui?
Pardavimui taikomas Hipotekos nutartis apribojimas.