📝 Aprašymas
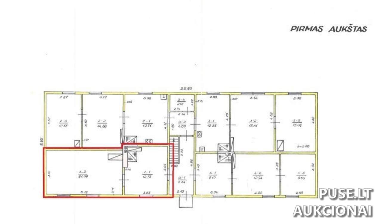
Parduodamas pirminės kategorijos butas Klaipėdos rajono savivaldybėje, Priekulės seniūnijoje, Šventvakarių kaime, Frydricho Šrėderio g. 37-2, su 34,15 kv. m bendruoju plotu. Šis aukcionas siūlo nekilnojamąjį turtą su 1/1 dalies nuosavybe. Pradinė aukciono kaina yra 15400 EUR, o garantinis mokestis sudaro 1540 EUR, registracijos mokestis – 40 EUR.
Aukcionas vyks 2026-04-01 nuo 09:00:00 iki 2026-04-02 13:59:59. Registracija į aukcioną vyksta nuo 2026-03-25 00:00:00 iki 2026-03-27 23:59:59.
Pardavimas vyksta esamos fizinės ir funkcinės būklės. Svarbu atkreipti dėmesį, kad bute yra įrengtos papildomos pertvaros, o patalpoje 1-1 yra įrengtas papildomas įėjimas į gretimo buto patalpą (2-1). Šie pakitimai nėra užfiksuoti Nekilnojamojo turto kadastro duomenyse. Organizatorius VĮ Turto bankas neįsipareigoja iškraustyti jame esančių daiktų.
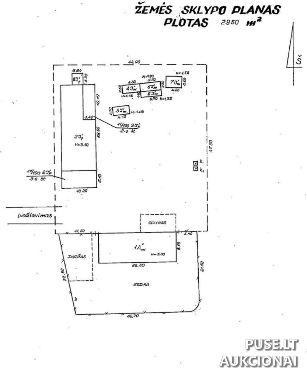
Butas yra bendrosios dalinės nuosavybės pagrindu (36/100 dalis užstatyto ploto 302,00 kv. m tvarto 2I1p, unikalus numeris 5591-5001-4029) valstybinėje žemėje, kuriai žemės sklypas nėra suformuotas, o teisės į žemės sklypą nėra perleidžiamos. Pats parduodamas butas yra privačiam asmeniui nuosavybės teise priklausančiame žemės sklype (kadastro Nr. 5552/0008:166), tačiau savininkai nėra sudarę susitarimų dėl žemės sklypo naudojimosi tvarkos.
Faktiškai, parduodamas butas yra naudojamas trečiojo asmens, ir VĮ Turto bankas neįsipareigoja jo iškeldinti iki nuosavybės teisių perleidimo pirkėjui. Komunikacijos – šaltas vanduo, nuotekos ir elektra – yra pajungtos iš gretimo buto, susitarimai dėl paslaugų neteikiami.
Visas parduodamas turtas turi unikalų numerį 4400-0669-2966:6323. Dėl turto apžiūros būtina kreiptis iš anksto individualiai suderinus laiką.
Aukcionas vyks 2026-04-01 nuo 09:00:00 iki 2026-04-02 13:59:59. Registracija į aukcioną vyksta nuo 2026-03-25 00:00:00 iki 2026-03-27 23:59:59.
Pardavimas vyksta esamos fizinės ir funkcinės būklės. Svarbu atkreipti dėmesį, kad bute yra įrengtos papildomos pertvaros, o patalpoje 1-1 yra įrengtas papildomas įėjimas į gretimo buto patalpą (2-1). Šie pakitimai nėra užfiksuoti Nekilnojamojo turto kadastro duomenyse. Organizatorius VĮ Turto bankas neįsipareigoja iškraustyti jame esančių daiktų.
Butas yra bendrosios dalinės nuosavybės pagrindu (36/100 dalis užstatyto ploto 302,00 kv. m tvarto 2I1p, unikalus numeris 5591-5001-4029) valstybinėje žemėje, kuriai žemės sklypas nėra suformuotas, o teisės į žemės sklypą nėra perleidžiamos. Pats parduodamas butas yra privačiam asmeniui nuosavybės teise priklausančiame žemės sklype (kadastro Nr. 5552/0008:166), tačiau savininkai nėra sudarę susitarimų dėl žemės sklypo naudojimosi tvarkos.
Faktiškai, parduodamas butas yra naudojamas trečiojo asmens, ir VĮ Turto bankas neįsipareigoja jo iškeldinti iki nuosavybės teisių perleidimo pirkėjui. Komunikacijos – šaltas vanduo, nuotekos ir elektra – yra pajungtos iš gretimo buto, susitarimai dėl paslaugų neteikiami.
Visas parduodamas turtas turi unikalų numerį 4400-0669-2966:6323. Dėl turto apžiūros būtina kreiptis iš anksto individualiai suderinus laiką.
📍 Objekto lokacija
📍 Klaipėdos r. sav. Šventvakarių k. Frydricho Šrėderio g. 37-2
❓ Dažnai užduodami klausimai
Kokia yra pradinė šio buto aukcione kaina?
Pradinė aukciono kaina yra 15400 EUR.
Kada vyks turto aukcionas?
Aukcionas prasideda 2026-04-01 09:00:00 ir baigiasi 2026-04-02 13:59:59.
Kokia buto bendra kvadratūra ir adresas?
Buto bendras plotas yra 34,15 kv. m, o adresas - Klaipėdos r. sav., Šventvakarių k., Frydricho Šrėderio g. 37-2.
Kokie papildomi mokesčiai taikomi aukciono dalyviams?
Reikalingas 1540 EUR garantinis mokestis ir 40 EUR registracijos mokestis.
Ar parduodamas turtas yra apgyvendintas ir kokia situacija su žeme?
Butas faktiškai naudojamas trečiojo asmens, kuris neįsipareigojamas iškeldinti. Dalis turto (tvartas) yra valstybinėje, nesuformuotoje žemėje, o butas yra privačiame sklype, dėl kurio naudojimo sąlygos nesutvarkytos.
Kada galima registruotis dalyvauti aukcione?
Registracija vyksta nuo 2026-03-25 00:00:00 iki 2026-03-27 23:59:59.