📝 Aprašymas
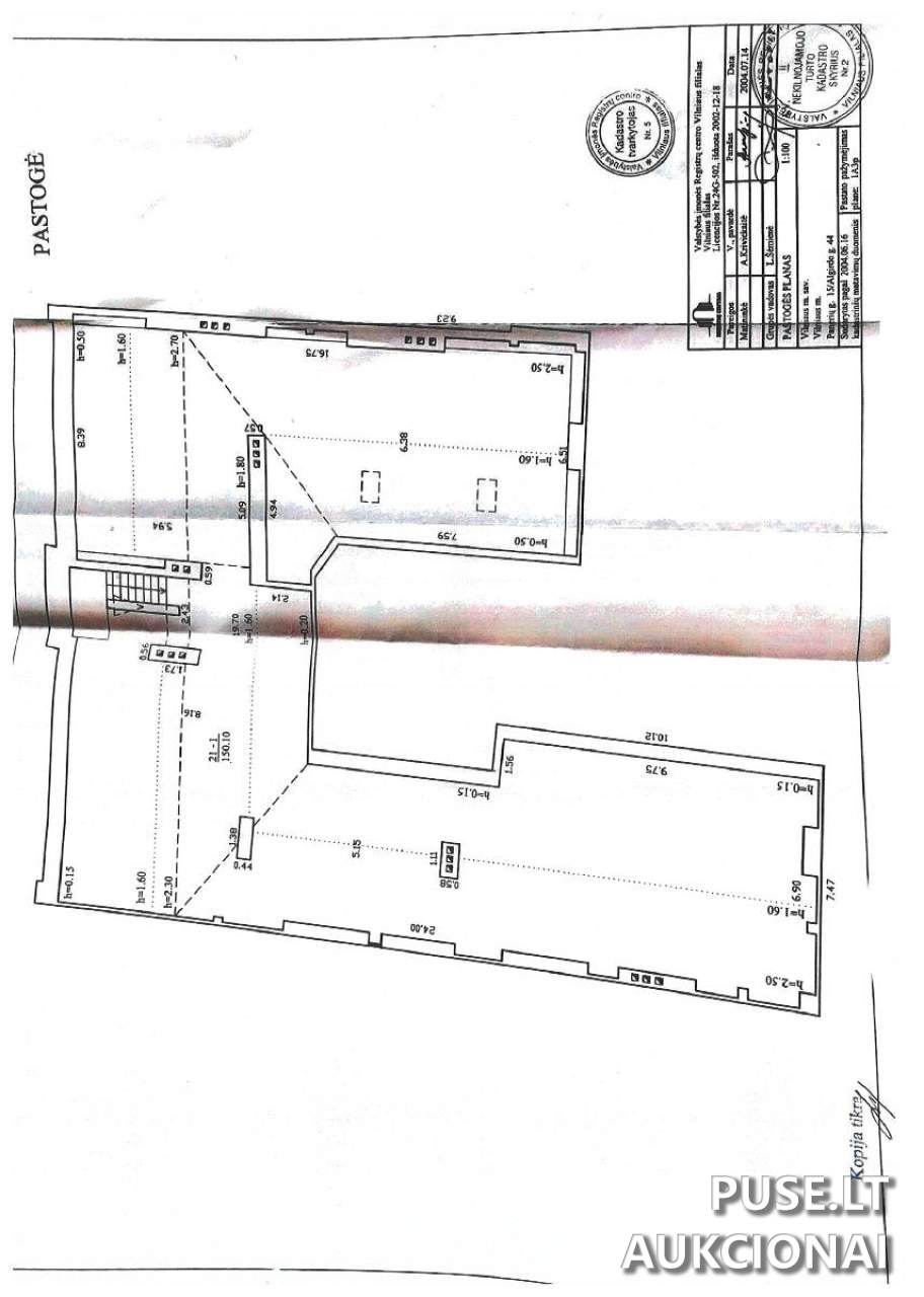
Parduodama 4118/15010 dalis negyvenamosios paskirties patalpų - neįrengta pastogė Panerių g. 15-16A, Vilniuje. Ši dalis sudaro 41,18 kv. m iš bendro 150,10 kv. m ploto mūriniame pastate. Patalpų pardavimo pradinė kaina savivaldybės aukcione siekia 9216 EUR. Unikalus nekilnojamojo daikto numeris yra 4400-0333-3271:2604. Pateikiama dalis parduodama esamos būklės bei yra neįrengta.
Svarbu atkreipti dėmesį į turto teisinę padėtį: nors pastatas nėra įrašytas į Kultūros vertybių registrą, jis yra Vilniaus miesto istorinės dalies, Naujamiesčio (unikalus kodas 33653), Vilniaus senamiesčio ir priemiesčių archeologinės vietovės (unikalus kodas 25504) teritorijoje. Taip pat ši teritorija patenka į valstybės saugomos nekilnojamosios kultūros vertybės - Vilniaus senamiesčio vizualinės apsaugos. Dėl šios priežasties, patalpų naudojimas, tvarkymas, statybos (remonto, rekonstrukcijos) darbai reglamentuojami Lietuvos Respublikos nekilnojamojo kultūros paveldo apsaugos įstatymo ir kitų susijusių teisės aktų.
Aukcionas prasideda 2026-03-30 09:00:00 ir baigiasi 2026-03-31 13:59:59. Registracija į aukcioną vyksta nuo 2026-03-23 00:00:00 iki 2026-03-25 23:59:59. Būtina sumokėti garantinį mokestį - 921 EUR bei registracijos mokestį - 70 EUR. Aukciono laimėtojas privalo sudaryti pirkimo-pardavimo sutartį per 30 dienų nuo pardavimo dienos, o visą kainą sumokėti per 10 dienų po sutarties pasirašymo.
Galimybė apžiūrėti turtą suteikiama 2026-03-12 9.30 valandos ir 2026-03-19 9.30 valandos.
Svarbu atkreipti dėmesį į turto teisinę padėtį: nors pastatas nėra įrašytas į Kultūros vertybių registrą, jis yra Vilniaus miesto istorinės dalies, Naujamiesčio (unikalus kodas 33653), Vilniaus senamiesčio ir priemiesčių archeologinės vietovės (unikalus kodas 25504) teritorijoje. Taip pat ši teritorija patenka į valstybės saugomos nekilnojamosios kultūros vertybės - Vilniaus senamiesčio vizualinės apsaugos. Dėl šios priežasties, patalpų naudojimas, tvarkymas, statybos (remonto, rekonstrukcijos) darbai reglamentuojami Lietuvos Respublikos nekilnojamojo kultūros paveldo apsaugos įstatymo ir kitų susijusių teisės aktų.
Aukcionas prasideda 2026-03-30 09:00:00 ir baigiasi 2026-03-31 13:59:59. Registracija į aukcioną vyksta nuo 2026-03-23 00:00:00 iki 2026-03-25 23:59:59. Būtina sumokėti garantinį mokestį - 921 EUR bei registracijos mokestį - 70 EUR. Aukciono laimėtojas privalo sudaryti pirkimo-pardavimo sutartį per 30 dienų nuo pardavimo dienos, o visą kainą sumokėti per 10 dienų po sutarties pasirašymo.
Galimybė apžiūrėti turtą suteikiama 2026-03-12 9.30 valandos ir 2026-03-19 9.30 valandos.
📍 Objekto lokacija
📍 Vilniaus m. sav. Vilniaus m. Panerių g. 15-16A
❓ Dažnai užduodami klausimai
Kokia pradinė kaina už 41.18 kv.m patalpų dalį Panerių g. 15-16A?
Pradinė kaina už parduodamą 4118/15010 dalį (41,18 kv. m) yra 9216 EUR.
Kada vyks nuotolinis aukcionas, kuriame parduodamos šios neįrengtos pastogės?
Aukcionas prasidės 2026-03-30 09:00:00 ir baigsis 2026-03-31 13:59:59.
Kokios yra registracijos į viešą aukcioną datos Panerių g. 15-16A patalpoms?
Registruotis į elektroninį aukcioną reikia nuo 2026-03-23 00:00:00 iki 2026-03-25 23:59:59.
Kokias papildomas sumas reikia sumokėti dalyvaujant aukcione?
Reikia sumokėti 921 EUR garantinį mokestį ir 70 EUR registracijos mokestį.
Kokios yra pagrindinės su turto naudojimu susijusios sąlygos ir apribojimai?
Patalpos parduodamos esamos būklės. Dėl objekto buvimo kultūros paveldo teritorijoje, visi remonto ar rekonstrukcijos darbai yra griežtai reglamentuojami Lietuvos Respublikos nekilnojamojo kultūros paveldo apsaugos įstatymu bei kitais aktais.
Ar galima apžiūrėti parduodamas neįrengtas pastogės Panerių g. 15-16A?
Taip, apžiūros numatytos 2026-03-12 9.30 val. ir 2026-03-19 9.30 val., apžiūros laiką būtina iš anksto suderinti.