📝 Aprašymas
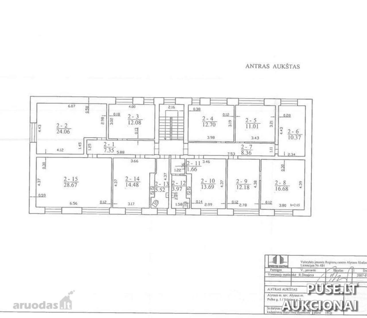
Alytaus miesto savivaldybės administracija organizuoja viešą nuomos konkursą 27,69 kv. m. bendro ploto negyvenamųjų patalpų nuomai Alytaus mieste, Pulko g. 1. Šios patalpos yra pastate, kurio unikalus Nr. 1195-8002-1018, pažymėtos plane 1B2p. Išnuomojami plotai yra: patalpa pažymėta plane 2-2 (24,06 kv. m), dalis patalpos 2-1 (2,23 kv. m. iš 7,35 kv. m), dalis patalpos 2-12 (0,99 kv. m. iš 3,97 kv. m) ir dalis patalpos 2-11 (0,41 kv. m. iš 1,66 kv. m).
Nuomos pagrindinė paskirtis yra administracinė veikla. Nuomos terminas sudaro 5 metus su galimybe pratęsti dar 5 metams. Pradinis nuompinigių dydis nustatytas 3 Eur už 1 kv. m per mėnesį. Konkurencinga pradinė kaina (nuompinigių bazė – 0 EUR) skatina dalyvauti.
Konkurso dalyviai privalo sumokėti dalyvio registracijos mokestį, kuris yra 30 EUR (negrąžinamas). Taip pat reikia sumokėti pradinį įnašą, lygų trijų mėnesių pradiniam nuomos mokesčiui, kuris laimėtojui negrąžinamas, o kitiems dalyviams grąžinamas. Pradinis įnašo dydis yra 249 Eur.
Nuomos sutartis privalo būti pasirašyta ne anksčiau kaip per 5 darbo dienas ir ne vėliau kaip per 10 darbo dienų nuo komisijos protokolo pasirašymo dienos. Jeigu laimėtojas neatvyksta pasirašyti sutarties per nustatytą terminą, konkurso rezultatai anuliuojami, o pradinis įnašas negrąžinamas. Galima susipažinti su sutarties projektu pateikus laišką nurodytu el. paštu. Alytaus miesto savivaldybės administracija nėra PVM mokėtoja.
Nuomos pagrindinė paskirtis yra administracinė veikla. Nuomos terminas sudaro 5 metus su galimybe pratęsti dar 5 metams. Pradinis nuompinigių dydis nustatytas 3 Eur už 1 kv. m per mėnesį. Konkurencinga pradinė kaina (nuompinigių bazė – 0 EUR) skatina dalyvauti.
Konkurso dalyviai privalo sumokėti dalyvio registracijos mokestį, kuris yra 30 EUR (negrąžinamas). Taip pat reikia sumokėti pradinį įnašą, lygų trijų mėnesių pradiniam nuomos mokesčiui, kuris laimėtojui negrąžinamas, o kitiems dalyviams grąžinamas. Pradinis įnašo dydis yra 249 Eur.
Nuomos sutartis privalo būti pasirašyta ne anksčiau kaip per 5 darbo dienas ir ne vėliau kaip per 10 darbo dienų nuo komisijos protokolo pasirašymo dienos. Jeigu laimėtojas neatvyksta pasirašyti sutarties per nustatytą terminą, konkurso rezultatai anuliuojami, o pradinis įnašas negrąžinamas. Galima susipažinti su sutarties projektu pateikus laišką nurodytu el. paštu. Alytaus miesto savivaldybės administracija nėra PVM mokėtoja.
📍 Objekto lokacija
📍 Alytaus m. sav. Alytaus m. Pulko g. 1
❓ Dažnai užduodami klausimai
Kada vyksta negyvenamųjų patalpų nuomos konkursas Alytuje?
Aukcionas prasideda 2026-03-06 09:00:00 ir baigiasi 2026-03-09 13:59:59.
Kokia yra administracinių patalpų pradinė nuompinigių kaina?
Pradinis nuompinigių dydis nustatytas 3 Eur už 1 kv. m per mėnesį, o pradinė kaina (kaip konkurso bazė) nurodyta 0 EUR.
Kur yra nuomojamos patalpos ir koks jų bendras plotas?
Patalpos yra Alytuje, Pulko g. 1, pastato unikalus Nr. 1195-8002-1018. Bendras nuomojamas plotas yra 27,69 kv. m.
Kokie yra registracijos ir pradinio įnašo mokesčiai dalyvaujant konkurse?
Registracijos mokestis yra 30 EUR (negrąžinamas). Pradinis įnašas yra 249 EUR (grąžinamas nelaimėjusiems).
Koks yra siūlomas nuomos terminas administravimo veiklai?
Nuomos terminas yra 5 metai su galimybe jį pratęsti dar 5 metams, numatyta administracinei veiklai.
Kada reikia pasirašyti nuomos sutartį laimėjus konkursą?
Nuomos sutartis turi būti pasirašyta ne anksčiau kaip per 5 darbo dienas ir ne vėliau kaip per 10 darbo dienų nuo komisijos protokolo pasirašymo dienos.