📝 Aprašymas
Alytaus miesto savivaldybės administracija viešo konkurso būdu nuomoja negyvenamąsias administracinės veiklai skirtas patalpas Alytaus mieste, Pulko g. 1, pastato unikalaus Nr. 1195-8002-1018.
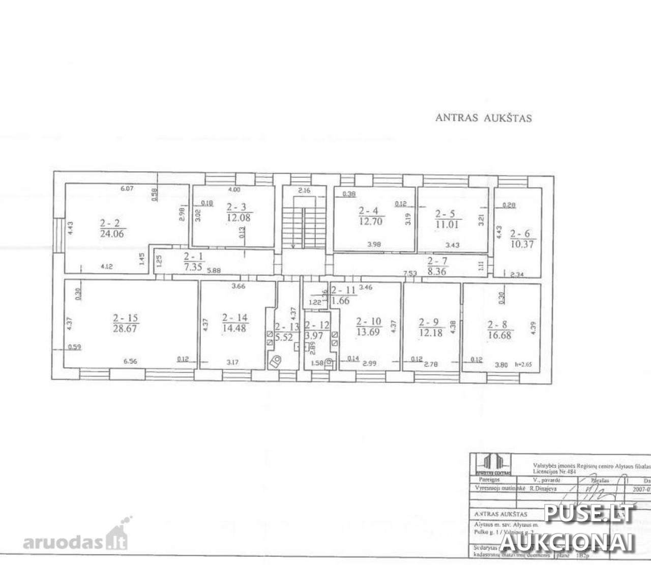
Nuomojamas bendras 14,6 kv. m. plotas, sudarytas iš kelių dalių: patalpos plane 2-3 (12,08 kv. m), dalis patalpos 2-1 (1,12 kv. m. iš 7,35 kv. m), dalis patalpos 2-12 (0,99 kv. m. iš 3,97 kv. m) ir dalis patalpos 2-11 (0,41 kv. m. iš 1,66 kv. m).
Pradinis nuompinigių dydis nustatytas 3 Eur už 1 kv. m per mėnesį. Kaina (pradinė) aukcione nurodyta 0 EUR, o tai reiškia, kad pagrindinė vertė yra nustatoma konkurso metu, remiantis mėnesiniu įkainiu.
Nuomos terminas yra 5 metai su galimybe šį terminą pratęsti dar 5 metams. Patalpų naudojimo paskirtis – administracinė veikla.
Konkurso dalyviai turi sumokėti registravimo mokestį – 30 Eur (negrąžinamas) ir pradinį įnašą, lygų trijų mėnesių pradiniam nuomos mokesčiui (132 Eur, kuris grąžinamas nelaimėjusiems).
Nuomos sutartis turi būti pasirašyta ne anksčiau kaip per 5 darbo dienas ir ne vėliau kaip per 10 darbo dienų nuo Turto nuomos komisijos protokolo pasirašymo dienos. Nepasirašius sutarties per nustatytą terminą, konkurso rezultatai anuliuojami, o pradinio įnašo laimėtojui negrąžinama.
Konkurso organizatorius yra Alytaus miesto savivaldybės administracija (įmonės kodas 188706935). Nuomos sutarties projektas teikiamas susipažinti pateikus prašymą nurodytu el. paštu.
Nuomojamas bendras 14,6 kv. m. plotas, sudarytas iš kelių dalių: patalpos plane 2-3 (12,08 kv. m), dalis patalpos 2-1 (1,12 kv. m. iš 7,35 kv. m), dalis patalpos 2-12 (0,99 kv. m. iš 3,97 kv. m) ir dalis patalpos 2-11 (0,41 kv. m. iš 1,66 kv. m).
Pradinis nuompinigių dydis nustatytas 3 Eur už 1 kv. m per mėnesį. Kaina (pradinė) aukcione nurodyta 0 EUR, o tai reiškia, kad pagrindinė vertė yra nustatoma konkurso metu, remiantis mėnesiniu įkainiu.
Nuomos terminas yra 5 metai su galimybe šį terminą pratęsti dar 5 metams. Patalpų naudojimo paskirtis – administracinė veikla.
Konkurso dalyviai turi sumokėti registravimo mokestį – 30 Eur (negrąžinamas) ir pradinį įnašą, lygų trijų mėnesių pradiniam nuomos mokesčiui (132 Eur, kuris grąžinamas nelaimėjusiems).
Nuomos sutartis turi būti pasirašyta ne anksčiau kaip per 5 darbo dienas ir ne vėliau kaip per 10 darbo dienų nuo Turto nuomos komisijos protokolo pasirašymo dienos. Nepasirašius sutarties per nustatytą terminą, konkurso rezultatai anuliuojami, o pradinio įnašo laimėtojui negrąžinama.
Konkurso organizatorius yra Alytaus miesto savivaldybės administracija (įmonės kodas 188706935). Nuomos sutarties projektas teikiamas susipažinti pateikus prašymą nurodytu el. paštu.
📍 Objekto lokacija
📍 Alytaus m. sav. Alytaus m. Pulko g. 1
❓ Dažnai užduodami klausimai
Koks yra nuomojamų patalpų Alytuje, Pulko g. 1 bendras plotas?
Nuomojamas 14,6 kv. m. bendras plotas, susidedantis iš kelių negyvenamųjų patalpų dalių pastate su unikaliu Nr. 1195-8002-1018.
Kada vyksta ir baigiasi nuomos konkurso registracija ir pats konkursas?
Registracija vyksta nuo 2026-03-02 00:00:00 iki 2026-03-04 23:59:59. Konkursas prasideda 2026-03-06 09:00:00 ir baigiasi 2026-03-09 13:59:59.
Kokia yra pradinė nustatyta nuomos kaina (mėnesinis įkainis)?
Pradinis nuompinigių dydis yra 3 Eur už 1 kv. m per mėnesį. Konkurso pradinė kaina nurodyta 0 EUR, bet nustatytas 132 Eur pradinio įnašo dydis (atitinkantis trijų mėnesių įmoką).
Koks yra numatomas nuomos terminas Alytaus miesto savivaldybės patalpoms?
Nuomos terminas yra 5 metai su galimybe jį papildomai pratęsti dar 5 metams.
Kokie yra privalomi mokėjimai dalyvaujant konkurse (išskyrus nuomos įmoką)?
Reikalingas 30 Eur registravimo mokestis (negrąžinamas) ir pradinio įnašo sumokėjimas (132 Eur, grąžinamas nelaimėjusiems).
Kokia yra leidžiama šių administracinių patalpų naudojimo paskirtis?
Paskirtis – naudojimas administracinei veiklai.