📝 Aprašymas
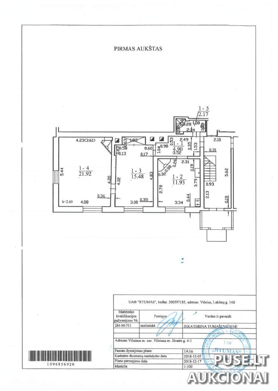
Parduodamas 56,40 kv. m. ploto 1/1 dalis buto (patalpos) Vilniaus mieste, Jūratės g. 4-1, esančio vieno aukšto medinio pastato pirmame aukšte. Pradinė buto kaina aukcione siekia 112050 EUR. Aukcionas vyks 2026-03-30 09:00:00 iki 2026-03-31 13:59:59, o registracija vyksta nuo 2026-03-23 iki 2026-03-25 23:59:59. Prieš dalyvaujant aukcione, privaloma sumokėti 11205 EUR dydžio garantinį mokestį ir 145 EUR registracijos mokestį. Pirkimo-pardavimo sutartis turi būti pasirašoma per 30 dienų nuo aukciono, o visa kaina sumokama per 10 dienų po sutarties pasirašymo.
Pagrindinė pardavimo sąlyga – nekilnojamasis turtas parduodamas esamos fizinės ir funkcinės būklės. Svarbu atkreipti dėmesį, kad pastatas, kuriame yra ši patalpa, yra pažymėtas kaip avarinis (2014-09-17 Statinio pripažinimo avariniu aktas Nr. A32-2448/14). Aukciono dalyviams rekomenduojama išnagrinėti visus su šia būkle susijusius teisinius ir ekonominius aspektus, apžiūrėti objektą vietoje ir susipažinti su pateikta ekspertizės dokumentacija (aktais Nr. SE 14/118, Nr. 25/05/19-1, ataskaita Nr. 2025/11/13, aktu Nr. T25-19).
Objektas yra valstybės saugomos nekilnojamosios kultūros vertybės - Vilniaus senamiesčio, paskelbto kultūros paminklu (unikalus kodas - 16073) vizualinės apsaugos pozonio teritorijoje. Visi su kultūros paveldu susiję tvarkymo ir statybos darbai reglamentuojami atitinkamais teisės aktais.
Savivaldybė neprisiima atsakomybės už nuostolius, kylančius dėl statinio neatitikimo statybos, aplinkos apsaugos ar kitų reikalavimų. Dėl elektros tiekimo: skolų nėra, tačiau savivaldybė negarantuoja nenutrūkstamo tiekimo ar vidaus tinklo tvarkingumo. Pirkėjas pats sprendžia visus su elektros tiekimo atnaujinimu susijusius klausimus savo lėšomis.
Turto apžiūros vyks 2026-03-04 14.00 val. ir 2026-03-18 14.00 val.
Pagrindinė pardavimo sąlyga – nekilnojamasis turtas parduodamas esamos fizinės ir funkcinės būklės. Svarbu atkreipti dėmesį, kad pastatas, kuriame yra ši patalpa, yra pažymėtas kaip avarinis (2014-09-17 Statinio pripažinimo avariniu aktas Nr. A32-2448/14). Aukciono dalyviams rekomenduojama išnagrinėti visus su šia būkle susijusius teisinius ir ekonominius aspektus, apžiūrėti objektą vietoje ir susipažinti su pateikta ekspertizės dokumentacija (aktais Nr. SE 14/118, Nr. 25/05/19-1, ataskaita Nr. 2025/11/13, aktu Nr. T25-19).
Objektas yra valstybės saugomos nekilnojamosios kultūros vertybės - Vilniaus senamiesčio, paskelbto kultūros paminklu (unikalus kodas - 16073) vizualinės apsaugos pozonio teritorijoje. Visi su kultūros paveldu susiję tvarkymo ir statybos darbai reglamentuojami atitinkamais teisės aktais.
Savivaldybė neprisiima atsakomybės už nuostolius, kylančius dėl statinio neatitikimo statybos, aplinkos apsaugos ar kitų reikalavimų. Dėl elektros tiekimo: skolų nėra, tačiau savivaldybė negarantuoja nenutrūkstamo tiekimo ar vidaus tinklo tvarkingumo. Pirkėjas pats sprendžia visus su elektros tiekimo atnaujinimu susijusius klausimus savo lėšomis.
Turto apžiūros vyks 2026-03-04 14.00 val. ir 2026-03-18 14.00 val.
📍 Objekto lokacija
📍 Vilniaus m. sav. Vilniaus m. Jūratės g. 4-1
❓ Dažnai užduodami klausimai
Kokia yra pagrindinė 56.4 kv. m. buto Jūratės g. 4-1 Vilniuje kaina?
Pradinė buto Jūratės g. 4-1 Vilniuje kaina aukcione yra 112050 EUR.
Kada vyks nekilnojamojo turto aukcionas Jūratės g. 4-1 butui parduoti?
Aukcionas prasideda 2026-03-30 09:00:00 ir baigiasi 2026-03-31 13:59:59.
Kiek ir kokius mokesčius reikia sumokėti norint dalyvauti aukcione?
Reikia sumokėti 11205 EUR garantinį mokestį ir 145 EUR registracijos mokestį. Bendra suma 11350 EUR.
Kokie yra esminiai apribojimai ar ypatumai, susiję su šio objekto būkle?
Pastatas pripažintas avariniu (2014 m. aktas). Turtas yra Vilniaus senamiesčio vizualinės apsaugos zonoje, tad tvarkymo darbai reglamentuojami Kultūros paveldo apsaugos įstatymu. Elektros tinklo tvarkingumą pirkėjas privalo įvertinti ir tvarkyti pats.
Kada galima apžiūrėti 56.4 kv. m. butą Jūratės g. 4-1?
Apžiūros vyks 2026-03-04 14.00 val. ir 2026-03-18 14.00 val., suderinus laiką su atsakingu darbuotoju.
Kokia yra turto registracijos (pateikimo paraiškos) pabaiga?
Registracija į elektroninį aukcioną baigiasi 2026-03-25 23:59:59.