📝 Aprašymas
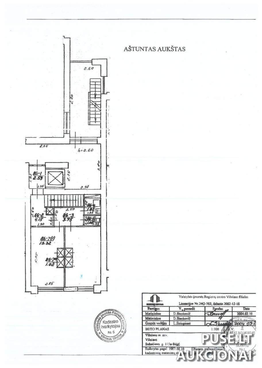
Parduodamas nedidelis butas Vilniaus miesto savivaldybėje, Subačiaus gatvėje 115A-86A. Tai pirminio tipo patalpos, esančios devynių aukštų mūrinio pastato aštuntame aukšte. Bendras parduodamos dalies plotas yra 14,34 kv. m, papildomai priskiriamos 10,07 kv. m bendrojo naudojimo patalpos. Unikalus nekilnojamojo daikto registro numeris, leidžiantis identifikuoti šį turtą aukcione, yra 4400-0245-8324:5774.
Objektas yra Vilniaus senamiesčio vizualinės apsaugos zonoje, kuri yra valstybės saugoma nekilnojamosios kultūros vertybė (kultūros paminklas). Patalpų naudojimas, tvarkymas bei bet kokie statybos, remonto ar rekonstrukcijos darbai yra griežtai reglamentuojami Lietuvos Respublikos nekilnojamojo kultūros paveldo apsaugos įstatymo ir kitų susijusių teisės aktų. Pirkėjas privalo užtikrinti šių reikalavimų laikymąsi.
Butas parduodamas esamos fizinės ir funkcinės būklės, remiantis esamais kadastro duomenimis. Pardavėjas, Vilniaus miesto savivaldybė, neprisiima atsakomybės už elektros tiekimo tinklo techninę būklę ar tiekimo tęstinumą. Visi su vidaus elektros tinklų remontu, elektros tiekimo atnaujinimu ir užtikrinimu susiję kaštai ir įsipareigojimai tenka išimtinai pirkėjui.
Šiuo metu nėra žinomų skolų už elektros energijos tiekimą šiam konkrečiam objektui. Pardavimo sąlygos numato, kad sutartis turi būti sudaryta per 30 dienų nuo aukciono vykdymo dienos, o visa kaina sumokėta per 10 dienų po sutarties pasirašymo. Pardavėjas - Vilniaus miesto savivaldybė kodas 111109233.
Objektas yra Vilniaus senamiesčio vizualinės apsaugos zonoje, kuri yra valstybės saugoma nekilnojamosios kultūros vertybė (kultūros paminklas). Patalpų naudojimas, tvarkymas bei bet kokie statybos, remonto ar rekonstrukcijos darbai yra griežtai reglamentuojami Lietuvos Respublikos nekilnojamojo kultūros paveldo apsaugos įstatymo ir kitų susijusių teisės aktų. Pirkėjas privalo užtikrinti šių reikalavimų laikymąsi.
Butas parduodamas esamos fizinės ir funkcinės būklės, remiantis esamais kadastro duomenimis. Pardavėjas, Vilniaus miesto savivaldybė, neprisiima atsakomybės už elektros tiekimo tinklo techninę būklę ar tiekimo tęstinumą. Visi su vidaus elektros tinklų remontu, elektros tiekimo atnaujinimu ir užtikrinimu susiję kaštai ir įsipareigojimai tenka išimtinai pirkėjui.
Šiuo metu nėra žinomų skolų už elektros energijos tiekimą šiam konkrečiam objektui. Pardavimo sąlygos numato, kad sutartis turi būti sudaryta per 30 dienų nuo aukciono vykdymo dienos, o visa kaina sumokėta per 10 dienų po sutarties pasirašymo. Pardavėjas - Vilniaus miesto savivaldybė kodas 111109233.
📍 Objekto lokacija
📍 Vilniaus m. sav. Vilniaus m. Subačiaus g. 115A-86A
❓ Dažnai užduodami klausimai
Kokia yra pradinė šio buto Subačiaus g. 115A-86A aukcione kaina?
Buto pradinė kaina aukcione nustatyta 36600 EUR.
Kada baigiasi šio nekilnojamojo turto aukcionas?
Aukcionas baigiasi 2026-03-31 13:59:59.
Kokie mokėjimai yra privalomi dalyvaujant aukcione?
Aukcione dalyvauti privaloma sumokėti 3660 EUR garantinį mokestį ir 145 EUR registracijos mokestį.
Kokios yra atsakomybės dėl elektros tiekimo šiam objektui?
Pirkėjas įsipareigoja spręsti visus su vidaus elektros tinklų remontu ir elektros tiekimo atnaujinimu susijusius klausimus savo lėšomis ir rizika, nes tiekėjas negarantuoja nenutrūkstamo tiekimo.
Kokie apribojimai taikomi dėl objekto buvimo vietoje?
Objektas yra Vilniaus senamiesčio vizualinės apsaugos zonoje, kuri yra kultūros vertybė, todėl tvarkymo ir statybos darbai reglamentuojami Kultūros paveldo apsaugos įstatymo.
Kada galima apžiūrėti butą Subačiaus g. 115A-86A?
Apžiūros numatytos 2026-03-02 13:00 val. ir 2026-03-09 13:00 val., suderinus laiką iš anksto.
Koks yra šio buto unikalus registracijos numeris?
Objekto unikalus numeris yra 4400-0245-8324:5774.