📝 Aprašymas
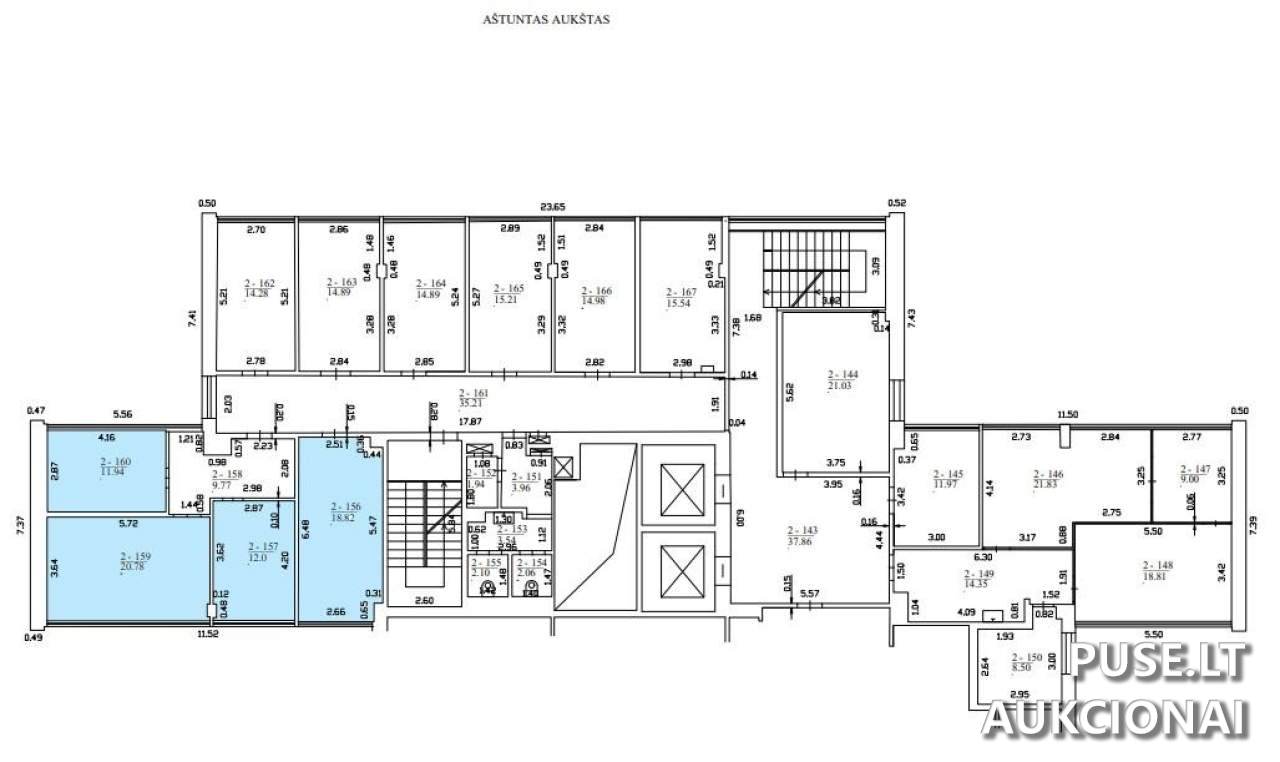
Parduodamos (nuomojamos) administracinės paskirties patalpos, esančios Vilniaus mieste, A. Juozapavičiaus gatvėje 9, 8-ajame aukšte. Šis nuomos konkursas yra paskelbtas ir vyks 2026 m. balandžio 2 d. Iki 2026 m. balandžio 3 d. Iš viso nuomojamas plotas yra 87,93 kv. m, apimantis unikalius indeksus 2-156, 2-157, 2-159, 2-160 (63,54 kv. m) su bendro naudojimo patalpomis.
Administracinės patalpos nuomojamos esamos būklės. Ateinantis nuomininkas turi galimybę patalpas įsirengti pagal savo specifinius poreikius, tam reikalingas lėšas dengiant pačiam nuomininkui.
Konkurso registracija vyksta nuo 2026 m. kovo 23 d. iki 2026 m. kovo 25 d. Konkurso dalyviai privalo sumokėti 50 EUR dydžio registracijos mokestį. Pradinė nuomos kaina nurodyta 0 EUR. Detalesnės Valstybės ilgalaikio materialiojo turto nuomos elektroninio konkurso bendrosios sąlygos ir nuomos sutarties projektas yra prieinami specialioje nuorodoje.
Turto apžiūros galimos nuo 2026 m. vasario 19 d. iki 2026 m. kovo 22 d., kiekvieną darbo dieną nuo 10:00 iki 15:00 valandos. Privaloma išankstinė registracija, informuojant kontaktinį asmenį ne vėliau kaip prieš 1 darbo dieną iki planuojamos apžiūros.
Hesąskaitas registracijos mokesčiui ir pradiniam įnašui yra LT51 7044 0600 0044 3925 AB SEB banke, gavėjas VĮ Turto bankas, įm. k. 112021042.
Administracinės patalpos nuomojamos esamos būklės. Ateinantis nuomininkas turi galimybę patalpas įsirengti pagal savo specifinius poreikius, tam reikalingas lėšas dengiant pačiam nuomininkui.
Konkurso registracija vyksta nuo 2026 m. kovo 23 d. iki 2026 m. kovo 25 d. Konkurso dalyviai privalo sumokėti 50 EUR dydžio registracijos mokestį. Pradinė nuomos kaina nurodyta 0 EUR. Detalesnės Valstybės ilgalaikio materialiojo turto nuomos elektroninio konkurso bendrosios sąlygos ir nuomos sutarties projektas yra prieinami specialioje nuorodoje.
Turto apžiūros galimos nuo 2026 m. vasario 19 d. iki 2026 m. kovo 22 d., kiekvieną darbo dieną nuo 10:00 iki 15:00 valandos. Privaloma išankstinė registracija, informuojant kontaktinį asmenį ne vėliau kaip prieš 1 darbo dieną iki planuojamos apžiūros.
Hesąskaitas registracijos mokesčiui ir pradiniam įnašui yra LT51 7044 0600 0044 3925 AB SEB banke, gavėjas VĮ Turto bankas, įm. k. 112021042.
📍 Objekto lokacija
📍 Vilniaus m. sav. Vilniaus m. A. Juozapavičiaus g. 9-2
❓ Dažnai užduodami klausimai
Kokia administracinių patalpų bendra nuomojama ploto dalis A. Juozapavičiaus g. 9?
Visas nuomojamas plotas yra 87,93 kv. m, įskaitant dalį bendrojo naudojimo patalpų. Konkretūs indeksai yra 2-156, 2-157, 2-159, 2-160 (63,54 kv. m).
Kada vyks nuomos konkursas ir kada reikia registruotis?
Aukcionas prasideda 2026-04-02 09:00:00 ir baigiasi 2026-04-03 13:59:59. Registracija vyksta nuo 2026-03-23 00:00:00 iki 2026-03-25 23:59:59.
Kokia yra administracinių patalpų Vilniuje, A. Juozapavičiaus g. 9, pradinė nuomos kaina?
Pradinė nuomos kaina aukcione yra nurodyta 0 EUR.
Kokie yra papildomi mokesčiai dalyvaujant aukcione?
Dalyvio registracijos mokestis yra 50 EUR. Ši suma ir pradinis įnašas turi būti sumokėti į nurodytą AB SEB banko sąskaitą.
Kokia yra patalpų būklė ir ar galima jas pritaikyti pagal poreikius?
Patalpos nuomojamos esamos būklės. Nuomininkas turės galimybę (savo lėšomis) patalpas įsirengti pagal savo poreikius.
Kada galima apžiūrėti nuomojamą turtą A. Juozapavičiaus g. 9?
Apžiūros vyksta nuo 2026-02-19 iki 2026-03-22, nuo 10:00 iki 15:00 val. Nepamirškite iš anksto informuoti kontaktinio asmens.