📝 Aprašymas
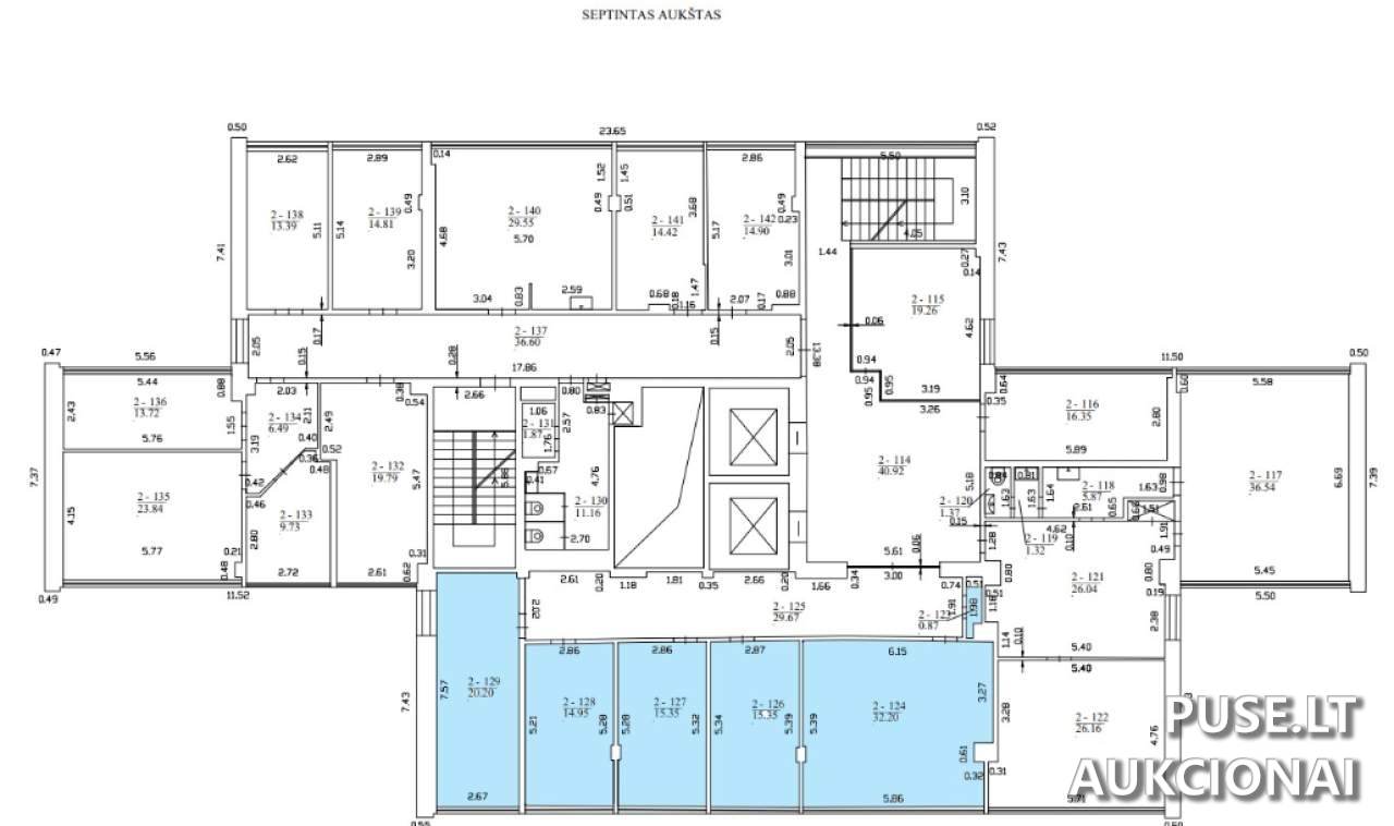
Parduodamas (nuomojamas) pakartotinis administracinių patalpų nuomos konkursas Vilniaus mieste, esantis A. Juozapavičiaus g. 9, 7-ame aukšte. Bendras nuomojamas plotas yra 139,31 kv. m., įskaitant 98,92 kv. m. individualių patalpų (indeksai: 2-123, 2-124, 2-126, 2-127, 2-128, 2-129) ir dalį bendro naudojimo patalpų. Nuomojamos patalpos parduodamos esamos būklės, suteikiant nuomininkui galimybę patalpas įsirengti pagal asmeninius poreikius, vykdant atnaujinimo darbus savo lėšomis. Šis nuomos konkursas yra valdomas Lietuvos Respublikos vardu.
Administracinių patalpų nuomos konkursas prasideda 2026-03-12 09:00:00 ir baigiasi 2026-03-13 13:59:59. Registracija dalyvavimui vyksta nuo 2026-03-02 iki 2026-03-04 23:59:59. Pradinė nuomos kaina nustatyta 0 EUR. Dalyvio registracijos mokestis siekia 50 EUR. Apmokėjimas už registracijos mokestį ir pradinį įnašą turi būti atliktas į VĮ Turto bankas sąskaitą, nurodant konkurso numerį.
Turto unikalus kodas yra 1097-3000-1019:0005, o objektas priklauso Lietuvos Respublikai. Galima apžiūra vyksta nuo 2026-02-19 iki 2026-03-01, nuo 10:00 iki 15:00 val. Svarbu: prieš apžiūrą būtina informuoti kontaktinį asmenį ne vėliau kaip prieš 1 darbo dieną.
Nuomos organizatorius yra Valstybės įmonė Turto bankas (įmonės kodas 112021042). Konkurso dalyviai privalo susipažinti su Valstybės ilgalaikio materialiojo turto nuomos elektroninio konkurso bendrosiomis sąlygomis ir nuomos sutarties projektu.
Administracinių patalpų nuomos konkursas prasideda 2026-03-12 09:00:00 ir baigiasi 2026-03-13 13:59:59. Registracija dalyvavimui vyksta nuo 2026-03-02 iki 2026-03-04 23:59:59. Pradinė nuomos kaina nustatyta 0 EUR. Dalyvio registracijos mokestis siekia 50 EUR. Apmokėjimas už registracijos mokestį ir pradinį įnašą turi būti atliktas į VĮ Turto bankas sąskaitą, nurodant konkurso numerį.
Turto unikalus kodas yra 1097-3000-1019:0005, o objektas priklauso Lietuvos Respublikai. Galima apžiūra vyksta nuo 2026-02-19 iki 2026-03-01, nuo 10:00 iki 15:00 val. Svarbu: prieš apžiūrą būtina informuoti kontaktinį asmenį ne vėliau kaip prieš 1 darbo dieną.
Nuomos organizatorius yra Valstybės įmonė Turto bankas (įmonės kodas 112021042). Konkurso dalyviai privalo susipažinti su Valstybės ilgalaikio materialiojo turto nuomos elektroninio konkurso bendrosiomis sąlygomis ir nuomos sutarties projektu.
📍 Objekto lokacija
📍 Vilniaus m. sav. Vilniaus m. A. Juozapavičiaus g. 9-2
❓ Dažnai užduodami klausimai
Kokia administracinių patalpų bendra nuomojama kvadratūra A. Juozapavičiaus g. 9?
Bendra nuomojama ploto apimtis yra 139,31 kv. m., įskaitant 98,92 kv. m. individualių patalpų ir bendro naudojimo patalpas.
Kada prasidės ir baigsis nuomos konkursas A. Juozapavičiaus g. 9 patalpoms?
Nuomos konkursas prasideda 2026-03-12 09:00:00 ir baigiasi 2026-03-13 13:59:59.
Kokia yra pradinė administracinių patalpų nuomos kaina?
Administracinių patalpų pradinė nuomos kaina nustatyta 0 EUR.
Kada ir kaip galima apžiūrėti patalpas Vilniuje, A. Juozapavičiaus g. 9?
Apžiūra vyksta 2026-02-19 - 2026-03-01, nuo 10:00 iki 15:00 val. Apie atvykimą būtina informuoti iš anksto, ne vėliau kaip prieš 1 darbo dieną.
Koks yra dalyvio registracijos mokestis 2026 m. nuomos konkursui?
Registracijos mokestis, mokamas VĮ Turto bankui, yra 50 EUR.
Kokios yra pagrindinės patalpų būklės ir įrengimo sąlygos?
Patalpos nuomojamos esamos būklės, o nuomininkas turės teisę (savo lėšomis) jas įsirengti pagal savo poreikius.