📝 Aprašymas
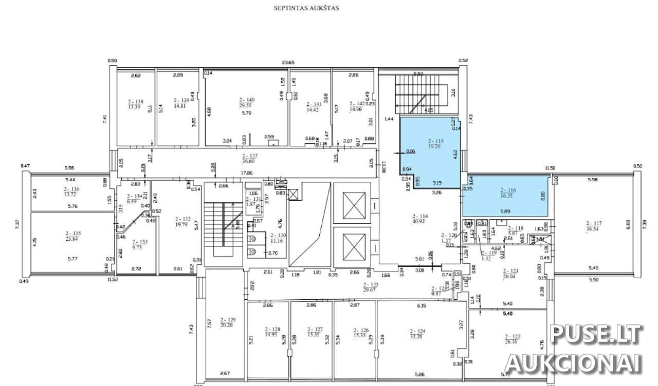
Vilniaus mieste, A. Juozapavičiaus g. 9, nuomojamos administracinės paskirties patalpos, esančios 7 aukšte, kurių bendras nuomojamas plotas yra 50,16 kv. m. Šis nuomojamas turtas siūlomas kaip pakartotinis konkursas su pradine 0 EUR kaina. Patalpos, pažymėtos indeksais 2-115 ir 2-116, sudaro 35,61 kv. m. Naudojamasis plotas apima ir dalį bendro naudojimo patalpų.
Nuomojamos patalpos perduodamos esamos techninės būklės. Būsimas nuomininkas turės galimybę savo lėšomis atlikti reikiamus patalpų įrengimo darbus pagal savo specifinius poreikius. Tai suteikia lankstumo pritaikant erdvę savo verslo specifikai.
E-konkursas prasideda 2026-03-12 09:00:00 ir baigiasi 2026-03-13 13:59:59. Pirkėjo registracija vyksta nuo 2026-03-02 00:00:00 iki 2026-03-04 23:59:59. Būtina sumokėti 50 EUR registracijos mokestį šiam e. konkursui.
Turto apžiūros yra organizuojamos laikotarpiu nuo 2026-02-19 iki 2026-03-01, kasdien nuo 10:00 val. iki 15:00 val. Apie planuojamą apžiūrą būtina iš anksto informuoti kontaktinį asmenį ne vėliau kaip prieš vieną darbo dieną.
Nuomos organizatorius yra Valstybės įmonė Turto bankas (įmonės kodas 112021042). Visos Valstybės ilgalaikio materialiojo turto nuomos elektroninio konkurso bendrosios sąlygos ir nuomos sutarties projektai yra prieinami viešai per nurodytą nuorodą. Savininko statusas yra Lietuvos Respublika.
Nuomojamos patalpos perduodamos esamos techninės būklės. Būsimas nuomininkas turės galimybę savo lėšomis atlikti reikiamus patalpų įrengimo darbus pagal savo specifinius poreikius. Tai suteikia lankstumo pritaikant erdvę savo verslo specifikai.
E-konkursas prasideda 2026-03-12 09:00:00 ir baigiasi 2026-03-13 13:59:59. Pirkėjo registracija vyksta nuo 2026-03-02 00:00:00 iki 2026-03-04 23:59:59. Būtina sumokėti 50 EUR registracijos mokestį šiam e. konkursui.
Turto apžiūros yra organizuojamos laikotarpiu nuo 2026-02-19 iki 2026-03-01, kasdien nuo 10:00 val. iki 15:00 val. Apie planuojamą apžiūrą būtina iš anksto informuoti kontaktinį asmenį ne vėliau kaip prieš vieną darbo dieną.
Nuomos organizatorius yra Valstybės įmonė Turto bankas (įmonės kodas 112021042). Visos Valstybės ilgalaikio materialiojo turto nuomos elektroninio konkurso bendrosios sąlygos ir nuomos sutarties projektai yra prieinami viešai per nurodytą nuorodą. Savininko statusas yra Lietuvos Respublika.
📍 Objekto lokacija
📍 Vilniaus m. sav. Vilniaus m. A. Juozapavičiaus g. 9-2
❓ Dažnai užduodami klausimai
Kokia nuomojamų administracinių patalpų bendras plotas Vilniuje?
Bendras nuomojamas plotas yra 50,16 kv. m, įskaitant individualias patalpas 2-115, 2-116 (35,61 kv. m) ir dalį bendro naudojimo patalpų.
Kokia yra administracinių patalpų A. Juozapavičiaus g. 9 pradinė nuomos kaina?
Nekilnojamojo turto pradinė kaina yra 0 EUR, nes tai yra nuomos konkursas.
Kada vyksta nuomos e-konkursas A. Juozapavičiaus g. 9 patalpoms?
Aukcionas prasideda 2026-03-12 09:00:00 ir baigiasi 2026-03-13 13:59:59.
Kokie yra registracijos terminai e-konkursui?
Registracija prasideda 2026-03-02 00:00:00 ir baigiasi 2026-03-04 23:59:59.
Kokia yra registracijos mokesčio suma dalyvaujant konkurse?
Registracijos mokestis dalyvio registravimui yra 50 EUR.
Kokios yra patalpų būklė ir ar reikia investicijų?
Patalpos nuomojamos esamos būklės, nuomininkas turi galimybę jas įsirengti savo lėšomis pagal savo poreikius.
Kada galima apžiūrėti administracines patalpas A. Juozapavičiaus g. 9?
Apžiūros galimos nuo 2026-02-19 iki 2026-03-01, nuo 10:00 val. iki 15:00 val., iš anksto informuojant kontaktinį asmenį.