Ūkinis pastatas Joniškio rajone, Linkaičių k., Gruzdžių g. 14, parduodamas aukcione nuo 1317 EUR

📝 Aprašymas

★★★★★ ★★★★★ 3.5
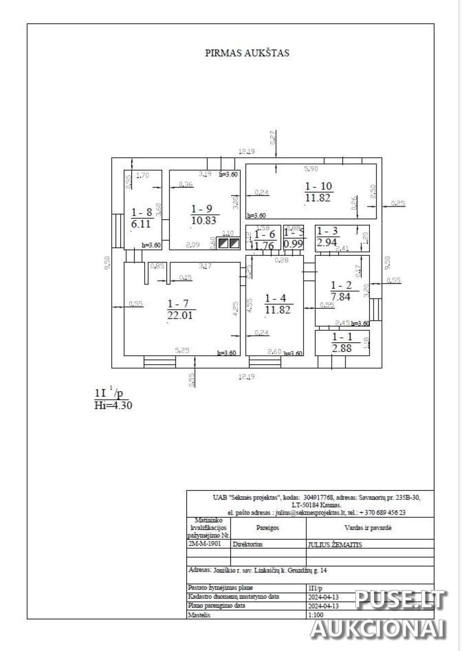
Parduodamas negyvenamosios paskirties ūkinis pastatas Joniškio rajono savivaldybės teritorijoje, Linkaičių kaime, Gruzdžių g. 14, unikalus numeris 4400-6280-3660. Šis statinys yra parduodamas 1/1 nuosavybės teisėmis. Bendra pastato ploto charakteristika nurodoma kaip 79,00 kv. m, inventorinis numeris C000038488_1. Svarbu pažymėti, kad žemės sklypas šiam pastatui dar nėra suformuotas, tai yra esminė sąlyga būsimam pirkėjui. Aukcionas yra savivaldybės paskelbtas ir vykdomas kaip pirminis turto pardavimas.

Pirkimo-pardavimo sutartis su aukciono laimėtoju turi būti sudaryta per 30 kalendorinių dienų nuo pardavimo dienos. Visa įsigyjimo suma privalo būti sumokėta ne vėliau kaip per 10 dienų po pirkimo-pardavimo sutarties pasirašymo. Visas sutarties sudarymo išlaidas, įskaitant notaro atlyginimą, apmoka aukciono laimėtojas.

Pradinė pastato kaina aukcione 1317 EUR. Pirkėjas taip pat turi sumokėti 132 EUR dydžio garantinį mokestį ir 20 EUR dydžio registracijos mokestį, siekiant dalyvauti pirkimo procese. Būsimiems dalyviams ir suinteresuotiems asmenims dėl turto apžiūros ar papildomos informacijos teirautis Joniškio rajono savivaldybės administracijos atstovų.

📍 Objekto lokacija

📍 Joniškio r. sav. Linkaičių k. Gruzdžių g. 14

❓ Dažnai užduodami klausimai

Kokia pradinė ūkinio pastato kaina aukcione?
Pradinė kaina aukcione yra 1317 EUR.
Kada vyksta aukcionas Joniškio rajono pastatui?
Aukcionas prasideda 2026-04-13 09:00:00 ir baigiasi 2026-04-14 13:59:59.
Koks parduodamo objekto adresas ir unikalus kodas?
Objektas yra Joniškio r. sav. Linkaičių k. Gruzdžių g. 14, unikalus numeris 4400-6280-3660.
Kokios papildomos sumos reikalingos dalyvaujant aukcione?
Reikalingas 132 EUR garantinis mokestis ir 20 EUR registracijos mokestis (viso 152 EUR).
Kokie yra mokėjimų terminai po laimėjimo?
Pirkimo-pardavimo sutartis sudaroma per 30 kalendorinių dienų, o visa kaina turi būti sumokėta per 10 dienų po sutarties pasirašymo.
Ar žemės sklypas parduodamas kartu su ūkiniu pastatu?
Ne, nurodoma, kad žemės sklypas šiam pastatui nėra suformuotas.

⏱ Aukciono laikas

Registracija dar neprasidėjo

Registracija

Iki: 2026-04-02 23:59:59
Liko: 33 dienų

Aukcionas

Iki: 2026-04-14 13:59:59
Liko: 45 dienų

🏠 Objekto informacija

📍 Adresas
Joniškio r. sav. Linkaičių k. Gruzdžių g. 14
Tipas
Pirminis
Potipis
Pastatai
Objekto ID: 412597
💰 Pradinė kaina
1317.00 €
Užstatas
132.00 €
Registracijos mokestis
20.00 €
Mažiausias kainos didinimas
417.00 €
Patvirtinimas
per 5 d. d.
Dalyvauti aukcione
🔑 Raktažodžiai
ūkinis pastatas Joniškio rajone nekilnojamas turtas aukcionas savivaldybės turto pardavimas pastatas Gruzdžių g. 14 79 kv m ūkinis pastatas