📝 Aprašymas
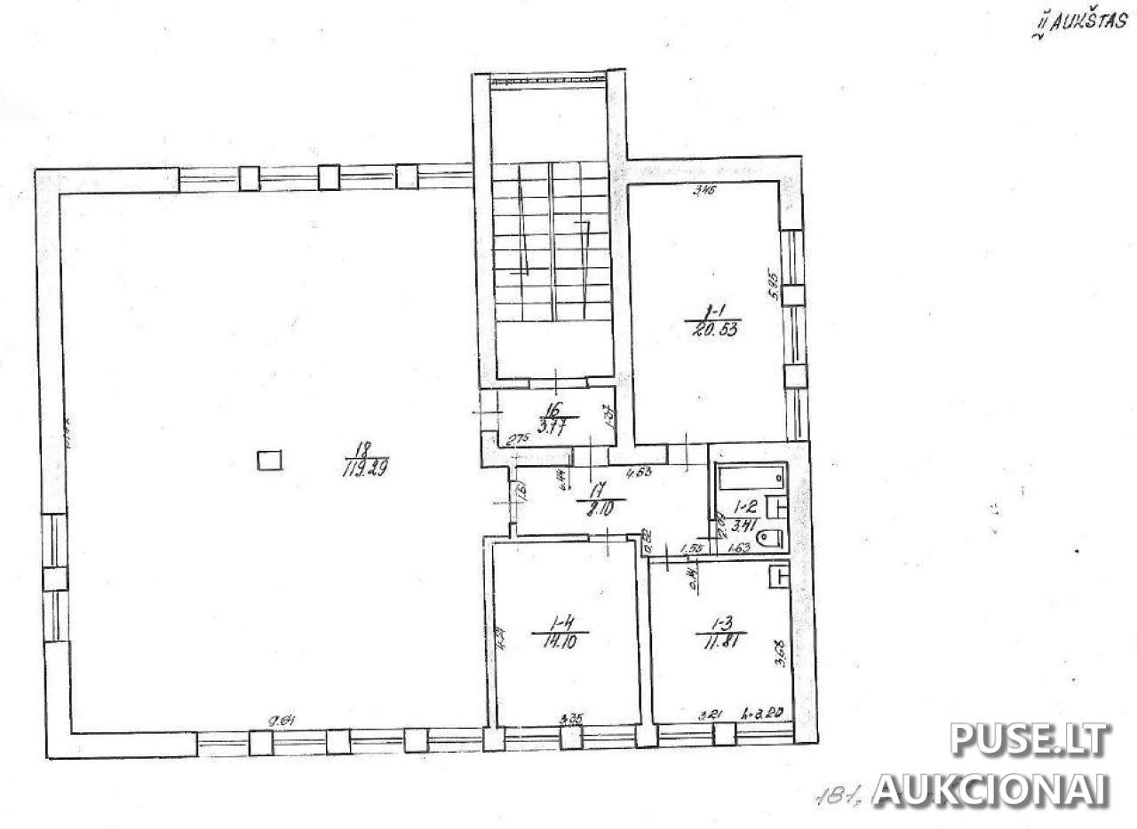
Parduodamas 552,44 kv. m ploto administracinės paskirties pastatas, esantis Biržų rajono savivaldybėje, Nemunėlio Radviliškio miestelyje, Biržų gatvėje 3. Šis 1988 metais statytas objektas pasižymi 100 procentų baigtumu ir yra parduodamas visa dalimi (1/1). Pastato elektros galia yra nustatyta 5 kW.
Objektas yra eksploatuojamas 0,1096 hektaro valstybinės žemės sklype. Šiam sklypui suformuota žemės nuomos sutartis, kuri yra itin ilgalaikė ir galioja iki 2102 metų rugsėjo 9 dienos. Valstybinės žemės nuomos mokestis, sumokėtas už 2025 metus, yra 17,25 Eur.
Atkreipkite dėmesį, kad dalis patalpų yra išnuomota: 18 kvadratinių metrų patalpos (pažymėtos Nr. 11) ir 2,45 kvadratinio metro dalis patalpų Nr. 10 yra išnuomotos pagal sutartį iki 2033 metų spalio 14 dienos. Tai suteikia galimybę užtikrinti nuolatines pajamas iš nuomos per ilgesnį laikotarpį.
Pradinė kaina aukcione yra 13500 EUR, o privalomasis pirkėjo garantinis mokestis sudaro 1000 EUR. Aukciono registracija vyksta nuo 2026-03-17 iki 2026-03-23, o pats aukcionas vyks nuo 2026-03-26 09:00:00 iki 2026-03-27 13:59:59.
Sutarties sudarymo išlaidas, įskaitant notaro atlygį, apmoka aukciono laimėtojas. Pirkėjas prisiima riziką ir atsakomybę, įsipareigodamas savarankiškai įvertinti turto būklę, teisinį statusą, galimus apribojimus ir kreiptis į atitinkamas institucijas (savivaldybę, Valstybinę teritorijų planavimo ir statybos inspekciją, Nacionalinę žemės tarnybą) dėl žemės sklypo naudojimo klausimų.
Objektas yra eksploatuojamas 0,1096 hektaro valstybinės žemės sklype. Šiam sklypui suformuota žemės nuomos sutartis, kuri yra itin ilgalaikė ir galioja iki 2102 metų rugsėjo 9 dienos. Valstybinės žemės nuomos mokestis, sumokėtas už 2025 metus, yra 17,25 Eur.
Atkreipkite dėmesį, kad dalis patalpų yra išnuomota: 18 kvadratinių metrų patalpos (pažymėtos Nr. 11) ir 2,45 kvadratinio metro dalis patalpų Nr. 10 yra išnuomotos pagal sutartį iki 2033 metų spalio 14 dienos. Tai suteikia galimybę užtikrinti nuolatines pajamas iš nuomos per ilgesnį laikotarpį.
Pradinė kaina aukcione yra 13500 EUR, o privalomasis pirkėjo garantinis mokestis sudaro 1000 EUR. Aukciono registracija vyksta nuo 2026-03-17 iki 2026-03-23, o pats aukcionas vyks nuo 2026-03-26 09:00:00 iki 2026-03-27 13:59:59.
Sutarties sudarymo išlaidas, įskaitant notaro atlygį, apmoka aukciono laimėtojas. Pirkėjas prisiima riziką ir atsakomybę, įsipareigodamas savarankiškai įvertinti turto būklę, teisinį statusą, galimus apribojimus ir kreiptis į atitinkamas institucijas (savivaldybę, Valstybinę teritorijų planavimo ir statybos inspekciją, Nacionalinę žemės tarnybą) dėl žemės sklypo naudojimo klausimų.
📍 Objekto lokacija
📍 Biržų r. sav. Nemunėlio Radviliškio mstl. Biržų g. 3
❓ Dažnai užduodami klausimai
Kokia administracinio pastato pradinė kaina ir kada vyks aukcionas?
Pradinė kaina yra 13500 EUR. Aukcionas vyks nuo 2026-03-26 09:00:00 iki 2026-03-27 13:59:59.
Koks parduodamo pastato plotas ir koks jo unikalus numeris?
Parduodamo pastato plotas yra 552,44 kv. m, o unikalus numeris yra 3698-8013-5018.
Ar yra apribojimų dėl valstybinės žemės naudojimo ir kiek laiko galioja nuomos sutartis?
Pastatas eksploatuojamas 0,1096 ha valstybinės žemės sklype, o nuomos sutartis galioja iki 2102-09-09. Valstybinės žemės nuomos mokestis už 2025 metus sumokėtas ir sudarė 17,25 Eur.
Ar yra nuomojamų patalpų pastate ir iki kada galioja nuomos sutartys?
Taip, 18 m2 (Nr. 11) ir 2,45 m2 (dalis Nr. 10) patalpos yra išnuomotos iki 2033-10-14.
Koks yra garantinis mokestis ir kada reikia sumokėti registracijos įnašą?
Garantinis mokestis yra 1000 EUR. Registracija vyksta iki 2026-03-23 23:59:59.
Kas apmoka sutarties sudarymo išlaidas, įskaitant notarą?
Sutarties sudarymo išlaidas, įskaitant atlyginimą notarui, apmoka aukciono laimėtojas (Pirkėjas).