📝 Aprašymas
Parduodamas nekilnojamojo turto kompleksas Vilniaus miesto savivaldybėje adresu Vytenio g. 1, kurį sudaro didelis administracinis pastatas ir žemės sklypas. Kompleksas parduodamas viešame Turto banko aukcione su 3880333 EUR pradine kaina. Svarbu pirkėjams atkreipti dėmesį į turto dabartinę būklę ir juridinius aspektus.
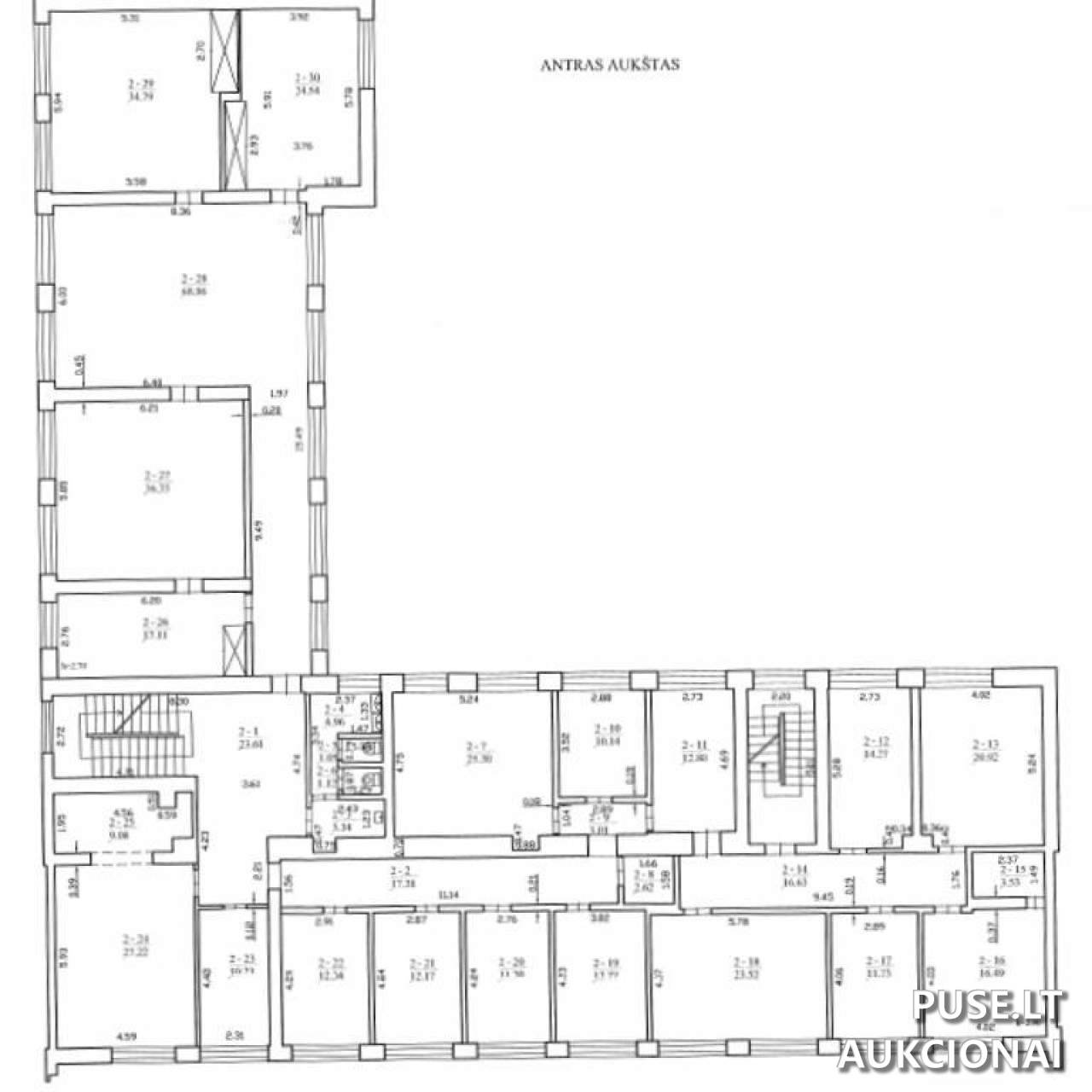
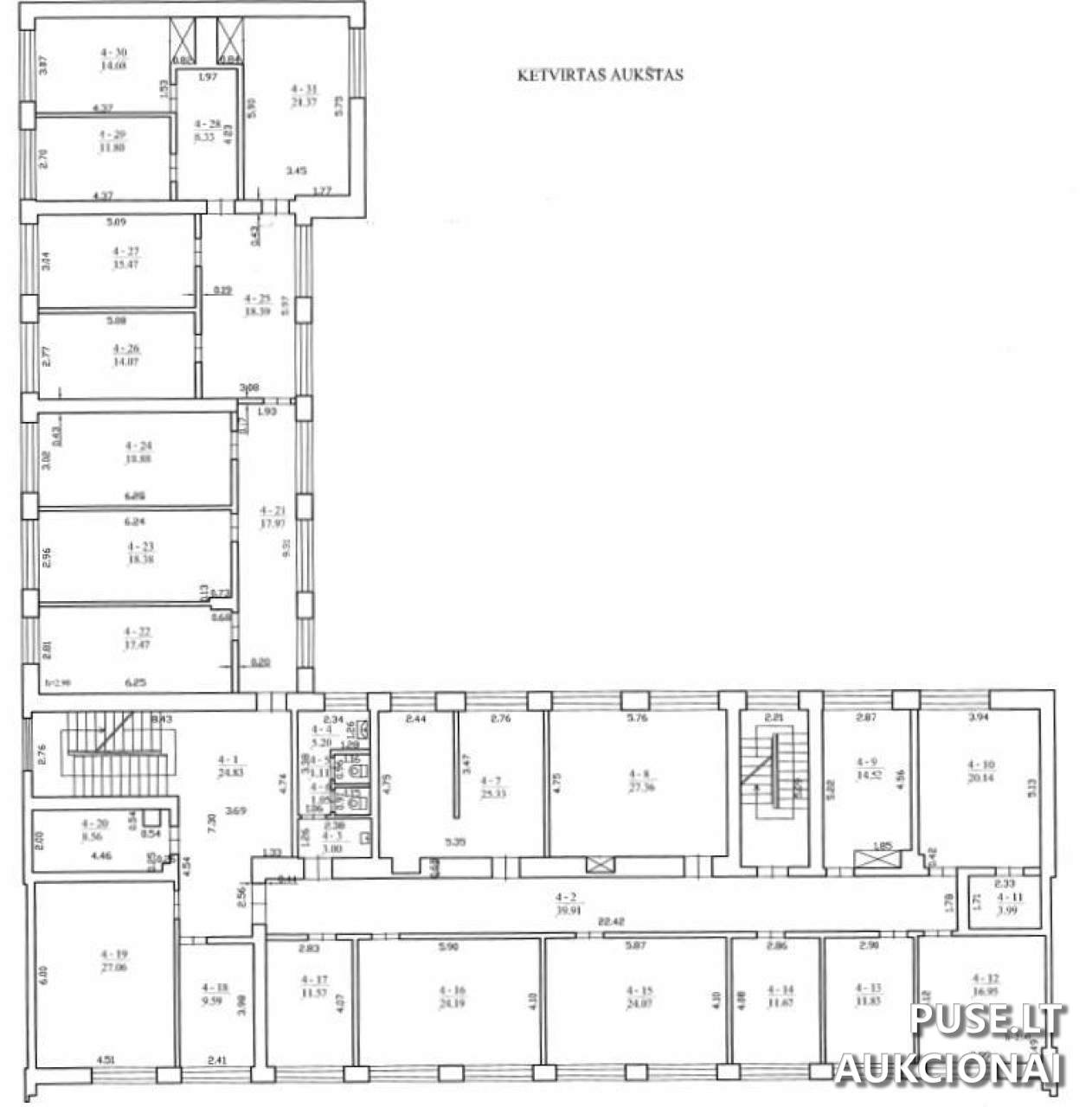
Objektą sudaro šie turtiniai vienetai: Administracinis pastatas 1B5p (unikalus Nr. 1096-7013-1018) bendru plotu 2802.05 kv. m Vilniuje, Vytenio g. 1. Taip pat parduodamas Garažas 2G1p (unikalus Nr. 1096-7013-1029) bendru plotu 98.51 kv. m, esantis Vytenio g. 1B. Parduodamas žemės sklypas, kurio unikalus Nr. 0101-0055-0045, užima 0.1615 ha plotą Vilniuje, Vytenio g. 1.
Nekilnojamasis turtas parduodamas esamos fizinės ir funkcinės būklės, pagal esamus kadastro duomenis. Administraciniame pastate 1B5p yra esminių pakitimų: įrengti priešgaisriniai laiptai, ventiliacijos ortakis, pakeisti langai ir angos, taip pat dalis pertvarų demontuota. Valstybės įmonė Turto bankas neįsipareigoja nustatyti aktualios kadastro duomenų būklės ar iškraustyti esamų daiktų. Elektros instaliacija pastate yra fiziškai pažeista, objektas neeksploatuojamas.
Svarbios juridinės sąlygos: Žemės sklypo ribos kerta administracinį pastatą 1B5p, kurio dalis yra valstybinėje žemėje, kuriai nesuformuotas žemės sklypas. Pirkėjas turi išnagrinėti rizikas dėl galimo neatitikimo statybos teisės aktų reikalavimams dėl pastato, priklausančio nevienodai valdomai žemei. Parduodamame žemės sklype yra neregistruotų aikštelių, tvoros ir vartų, kurie laikomi sklypo priklausiniais. Taip pat sklype yra registruota trečiųjų asmenų stoginė 19I1m (unikalus Nr. 1094-0119-9128), kurios nuosavybės teisės neperleidžiamos. Į sklypą patenka ir dalis kepyklos 17P1p (unikalus Nr. 1094-0119-9160) priestato, kurio teisinio statuso Turto bankas neturi.
Patekimas į parduodamą žemės sklypą nuo Vytenio gatvės vyksta per 2 arkas esančias laisvoje valstybinėje žemėje. Taip pat privažiavimas gali priklausyti nuo susitarimų su gretimų objektų (J. Basanavičiaus g. 42 ir Vytenio g. 3) savininkais ir sklypu (unikalus Nr. 0101-0055-0052, J. Basanavičiaus g. 44) dalimi.
Objektą sudaro šie turtiniai vienetai: Administracinis pastatas 1B5p (unikalus Nr. 1096-7013-1018) bendru plotu 2802.05 kv. m Vilniuje, Vytenio g. 1. Taip pat parduodamas Garažas 2G1p (unikalus Nr. 1096-7013-1029) bendru plotu 98.51 kv. m, esantis Vytenio g. 1B. Parduodamas žemės sklypas, kurio unikalus Nr. 0101-0055-0045, užima 0.1615 ha plotą Vilniuje, Vytenio g. 1.
Nekilnojamasis turtas parduodamas esamos fizinės ir funkcinės būklės, pagal esamus kadastro duomenis. Administraciniame pastate 1B5p yra esminių pakitimų: įrengti priešgaisriniai laiptai, ventiliacijos ortakis, pakeisti langai ir angos, taip pat dalis pertvarų demontuota. Valstybės įmonė Turto bankas neįsipareigoja nustatyti aktualios kadastro duomenų būklės ar iškraustyti esamų daiktų. Elektros instaliacija pastate yra fiziškai pažeista, objektas neeksploatuojamas.
Svarbios juridinės sąlygos: Žemės sklypo ribos kerta administracinį pastatą 1B5p, kurio dalis yra valstybinėje žemėje, kuriai nesuformuotas žemės sklypas. Pirkėjas turi išnagrinėti rizikas dėl galimo neatitikimo statybos teisės aktų reikalavimams dėl pastato, priklausančio nevienodai valdomai žemei. Parduodamame žemės sklype yra neregistruotų aikštelių, tvoros ir vartų, kurie laikomi sklypo priklausiniais. Taip pat sklype yra registruota trečiųjų asmenų stoginė 19I1m (unikalus Nr. 1094-0119-9128), kurios nuosavybės teisės neperleidžiamos. Į sklypą patenka ir dalis kepyklos 17P1p (unikalus Nr. 1094-0119-9160) priestato, kurio teisinio statuso Turto bankas neturi.
Patekimas į parduodamą žemės sklypą nuo Vytenio gatvės vyksta per 2 arkas esančias laisvoje valstybinėje žemėje. Taip pat privažiavimas gali priklausyti nuo susitarimų su gretimų objektų (J. Basanavičiaus g. 42 ir Vytenio g. 3) savininkais ir sklypu (unikalus Nr. 0101-0055-0052, J. Basanavičiaus g. 44) dalimi.
📍 Objekto lokacija
📍 Vilniaus m. sav. Vilniaus m. Vytenio g. 1
❓ Dažnai užduodami klausimai
Kokia yra pradinė kaina už administracinį pastatą ir žemės sklypą Vytenio g. 1?
Pradinė kaina, už kurią vyksta aukcionas, sudaro 3880333 EUR.
Kada vyks pagrindinis turto aukcionas Vytenio g. 1?
Aukcionas prasidės 2026-04-27 09:00:00 ir baigsis 2026-04-28 13:59:59.
Kokie yra privalomi mokesčiai dalyvaujant aukcione?
Privalomas garantinis mokestis yra 388033 EUR, o dalyvio registracijos mokestis yra 200 EUR.
Kokie pagrindiniai turto defektai, į kuriuos turi atkreipti dėmesį pirkėjas?
Administraciniame pastate yra esminių pakitimų (priešgaisriniai laiptai, ventiliacijos ortakis, dalis pertvarų demontuota), elektros instaliacija fiziškai pažeista, ir pastato dalis stovi valstybinėje žemėje, kuriai nesuformuotas sklypas.
Koks yra bendras parduodamo turto plotas ir žemės sklypo dydis?
Bendrai parduodami 2802.05 kv. m administracinis pastatas, 98.51 kv. m garažas ir 0.1615 ha žemės sklypas.
Kada galima apžiūrėti nekilnojamojo turto objektą?
Objektų apžiūros organizuojamos iki registracijos pradžios, iš anksto individualiai suderinus laiką su Turto komercijos skyriaus atstove.