📝 Aprašymas
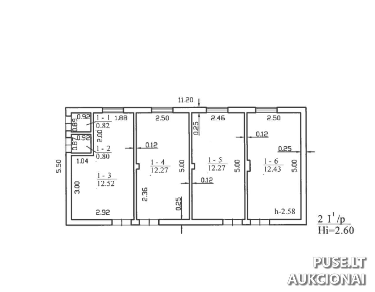
Skelbiamas buto pardavimas viešame pakartotiniame aukcione, kurio pradinė kaina yra 366 EUR. Šis nekilnojamasis turtas yra Zarasų rajono savivaldybėje, Imbrado seniūnijoje, Suvėnų kaime, Liepų g. 9-3 adresas. Parduodama visa 1/1 dalis buto. Bendra buto naudingoji ploto dalis yra 37,49 kv. m. Papildomai parduodama 1/4 dalis bendro 51,11 kv. m tvarto, esančio toje pačioje valdoje (Liepų g. 9, unikalus Nr. 4396-4002-9020).
Objektas parduodamas esamos fizinės ir funkcinės būklės. Valstybės įmonė Turto bankas neįsipareigoja nustatyti aktualios nekilnojamojo turto kadastro duomenų būklės ar iškraustyti jame esančių daiktų. Svarbu paminėti, kad gyvenamasis namas, kuriame yra parduodamas butas, ir tvartas yra valstybinėje žemėje, kurioje žemės sklypas nėra suformuotas ir teisės į žemės sklypą nėra perleidžiamos. Taip pat nurodoma, kad komunikacijų nėra.
Bendraturčiai nėra sudarę susitarimų dėl naudojimosi bendros dalinės nuosavybės tvarkos, todėl pirkėjui teks spręsti šiuos bendros nuosavybės valdymo klausimus. Šis pardavimas yra patrauklus investuotojams, ieškantiems mažos pradinės kainos turto Zarasų regione, pripažįstant būtinybę atlikti papildomus darbus dėl žemės ir komunikacijų statuso.
Turto organizatorius yra Valstybės įmonė Turto bankas (įmonės kodas 112021042), o savininkas yra Lietuvos Respublika. Aukciono dalyvio registravimo mokestis yra 1 EUR, o sumokamas garantinis mokestis sudaro 36 EUR.
Objektas parduodamas esamos fizinės ir funkcinės būklės. Valstybės įmonė Turto bankas neįsipareigoja nustatyti aktualios nekilnojamojo turto kadastro duomenų būklės ar iškraustyti jame esančių daiktų. Svarbu paminėti, kad gyvenamasis namas, kuriame yra parduodamas butas, ir tvartas yra valstybinėje žemėje, kurioje žemės sklypas nėra suformuotas ir teisės į žemės sklypą nėra perleidžiamos. Taip pat nurodoma, kad komunikacijų nėra.
Bendraturčiai nėra sudarę susitarimų dėl naudojimosi bendros dalinės nuosavybės tvarkos, todėl pirkėjui teks spręsti šiuos bendros nuosavybės valdymo klausimus. Šis pardavimas yra patrauklus investuotojams, ieškantiems mažos pradinės kainos turto Zarasų regione, pripažįstant būtinybę atlikti papildomus darbus dėl žemės ir komunikacijų statuso.
Turto organizatorius yra Valstybės įmonė Turto bankas (įmonės kodas 112021042), o savininkas yra Lietuvos Respublika. Aukciono dalyvio registravimo mokestis yra 1 EUR, o sumokamas garantinis mokestis sudaro 36 EUR.
📍 Objekto lokacija
📍 Zarasų r. sav. Suvėnų k. Liepų g. 9-3
❓ Dažnai užduodami klausimai
Kokia yra buto Zarasų rajone, Suvėnų kaime, pradinė kaina aukcione?
Buto pradinė kaina viešame pakartotiniame aukcione yra 366 EUR.
Kada vyks aukcionas ir kada baigiasi registracija?
Aukcionas vyks nuo 2026-04-22 09:00:00 iki 2026-04-23 13:59:59. Registracija prasiėjo 2026-04-15 00:00:00 ir baigiasi 2026-04-17 23:59:59.
Koks yra parduodamo buto unikalus numeris ir plotas?
Buto bendras plotas yra 37,49 kv. m, o unikalus numeris yra 4396-4002-9012:0003. Taip pat parduodama 1/4 tvarto dalis (51,11 kv. m).
Kokie papildomi mokesčiai reikalingi dalyvaujant aukcione?
Reikalinga sumokėti 1 EUR registracijos mokestį ir 36 EUR garantinį mokestį.
Kokios yra pagrindinės turto apribojimų sąlygos?
Butas parduodamas esamos būklės, be suformuoto žemės sklypo, teisės į žemės sklypą neperleidžiamos, komunikacijos neprijungtos, ir bendraturčiai yra nesutarę dėl nuosavybės naudojimo tvarkos.
Kur galima apžiūrėti nekilnojamąjį turtą?
Apžiūros organizuojamos iš anksto individualiai suderinus laiką iki registracijos pabaigos, kreipiantis į Turto komercijos skyriaus specialistus.