📝 Aprašymas
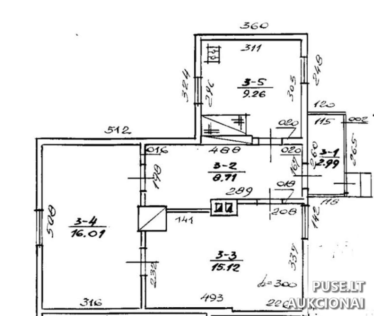
Parduodamas nekilnojamasis turtas - Butas Nr.3;4, esantis Šiaulių rajono savivaldybėje, Šakynų miestelyje, adresu Šiaulių g. 46-3. Šis objektas siūlomas kaip pakartotinis pardavimas Turto banko aukcione pradine kaina yra 882 EUR. Bendras buto plotas sudaro 74.20 kvadratinių metrų, unikalus kodas 9192-9000-6012:0002. Prie buto taip pat priklauso 1/1 dalis Tvaro, kurio užstatytas plotas 17.00 kv. m (unikalus Nr. 9192-9000-6101), bei dalinės nuosavybės teisės į daržines: 1/2 dalis daržinės (17.00 kv. m, unik. Nr. 9192-9000-6112) ir 1/2 dalis daržinės (65.00 kv. m, unik. Nr. 9192-9000-6123).
Svarbu atkreipti dėmesį, kad nekilnojamasis turtas parduodamas esamos faktinės būklės ir pagal neatnaujintus kadastro duomenis. Valstybės įmonė Turto bankas neįsipareigoja atnaujinti kadastro duomenų ar iškraustyti esančių daiktų. Pardavimui priklausantys statiniai yra valstybinėje žemėje, kuriai sklypas nėra suformuotas, o Turto bankas neturi ir neperduoda teisių į šį žemės sklypą ar jo dalį. Taip pat bendraturčiai nėra susitarę dėl bendros dalinės nuosavybės naudojimosi tvarkos.
Objektas yra išnuomotas iki 2027-04-03. Nuomos sutarties terminas gali būti nutrauktas vienašališkai, be kreipimosi į teismą, jei nuosavybės teisė pereina trečiajam asmeniui, įspėjus nuomininką ne mažiau kaip prieš 30 kalendorinių dienų.
Aukcionas prasideda 2026-04-07 09:00:00 ir baigiasi 2026-04-08 13:59:59. Registracija vyksta nuo 2026-03-30 00:00:00 iki 2026-04-01 23:59:59. Garantinis mokestis yra 88 EUR, o registracijos mokestis – 1 EUR. Dėl turto apžiūros būtina kreiptis iš anksto, individualiai suderinus laiką, ne vėliau kaip iki registracijos pradžios.
Svarbu atkreipti dėmesį, kad nekilnojamasis turtas parduodamas esamos faktinės būklės ir pagal neatnaujintus kadastro duomenis. Valstybės įmonė Turto bankas neįsipareigoja atnaujinti kadastro duomenų ar iškraustyti esančių daiktų. Pardavimui priklausantys statiniai yra valstybinėje žemėje, kuriai sklypas nėra suformuotas, o Turto bankas neturi ir neperduoda teisių į šį žemės sklypą ar jo dalį. Taip pat bendraturčiai nėra susitarę dėl bendros dalinės nuosavybės naudojimosi tvarkos.
Objektas yra išnuomotas iki 2027-04-03. Nuomos sutarties terminas gali būti nutrauktas vienašališkai, be kreipimosi į teismą, jei nuosavybės teisė pereina trečiajam asmeniui, įspėjus nuomininką ne mažiau kaip prieš 30 kalendorinių dienų.
Aukcionas prasideda 2026-04-07 09:00:00 ir baigiasi 2026-04-08 13:59:59. Registracija vyksta nuo 2026-03-30 00:00:00 iki 2026-04-01 23:59:59. Garantinis mokestis yra 88 EUR, o registracijos mokestis – 1 EUR. Dėl turto apžiūros būtina kreiptis iš anksto, individualiai suderinus laiką, ne vėliau kaip iki registracijos pradžios.
📍 Objekto lokacija
📍 Šiaulių r. sav. Šakynos mstl. Šiaulių g. 46-3
❓ Dažnai užduodami klausimai
Kokia nekilnojamojo turto (Buto Nr.3;4) pradinė kaina aukcione?
Pradinė kaina sudaro 882 EUR.
Kada baigiasi registracija dalyvauti aukcione?
Registracija baigiasi 2026-04-01 23:59:59.
Kada vyksta aukcionas (pradžia ir pabaiga)?
Aukcionas prasideda 2026-04-07 09:00:00 ir baigiasi 2026-04-08 13:59:59.
Kiek bendro ploto yra parduodamas butas ir kokie papildomi statiniai priklauso?
Buto bendras plotas yra 74.20 kv. m. Taip pat parduodama 1/1 dalis Tvaro (17.00 kv. m) ir dalys daržinių, kurios yra valstybinėje žemėje.
Kokie papildomi mokesčiai yra taikomi dalyvaujant aukcione?
Reikalingas 88 EUR garantinis mokestis ir 1 EUR registracijos mokestis.
Kokios sąlygos taikomos objekto nuomos sutarties atžvilgiu?
Objektas išnuomotas iki 2027-04-03. Nuomotojas turi teisę vienašališkai nutraukti sutartį, įspėjus nuomininką prieš 30 kalendorinių dienų.
Ar pardavėjas pasirūpins žemės sklypo suformavimu?
Parduodami statiniai yra valstybinėje žemėje, kurioje žemės sklypas nesuformuotas, ir VĮ Turto bankas teisių į sklypą neperleidžia.