📝 Aprašymas
Parduodamos buitinės patalpos Mažeikių rajono savivaldybėje, Pumpurų kaimelyje, Pumpurinės gatvėje 11-5, su unikaliu numeriu 6189-8000-8011:0005. Objekto pradinė kaina – 4782 eurai. Tai yra pakartotinis patalpų/butų aukcionas, kurį organizuoja VĮ Turto bankas.
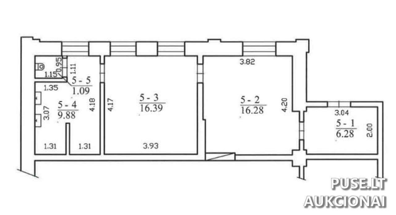
Bendra patalpų ploto dalis, parduodama 1/1 nuosavybės teise, siekia 49.92 kvadratinius metrus. Apžiūrint turtą vietoje nustatyta, kad patalpoje 5-1 yra iškirstos dvi angos ir įstatyti langai. VĮ Turto bankas neturi informacijos apie rekonstrukcijos eigą ir ar ji vyko pagal galiojusius teisės aktus. Prieš dalyvaujant aukcione, potencialiam pirkėjui rekomenduojama atlikti turto apžiūrą vietoje, įvertinti visas su tokios būklės pirkimu susijusias teisines bei ekonomines rizikas, ir nustatyti galimus įrengimo kaštus.
VĮ Turto bankas neįsipareigoja nustatyti aktualios nekilnojamojo turto kadastro duomenų būklės ir neatsako už jokius turto trūkumus, įskaitant neatitikimą statybos ar aplinkos apsaugos reikalavimams. Taip pat bankas neatsako už privalomų leidimų nebuvimą bei neįsipareigoja iškraustyti esamų daiktų.
Svarbi sąlyga – parduodami statiniai yra valstybinėje žemėje, kurios sklypas nėra suformuotas, o VĮ Turto bankas teisių į sklypą ar jo dalį neperleidžia. Pirkėjai privalo vadovautis Lietuvos Respublikos statybos ir teritorijų planavimo įstatymais, nustatydami tinkamą naudojimo būklę.
Aukciono dalyvio registracija vyksta nuo 2026-03-30 00:00:00 iki 2026-04-01 23:59:59. Pats aukcionas vyks nuo 2026-04-07 09:00:00 iki 2026-04-08 13:59:59. Privalomas garantinis mokestis yra 478 eurai, o registracijos mokestis - 10 eurų.
Bendra patalpų ploto dalis, parduodama 1/1 nuosavybės teise, siekia 49.92 kvadratinius metrus. Apžiūrint turtą vietoje nustatyta, kad patalpoje 5-1 yra iškirstos dvi angos ir įstatyti langai. VĮ Turto bankas neturi informacijos apie rekonstrukcijos eigą ir ar ji vyko pagal galiojusius teisės aktus. Prieš dalyvaujant aukcione, potencialiam pirkėjui rekomenduojama atlikti turto apžiūrą vietoje, įvertinti visas su tokios būklės pirkimu susijusias teisines bei ekonomines rizikas, ir nustatyti galimus įrengimo kaštus.
VĮ Turto bankas neįsipareigoja nustatyti aktualios nekilnojamojo turto kadastro duomenų būklės ir neatsako už jokius turto trūkumus, įskaitant neatitikimą statybos ar aplinkos apsaugos reikalavimams. Taip pat bankas neatsako už privalomų leidimų nebuvimą bei neįsipareigoja iškraustyti esamų daiktų.
Svarbi sąlyga – parduodami statiniai yra valstybinėje žemėje, kurios sklypas nėra suformuotas, o VĮ Turto bankas teisių į sklypą ar jo dalį neperleidžia. Pirkėjai privalo vadovautis Lietuvos Respublikos statybos ir teritorijų planavimo įstatymais, nustatydami tinkamą naudojimo būklę.
Aukciono dalyvio registracija vyksta nuo 2026-03-30 00:00:00 iki 2026-04-01 23:59:59. Pats aukcionas vyks nuo 2026-04-07 09:00:00 iki 2026-04-08 13:59:59. Privalomas garantinis mokestis yra 478 eurai, o registracijos mokestis - 10 eurų.
📍 Objekto lokacija
📍 Mažeikių r. sav. Pumpurų k. Pumpurinės g. 11-5
❓ Dažnai užduodami klausimai
Kokia yra pradinė šių patalpų kaina aukcione?
Patalpų Mažeikių r. sav., Pumpurų k., Pumpurinės g. 11-5 pradinė kaina yra 4782 EUR.
Kada vyksta turto apžiūros?
Objektų apžiūros organizuojamos iki registracijos pradžios į aukcioną, iš anksto individualiai suderinus laiką.
Kokie yra bendri mokėjimai dalyvaujant aukcione?
Privalomas garantinis mokestis yra 478 EUR, o registracijos mokestis yra 10 EUR.
Kada prasideda ir baigiasi aukcionas?
Aukcionas prasideda 2026-04-07 09:00:00 ir baigiasi 2026-04-08 13:59:59.
Koks yra nekilnojamojo turto unikalus numeris?
Objekto unikalus numeris yra 6189-8000-8011:0005.
Ar pardavėjas atsakingas už turto atitikimą statybos reikalavimams?
VĮ Turto bankas neatsako už jokius nuostolius dėl statinio trūkumų, įskaitant neatitikimą statybos ar aplinkos apsaugos teisės aktų reikalavimams.
Kokia yra situacija su žemės sklypu, kur stovi statinys?
Parduodami statiniai yra valstybinėje žemėje, kurioje žemės sklypas nesuformuotas, ir VĮ Turto bankas teisių į sklypą ar jo dalį neperleidžia.