📝 Aprašymas
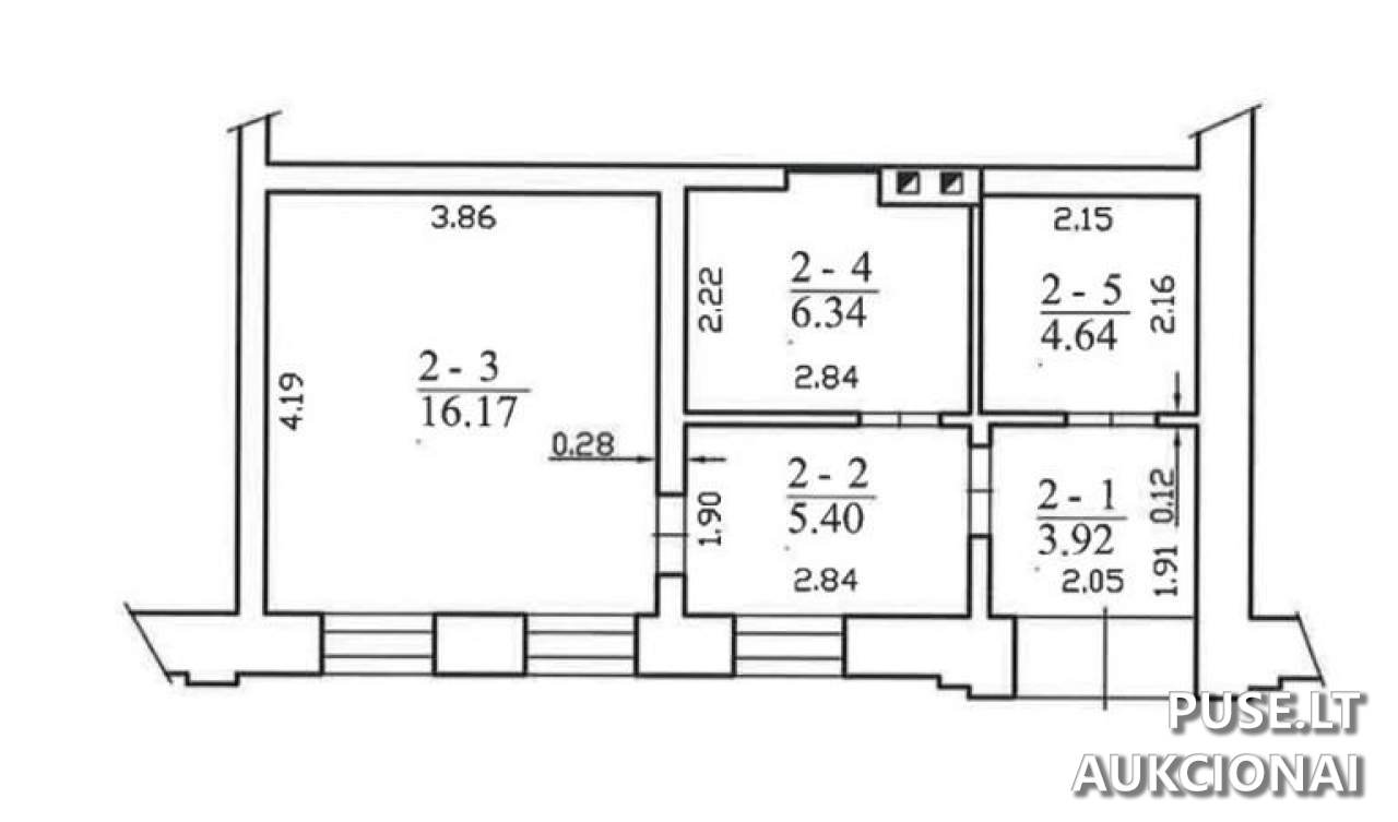
Parduodamos buitinės patalpos Mažeikių rajono savivaldybėje, Pumpurų kaimo Pumpurinės gatvės 11-2 (unikalus Nr. 6189-8000-8011:0002) Mažeikių apylinkės seniūnijoje, parduodamos pakartotiniu aukcionu. Šios parduodamos patalpos, kurios sudaro 1/1 dalį visos nuosavybės, turi 36.47 kv. m bendro ploto. Pradinė šių nekilnojamojo turto patalpų kaina yra 3490 EUR. Garantinis mokestis, kurį reikia sumokėti dalyvaujant aukcione, sudaro 349 EUR, o registracijos mokestis – 10 EUR.
Parduodamas turtas yra valstybinėje žemėje, kuriai žemės sklypas nėra suformuotas; Turto bankas neperleidžia jokių teisių į sklypą ar jo dalį. Svarbu atkreipti dėmesį, kad nekilnojamasis turtas parduodamas esamos faktinės būklės, remiantis naujausiais kadastro duomenimis. Valstybės įmonė Turto bankas neprisiima įsipareigojimų nustatyti aktualią turto būklę ar iškraustyti jame esančius daiktus.
Šios patalpos šiuo metu yra išnuomotos iki 2028-09-30. Jeigu nuosavybės teisė pereina trečiajam asmeniui, nuomotojo teisė vienašališkai nutraukti nuomos sutartį (be kreipimosi į teismą) įsigalioja, įspėjus nuomininką raštu ne vėliau kaip prieš 30 kalendorinių dienų iki sutarties nutraukimo.
Aukcionas prasideda 2026-04-07 09:00:00 ir baigiasi 2026-04-08 13:59:59. Registracija į aukcioną vyksta nuo 2026-03-30 00:00:00 iki 2026-04-01 23:59:59.
Turto apžiūra turi būti organizuojama iš anksto individualiai suderinus laiką, ir tai galima padaryti iki registracijos į aukcioną pradžios. Mokėjimus už registraciją ir garantinį įnašą galima atlikti tiesiogiai per elektroninę bankininkystę (naudojant NEOPAY) arba pateikiant pavedimų kopijas, nurodant el. aukciono numerį.
Parduodamas turtas yra valstybinėje žemėje, kuriai žemės sklypas nėra suformuotas; Turto bankas neperleidžia jokių teisių į sklypą ar jo dalį. Svarbu atkreipti dėmesį, kad nekilnojamasis turtas parduodamas esamos faktinės būklės, remiantis naujausiais kadastro duomenimis. Valstybės įmonė Turto bankas neprisiima įsipareigojimų nustatyti aktualią turto būklę ar iškraustyti jame esančius daiktus.
Šios patalpos šiuo metu yra išnuomotos iki 2028-09-30. Jeigu nuosavybės teisė pereina trečiajam asmeniui, nuomotojo teisė vienašališkai nutraukti nuomos sutartį (be kreipimosi į teismą) įsigalioja, įspėjus nuomininką raštu ne vėliau kaip prieš 30 kalendorinių dienų iki sutarties nutraukimo.
Aukcionas prasideda 2026-04-07 09:00:00 ir baigiasi 2026-04-08 13:59:59. Registracija į aukcioną vyksta nuo 2026-03-30 00:00:00 iki 2026-04-01 23:59:59.
Turto apžiūra turi būti organizuojama iš anksto individualiai suderinus laiką, ir tai galima padaryti iki registracijos į aukcioną pradžios. Mokėjimus už registraciją ir garantinį įnašą galima atlikti tiesiogiai per elektroninę bankininkystę (naudojant NEOPAY) arba pateikiant pavedimų kopijas, nurodant el. aukciono numerį.
📍 Objekto lokacija
📍 Mažeikių r. sav. Pumpurų k. Pumpurinės g. 11-2
❓ Dažnai užduodami klausimai
Kokia yra buitinių patalpų Mažeikių r. Pumpurų k. pradinė pardavimo kaina?
Pradinė kaina yra 3490 EUR.
Kada vyks 85104 ID turto aukcionas?
Aukcionas prasideda 2026-04-07 09:00:00 ir baigiasi 2026-04-08 13:59:59.
Koks yra norint dalyvauti aukcione reikalingas garantinis ir registracijos mokestis?
Garantinis mokestis yra 349 EUR, o registracijos mokestis – 10 EUR.
Koks yra parduodamų patalpų bendras plotas ir unikalus numeris?
Patalpų bendras plotas yra 36.47 kv. m, unikalus numeris 6189-8000-8011:0002.
Ar parduodamos patalpos yra suformuotame žemės sklype?
Parduodami statiniai yra valstybinėje žemėje, kurioje žemės sklypas nėra suformuotas, todėl Turto bankas teisių į sklypą neperleidžia.
Kada baigiasi nuomos sutartis, galiojanti šiam objektui?
Objektas yra išnuomotas iki 2028-09-30, tačiau nuomos sutartį nuomotojas turi teisę nutraukti vienašališkai, iš anksto įspėjęs.