📝 Aprašymas
Alytaus miesto savivaldybės administracija, unikalaus registro Nr. 1195-8002-1018, skelbia viešą nuomos konkursą dėl negyvenamųjų patalpų Pulko g. 1, Alytuje, pastato plane 1B2p.
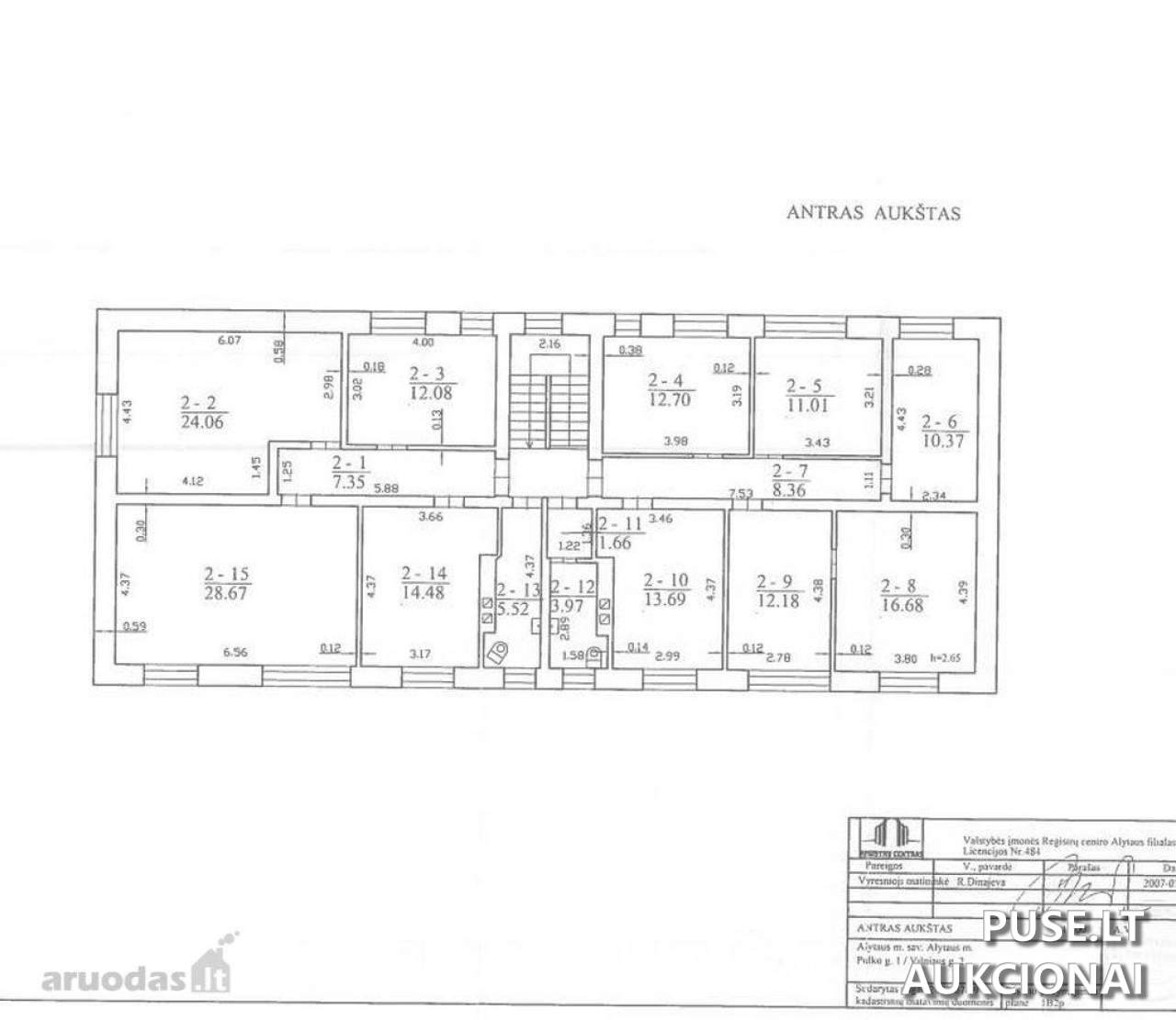
Nuomojamas bendras 32,74 kv. m. plotas, susidedantis iš kelių dalių: patalpos 2-15 (28,67 kv. m), dalis patalpos 2-1 (2,64 kv. m. iš 7,35 kv. m), dalis patalpos 2-12 (1 kv. m. iš 3,97 kv. m) ir dalis patalpos 2-11 (0,43 kv. m. iš 1,66 kv. m).
Administracinės paskirties patalpos nuomojamos ilgesniam 5 metų laikotarpiui, su galimybe pratęsti nuomos terminą dar 5 metams.
Pradinis nuompinigių dydis nustatytas 2,7 Eur už 1 kv. m per mėnesį. Konkurso dalyviai privalo sumokėti grąžinamą pradinį įnašą, lygų trijų mėnesių pradiniam nuomos mokesčiui, kuris sudaro 267 Eur (jeigu nelaimima, įnašas grąžinamas). Registracijos mokestis yra 30 Eur ir jis negrąžinamas.
Nuomos sutartis turi būti pasirašyta per 5-10 darbo dienų po komisijos protokolo pasirašymo. Jeigu laimėtojas neatvyksta pasirašyti sutarties per nustatytą terminą, konkurso rezultatai anuliuojami ir pradinį įnašą praranda. Alytaus miesto savivaldybės administracija nėra PVM mokėtoja.
Nuomos konkurso registracija vyksta nuo 2026-03-27 00:00:00 iki 2026-03-31 23:59:59. Pats aukcionas (konkursas) vyks nuo 2026-04-02 09:00:00 iki 2026-04-03 13:59:59.
Nuomojamas bendras 32,74 kv. m. plotas, susidedantis iš kelių dalių: patalpos 2-15 (28,67 kv. m), dalis patalpos 2-1 (2,64 kv. m. iš 7,35 kv. m), dalis patalpos 2-12 (1 kv. m. iš 3,97 kv. m) ir dalis patalpos 2-11 (0,43 kv. m. iš 1,66 kv. m).
Administracinės paskirties patalpos nuomojamos ilgesniam 5 metų laikotarpiui, su galimybe pratęsti nuomos terminą dar 5 metams.
Pradinis nuompinigių dydis nustatytas 2,7 Eur už 1 kv. m per mėnesį. Konkurso dalyviai privalo sumokėti grąžinamą pradinį įnašą, lygų trijų mėnesių pradiniam nuomos mokesčiui, kuris sudaro 267 Eur (jeigu nelaimima, įnašas grąžinamas). Registracijos mokestis yra 30 Eur ir jis negrąžinamas.
Nuomos sutartis turi būti pasirašyta per 5-10 darbo dienų po komisijos protokolo pasirašymo. Jeigu laimėtojas neatvyksta pasirašyti sutarties per nustatytą terminą, konkurso rezultatai anuliuojami ir pradinį įnašą praranda. Alytaus miesto savivaldybės administracija nėra PVM mokėtoja.
Nuomos konkurso registracija vyksta nuo 2026-03-27 00:00:00 iki 2026-03-31 23:59:59. Pats aukcionas (konkursas) vyks nuo 2026-04-02 09:00:00 iki 2026-04-03 13:59:59.
📍 Objekto lokacija
📍 Alytaus m. sav. Alytaus m. Pulko g. 1
❓ Dažnai užduodami klausimai
Kokia yra administracinių patalpų bendras plotas Alytuje, Pulko g. 1?
Nuomojamas bendras 32,74 kv. m. negyvenamųjų patalpų kompleksas, įskaitant patalpas 2-15, dalis 2-1, 2-12 ir 2-11.
Kokia yra pradinė mėnesinė nuomos kaina už kvadratinį metrą?
Pradinis nuompinigių dydis yra 2,7 Eur už 1 kv. m per mėnesį.
Kada vyksta nuomos konkursas Alytuje, Pulko g. 1?
Aukcionas prasideda 2026-04-02 09:00:00 ir baigiasi 2026-04-03 13:59:59.
Koks yra nuomos terminas ir ar jis gali būti pratęstas?
Nuomos terminas yra 5 metai su galimybe pratęsti nuomos terminą dar 5 metų laikotarpiui.
Kokius mokesčius reikia sumokėti dalyvaujant konkurse?
Reikia sumokėti 30 EUR registracijos (negrąžinamą) mokestį ir grąžinamą pradinį įnašą, lygų trijų mėnesių pradiniam nuomos mokesčiui (267 Eur).
Kokia yra pradinio įnašo suma ir ar jis grąžinamas?
Pradinis įnašas yra 267 Eur, jis grąžinamas tiems dalyviams, kurie nelaimi konkurso.
Kokia yra privaloma patalpų naudojimo paskirtis?
Paskirtis yra administracinė veiklai.