📝 Aprašymas
Alytaus miesto savivaldybės administracija skelbia viešą nuomos konkursą 17,24 kv. m ploto negyvenamųjų patalpų nuomai Alytuje, adresu Pulko g. 1. Šis turtas, esantis pastate su unikaliu numeriu 1195-8002-1018, yra skirtas administracinei veiklai.
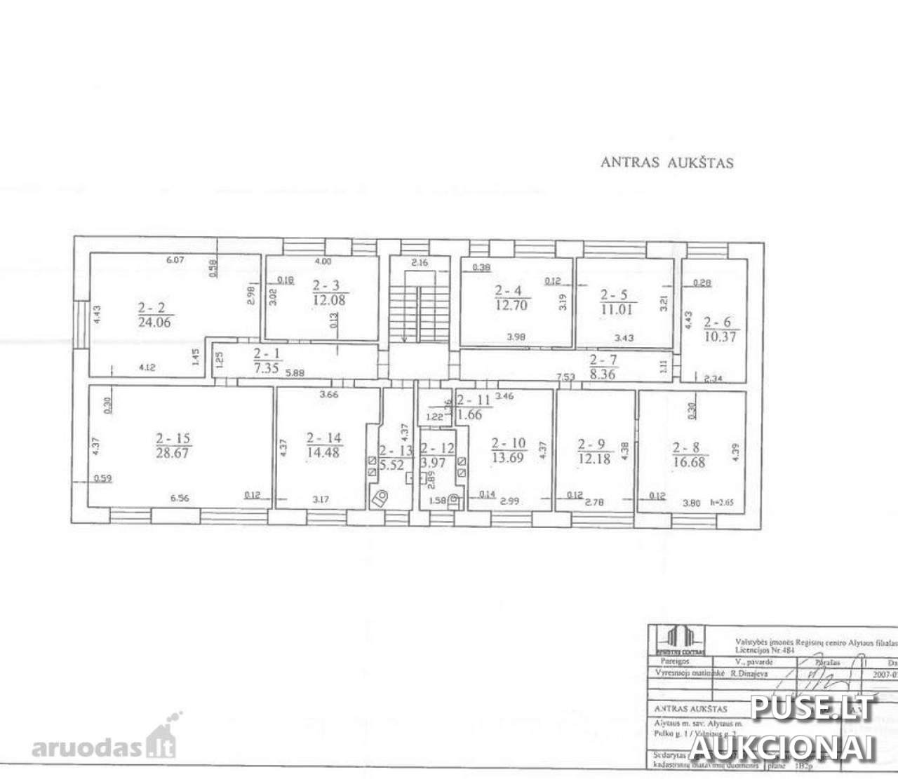
Nuomojama bendra 17,24 kv. m ploto apimtis, kurią sudaro kelios dalys: patalpa plane 2-14 (14,48 kv. m), dalis patalpos 2-1 (1,36 kv. m iš 7,35 kv. m), dalis patalpos 2-12 (0,99 kv. m iš 3,97 kv. m) ir dalis patalpos 2-11 (0,41 kv. m iš 1,66 kv. m).
Nuomos sąlygos numato 5 metų nuomos terminą su galimybe jį pratęsti dar 5 metams. Pradinis nuompinigių dydis nustatytas 2,7 Eur už 1 kv. m per mėnesį. Konkurso dalyviai privalo sumokėti 30 EUR registracijos mokestį (negrąžinamą) ir pradinį įnašą, lygų trims mėnesiams pradinio nuomos mokesčio (141 Eur, grąžinamas nelaimėjusiems).
Nuomos sutartis turi būti pasirašyta ne anksčiau kaip per 5 darbo dienas ir ne vėliau kaip per 10 darbo dienų nuo nuomos komisijos protokolo pasirašymo. Jeigu laimėtojas neatvyksta per nustatytą terminą, konkursas anuliuojamas, o sumokėtas pradinis įnašas negrąžinamas, išskyrus nenugalimos jėgos (force majeure) atvejus, patvirtintus dokumentais.
Nuomotojas yra Alytaus miesto savivaldybės administracija (įm. kodas 188706935), kuri nėra PVM mokėtoja. Su turto nuomos sutarties projektu galima susipažinti kreipiantis nurodytais kontaktais.
Nuomojama bendra 17,24 kv. m ploto apimtis, kurią sudaro kelios dalys: patalpa plane 2-14 (14,48 kv. m), dalis patalpos 2-1 (1,36 kv. m iš 7,35 kv. m), dalis patalpos 2-12 (0,99 kv. m iš 3,97 kv. m) ir dalis patalpos 2-11 (0,41 kv. m iš 1,66 kv. m).
Nuomos sąlygos numato 5 metų nuomos terminą su galimybe jį pratęsti dar 5 metams. Pradinis nuompinigių dydis nustatytas 2,7 Eur už 1 kv. m per mėnesį. Konkurso dalyviai privalo sumokėti 30 EUR registracijos mokestį (negrąžinamą) ir pradinį įnašą, lygų trims mėnesiams pradinio nuomos mokesčio (141 Eur, grąžinamas nelaimėjusiems).
Nuomos sutartis turi būti pasirašyta ne anksčiau kaip per 5 darbo dienas ir ne vėliau kaip per 10 darbo dienų nuo nuomos komisijos protokolo pasirašymo. Jeigu laimėtojas neatvyksta per nustatytą terminą, konkursas anuliuojamas, o sumokėtas pradinis įnašas negrąžinamas, išskyrus nenugalimos jėgos (force majeure) atvejus, patvirtintus dokumentais.
Nuomotojas yra Alytaus miesto savivaldybės administracija (įm. kodas 188706935), kuri nėra PVM mokėtoja. Su turto nuomos sutarties projektu galima susipažinti kreipiantis nurodytais kontaktais.
📍 Objekto lokacija
📍 Alytaus m. sav. Alytaus m. Pulko g. 1
❓ Dažnai užduodami klausimai
Kada vyks nuomos konkursas Pulko g. 1, Alytuje?
Aukcionas prasidės 2026-04-02 09:00:00 ir baigsis 2026-04-03 13:59:59.
Kokia pradinė nuompinigių kaina už patalpas Alytuje, Pulko g. 1?
Pradinis nuompinigių dydis yra 2,7 Eur už 1 kv. m per mėnesį už administracinei veiklai skirtas patalpas.
Koks bendras nuomojamas plotas ir patalpų unikalus numeris?
Nuomojama 17,24 kv. m bendro ploto negyvenamųjų patalpų dalis pastate su unikaliu Nr. 1195-8002-1018.
Kokie registracijos ir papildomi mokesčiai taikomi konkurse?
Registracijos mokestis yra 30 EUR (negrąžinamas). Taip pat, dalyviai turi sumokėti pradinį įnašą, lygų 141 EUR (trim mėnesiams pradinio nuomos mokesčio, grąžinamas laimėtojui nepasirašius sutarties dėl nenugalimos jėgos aplinkybių ar laimėtojui laiku nepasirašius sutarties negrąžinamas).
Koks numatytas nuomos terminas?
Nuomos terminas yra 5 metai su galimybe pratęsti dar 5 metams.
Kada reikia registruotis dalyvauti konkurse?
Registracija prasideda 2026-03-27 00:00:00 ir baigiasi 2026-03-31 23:59:59.