📝 Aprašymas
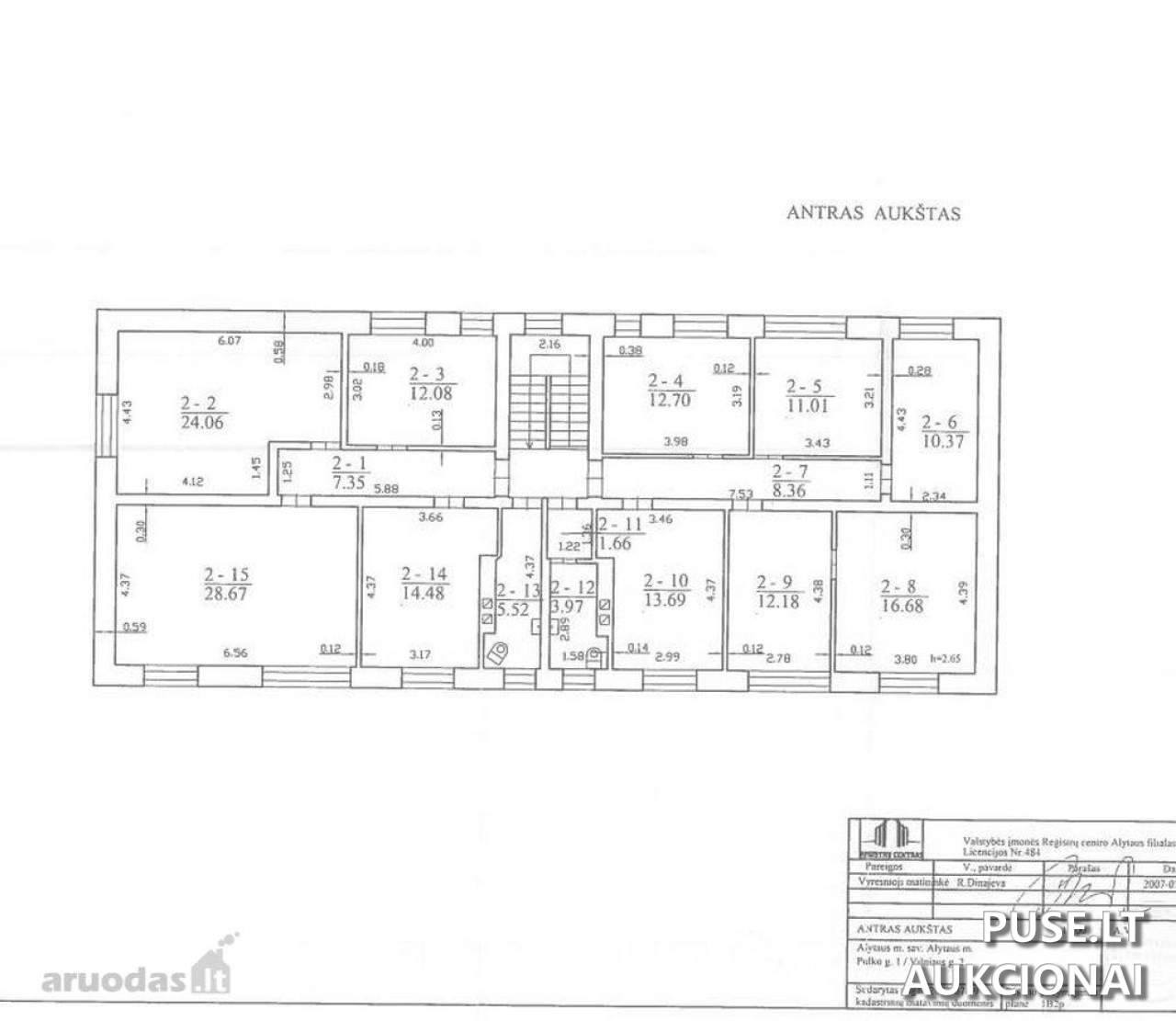
Alytaus miesto savivaldybės administracija skelbia viešą nuomos konkursą 27,69 kv. m. negyvenamųjų administracinės paskirties patalpų nuomai Alytuje, adresu Pulko g. 1. Šis administracinis turtas, esantis pastate su unikaliu numeriu 1195-8002-1018, idealiai tinka administracinei veiklai vykdyti.Bendras nuomojamas plotas yra 27,69 kv. m., įskaitant dalis iš skirtingų patalpų: 2-2 (24,06 kv. m), 2-1 (2,23 kv. m iš 7,35 kv. m), 2-12 (0,99 kv. m iš 3,97 kv. m) ir 2-11 (0,41 kv. m iš 1,66 kv. m).
Nuomos terminas nustatytas 5 metams, su galimybe jį pratęsti papildomam 5 metų laikotarpiui, suteikiant ilgalaikio stabilumo galimybę. Pradinis nuompinigių dydis nustatytas 2,7 Eur už 1 kv. m per mėnesį. Konkurso dalyviams taikomas 30 EUR registravimo mokestis, kuris yra negrąžinamas. Taip pat reikalaujamas 225 EUR pradinis įnašas, kuris yra grąžinamas konkurso nelaimėjusiems.
Konkurso dalyviai, siekiantys nuomotis šias patalpas Alytuje, turi sumokėti pradinį įnašą, lygų trijų mėnesių pradiniam nuomos mokesčiui, ir registracijos mokestį į Alytaus miesto savivaldybės administracijos sąskaitą.
Nuomos sutartis turi būti pasirašyta ne anksčiau kaip po 5 darbo dienų ir ne vėliau kaip per 10 darbo dienų nuo nuomos komisijos protokolo pasirašymo. Jei laimėtojas neatvyksta pasirašyti sutarties per nustatytą terminą, konkurso rezultatai anuliuojami, o pradinis įnašas negrąžinamas. Sutarties projektas gali būti peržiūrėtas gavus prašymą.
Nuomos terminas nustatytas 5 metams, su galimybe jį pratęsti papildomam 5 metų laikotarpiui, suteikiant ilgalaikio stabilumo galimybę. Pradinis nuompinigių dydis nustatytas 2,7 Eur už 1 kv. m per mėnesį. Konkurso dalyviams taikomas 30 EUR registravimo mokestis, kuris yra negrąžinamas. Taip pat reikalaujamas 225 EUR pradinis įnašas, kuris yra grąžinamas konkurso nelaimėjusiems.
Konkurso dalyviai, siekiantys nuomotis šias patalpas Alytuje, turi sumokėti pradinį įnašą, lygų trijų mėnesių pradiniam nuomos mokesčiui, ir registracijos mokestį į Alytaus miesto savivaldybės administracijos sąskaitą.
Nuomos sutartis turi būti pasirašyta ne anksčiau kaip po 5 darbo dienų ir ne vėliau kaip per 10 darbo dienų nuo nuomos komisijos protokolo pasirašymo. Jei laimėtojas neatvyksta pasirašyti sutarties per nustatytą terminą, konkurso rezultatai anuliuojami, o pradinis įnašas negrąžinamas. Sutarties projektas gali būti peržiūrėtas gavus prašymą.
📍 Objekto lokacija
📍 Alytaus m. sav. Alytaus m. Pulko g. 1
❓ Dažnai užduodami klausimai
Kokia bendro ploto administracinės patalpos nuomojamos Alytuje, Pulko g. 1?
Nuomojamas bendras 27,69 kv. m. negyvenamųjų patalpų plotas, sudarytas iš kelių zonų (pvz. 2-2 – 24,06 kv. m).
Koks yra pradinio nuompinigių dydis už šias patalpas Alytuje?
Pradinis nuompinigių dydis nustatytas 2,7 Eur už 1 kv. m per mėnesį.
Koks yra nuomos konkurso terminas ir galimas pratęsimas?
Nuomos terminas yra 5 metai, su galimybe jį pratęsti dar 5 metams.
Kada vyksta nuomos konkursas Alytuje, Pulko g. 1?
Aukcionas prasideda 2026-04-02 09:00:00 ir baigiasi 2026-04-03 13:59:59.
Kokie yra mokami mokesčiai dalyvaujant nuomos konkurse?
Reikalingas 30 EUR negrąžinamas registravimo mokestis ir grąžinamas 225 EUR pradinis įnašas (lygus 3 mėnesių pradiniam nuomos mokesčiui).
Kokia yra pagrindinė numatyta naudojimo paskirtis?
Numatyta naudojimo paskirtis - administracinei veiklai.
Kada reikia pasirašyti nuomos sutartį po konkurso laimėjimo?
Nuomos sutartis turi būti pasirašyta per 10 darbo dienų nuo nuomos komisijos protokolo pasirašymo dienos.