📝 Aprašymas
Alytaus miesto savivaldybės administracija skelbia viešą nuomos konkursą dėl negyvenamųjų administracinių patalpų Alytuje, Pulko g. 1, pastate (unikalus Nr. 1195-8002-1018).
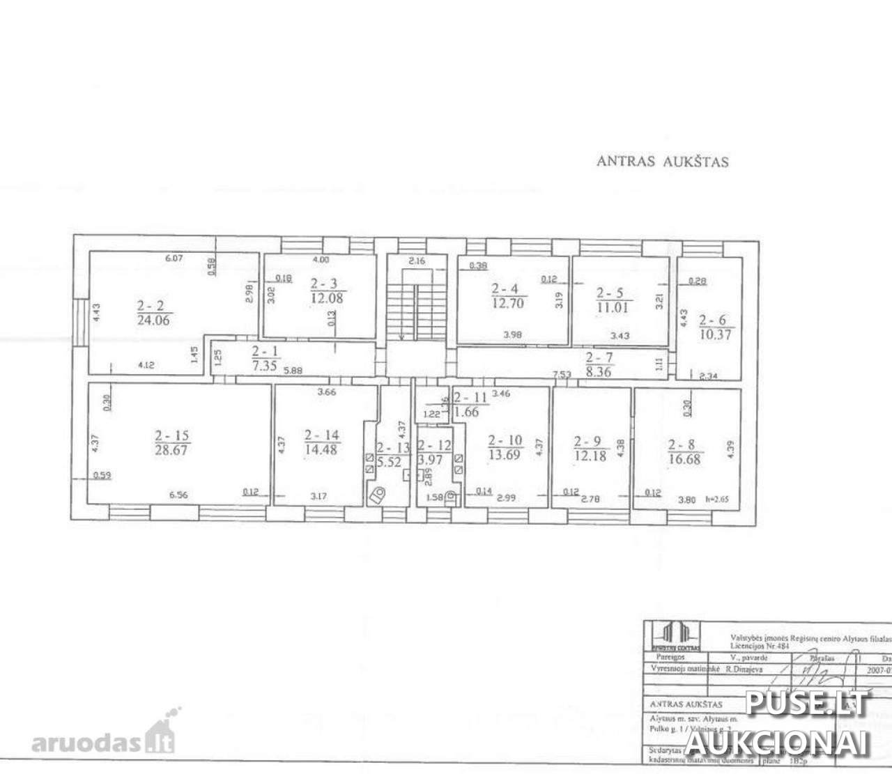
Bendra nuomojama plotas sudaro 14,6 kv. m. Šis plotas yra paskirstytas: patalpos plane 2-3 (12,08 kv. m), dalis patalpos 2-1 (1,12 kv. m iš 7,35 kv. m), dalis patalpos 2-12 (0,99 kv. m iš 3,97 kv. m) ir dalis patalpos 2-11 (0,41 kv. m iš 1,66 kv. m). Patalpos bus nuomojamos konkrečiai administracinei veiklai.
Nuomos terminas yra 5 metai su galimybe pratęsti nuomos terminą papildomam 5 metų laikotarpiui. Pradinis nuompinigių dydis nustatytas 2,70 Eur už 1 kv. m per mėnesį.
Konkurso dalyviai privalo sumokėti pradinį įnašą, kuris lygus trijų mėnesių pradiniam nuomos mokesčiui (bendras pradinio įnašo dydis bus apskaičiuotas pagal pradinį nuompinigių dydį). Taip pat mokamas negrąžinamas registracijos mokestis – 30 Eur. Pradinis įnašas bus grąžinamas tik laimėtojui nepasirašius sutarties per nustatytą terminą arba nelaimėjus konkurso. Alytaus miesto savivaldybės administracija nėra PVM mokėtoja.
Nuomos sutartis turi būti pasirašyta ne anksčiau kaip per 5 darbo dienas ir ne vėliau kaip per 10 darbo dienų nuo nuomos komisijos protokolo pasirašymo dienos. Jeigu laimėtojas neatvyksta pasirašyti sutarties per 10 darbo dienų, konkurso rezultatai anuliuojami, o sumokėtas pradinis įnašas negrąžinamas. Sutarties projektas prieinamas gavus laišką nurodytu el. paštu.
Konkursas prasideda 2026-04-02 09:00:00 ir baigiasi 2026-04-03 13:59:59. Registracija vyksta nuo 2026-03-27 iki 2026-03-31.
Bendra nuomojama plotas sudaro 14,6 kv. m. Šis plotas yra paskirstytas: patalpos plane 2-3 (12,08 kv. m), dalis patalpos 2-1 (1,12 kv. m iš 7,35 kv. m), dalis patalpos 2-12 (0,99 kv. m iš 3,97 kv. m) ir dalis patalpos 2-11 (0,41 kv. m iš 1,66 kv. m). Patalpos bus nuomojamos konkrečiai administracinei veiklai.
Nuomos terminas yra 5 metai su galimybe pratęsti nuomos terminą papildomam 5 metų laikotarpiui. Pradinis nuompinigių dydis nustatytas 2,70 Eur už 1 kv. m per mėnesį.
Konkurso dalyviai privalo sumokėti pradinį įnašą, kuris lygus trijų mėnesių pradiniam nuomos mokesčiui (bendras pradinio įnašo dydis bus apskaičiuotas pagal pradinį nuompinigių dydį). Taip pat mokamas negrąžinamas registracijos mokestis – 30 Eur. Pradinis įnašas bus grąžinamas tik laimėtojui nepasirašius sutarties per nustatytą terminą arba nelaimėjus konkurso. Alytaus miesto savivaldybės administracija nėra PVM mokėtoja.
Nuomos sutartis turi būti pasirašyta ne anksčiau kaip per 5 darbo dienas ir ne vėliau kaip per 10 darbo dienų nuo nuomos komisijos protokolo pasirašymo dienos. Jeigu laimėtojas neatvyksta pasirašyti sutarties per 10 darbo dienų, konkurso rezultatai anuliuojami, o sumokėtas pradinis įnašas negrąžinamas. Sutarties projektas prieinamas gavus laišką nurodytu el. paštu.
Konkursas prasideda 2026-04-02 09:00:00 ir baigiasi 2026-04-03 13:59:59. Registracija vyksta nuo 2026-03-27 iki 2026-03-31.
📍 Objekto lokacija
📍 Alytaus m. sav. Alytaus m. Pulko g. 1
❓ Dažnai užduodami klausimai
Kokia nuomojamų patalpų Alytuje bendra ploto suma?
Bendras nuomojamas plotas yra 14,6 kv. m., paskirstytas keliose patalpose Pulko g. 1 pastate.
Kokia yra administracinės patalpos nuomos pradinė kaina per mėnesį už 1 kv. m.?
Pradinis nuompinigių dydis nustatytas 2,70 Eur už 1 kv. m per mėnesį, o pradinė konkurso kaina yra 0 EUR.
Koks yra nuomos termino ilgis ir ar jį galima pratęsti?
Nuomos terminas yra 5 metai su galimybe pratęsti terminą dar 5 metams.
Kada vyksta nuomos konkursas ir kada yra registracijos pabaiga?
Konkursas prasideda 2026-04-02 09:00:00 ir baigiasi 2026-04-03 13:59:59. Registracija baigiasi 2026-03-31 23:59:59.
Kokie yra su dalyvavimu susiję mokesčiai?
Reikalingas negrąžinamas registracijos mokestis – 30 Eur, bei pradinis įnašas, lygus trims mėnesiams pradinio nuomos mokesčio.
Kokia unikali pastato registracijos (kadastro) numeris?
Pastato unikalus numeris yra 1195-8002-1018.