📝 Aprašymas
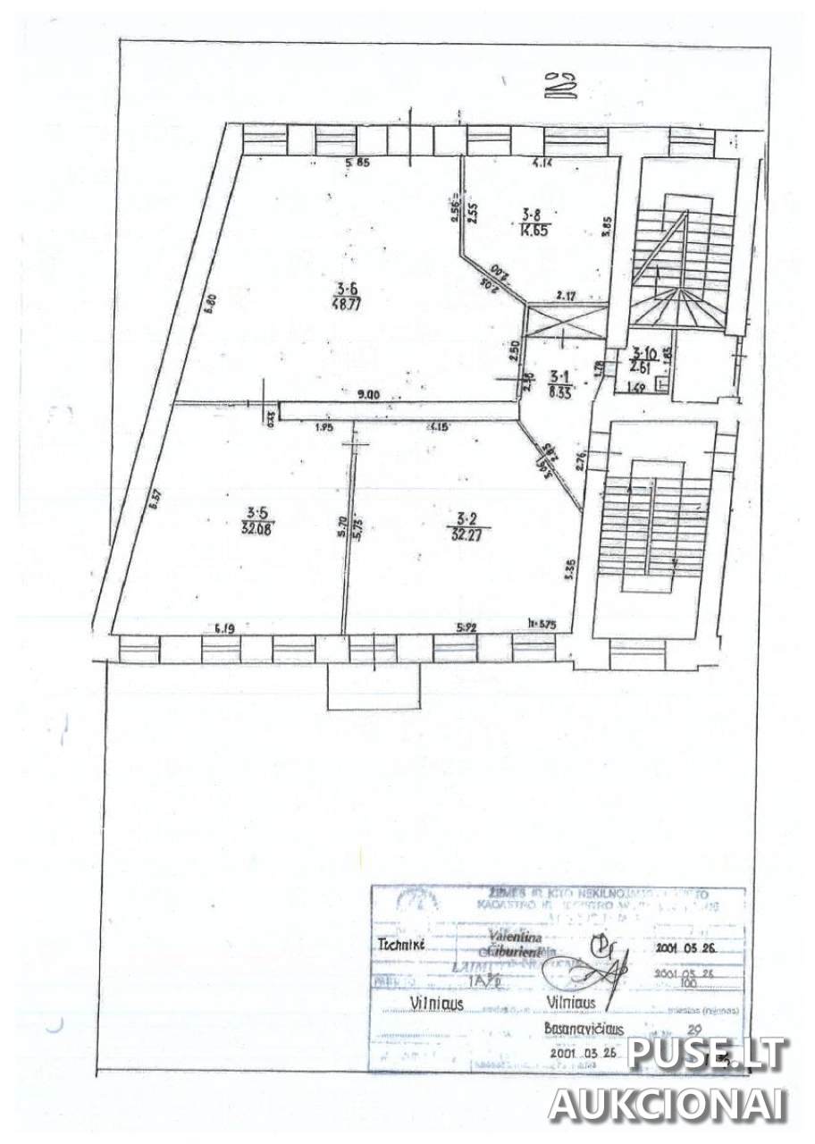
Parduodamos 1/1 dalies negyvenamosios patalpos J. Basanavičiaus g. 29-3, Vilniaus miesto savivaldybėje, 3 aukštų mūrinio pastato 2 aukšte. Objekto bendras plotas yra 138,71 kvadratinio metro, pradinė kaina siekia 204000 EUR. Patalpos yra istoriškai vertingoje Vilniaus Naujamiesčio teritorijoje (unikalus kodas 33653) bei Vilniaus senamiesčio vizualinio apsaugos zonoje (unikalus kodas 16073). Tai suteikia papildomų apribojimų, susijusių su bet kokiais statybos, remonto ar rekonstrukcijos darbais, kurie turi būti derinami vadovaujantis Lietuvos Respublikos nekilnojamojo kultūros paveldo apsaugos įstatymu.
Parduodamas nekilnojamasis turtas yra esamos fizinės ir funkcinės būklės. Svarbu paminėti, kad iš viso 138,71 kv. m ploto: 68,85 kv. m dalis yra laisva, o 69,86 kv. m dalis šiuo metu yra išnuomota, nuomos sutartis galioja iki pat aukciono laimėtojo paskelbimo.
Aukciono dalyviai privalo sumokėti 20400 EUR garantinį mokestį ir 145 EUR registracijos mokestį. Garantinis įnašas ir registracijos mokestis turi būti sumokėti iki registracijos pabaigos, į nurodytą Vilniaus miesto savivaldybės administracijos sąskaitą AB SEB banke (LT63 7044 0600 0123 5132).
Pirkimo-pardavimo sutartis su laimėtoju bus pasirašoma per 30 dienų nuo pardavimo dienos, o visa kaina privalo būti sumokėta ne vėliau kaip per 10 dienų po sutarties pasirašymo. Šis turtas parduodamas Savivaldybių aukcionų tvarka (ID 85168).
Parduodamas nekilnojamasis turtas yra esamos fizinės ir funkcinės būklės. Svarbu paminėti, kad iš viso 138,71 kv. m ploto: 68,85 kv. m dalis yra laisva, o 69,86 kv. m dalis šiuo metu yra išnuomota, nuomos sutartis galioja iki pat aukciono laimėtojo paskelbimo.
Aukciono dalyviai privalo sumokėti 20400 EUR garantinį mokestį ir 145 EUR registracijos mokestį. Garantinis įnašas ir registracijos mokestis turi būti sumokėti iki registracijos pabaigos, į nurodytą Vilniaus miesto savivaldybės administracijos sąskaitą AB SEB banke (LT63 7044 0600 0123 5132).
Pirkimo-pardavimo sutartis su laimėtoju bus pasirašoma per 30 dienų nuo pardavimo dienos, o visa kaina privalo būti sumokėta ne vėliau kaip per 10 dienų po sutarties pasirašymo. Šis turtas parduodamas Savivaldybių aukcionų tvarka (ID 85168).
📍 Objekto lokacija
📍 Vilniaus m. sav. Vilniaus m. J. Basanavičiaus g. 29-3
❓ Dažnai užduodami klausimai
Kokia negyvenamųjų patalpų J. Basanavičiaus g. 29-3 pradinė aukciono kaina ir bendras plotas?
Pradinė kaina yra 204000 EUR, o bendras patalpų plotas yra 138,71 kv. m.
Kada vyks aukcionas ir iki kada galima registruotis?
Aukcionas vyks nuo 2026-04-27 09:00:00 iki 2026-04-28 13:59:59. Registracija vyksta nuo 2026-04-20 00:00:00 iki 2026-04-22 23:59:59.
Kokios yra mokestinės prievolės dalyvaujant aukcione J. Basanavičiaus g. 29-3 turto pardavime?
Reikia sumokėti 20400 EUR garantinį mokestį ir 145 EUR registracijos mokestį.
Kokie pagrindiniai apribojimai taikomi šiam turtui dėl kultūros paveldo?
Patalpos yra Vilniaus miesto istorinės dalies (Naujamiesčio) ir Vilniaus senamiesčio vizualinės apsaugos zonoje, todėl bet kokie statybos (remonto, rekonstrukcijos) darbai reglamentuojami Nekilnojamojo kultūros paveldo apsaugos įstatymu.
Kokia yra negyvenamųjų patalpų nuomos situacija pardavimo metu?
69,86 kv. m dalis yra išnuomota, nuomos terminas galioja iki įvyks turto pardavimas viešo aukciono būdu ir bus paskelbtas laimėtojas.
Kada galima apžiūrėti parduodamas negyvenamąsias patalpas J. Basanavičiaus g. 29-3?
Apžiūros numatytos 2026-03-30 10.00 val. ir 2026-04-15 10.00 val., tačiau reikia iš anksto suderinti laiką su atsakingu darbuotoju.
Per kiek laiko po aukciono laimėjimo reikia sumokėti visą kainą?
Pirkimo-pardavimo sutartis sudaroma per 30 dienų, o visa kaina turi būti sumokėta ne vėliau kaip per 10 dienų po sutarties pasirašymo.