📝 Aprašymas
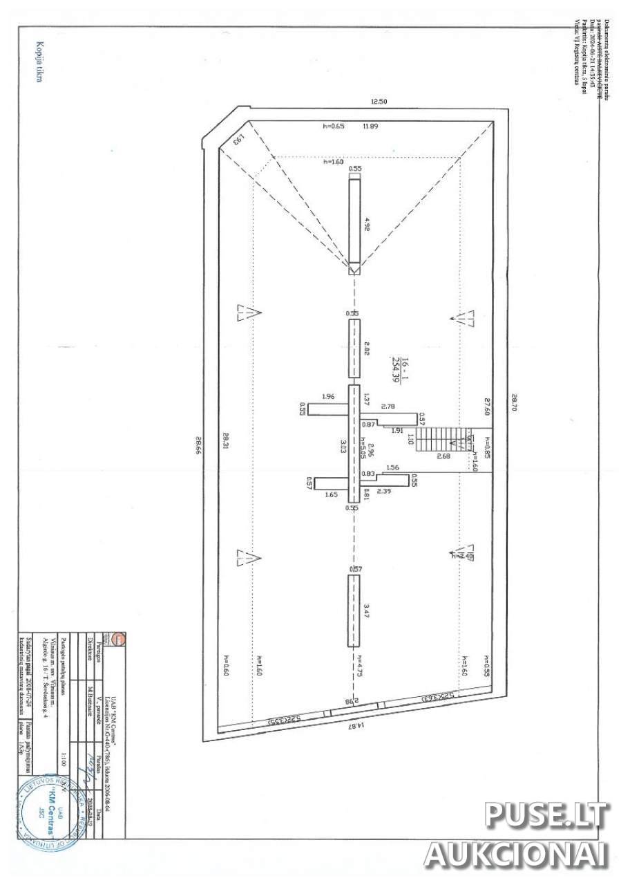
Parduodama 909/10000 dalis neįrengtos pastogės (unikalus Nr. 4400-1626-7975:5979) Vilniaus miesto savivaldybės viešame pakartotiniame aukcione. Ši dalis atitinka 23,12 kv. m plotą, skaičiuojant nuo 254,39 kv. m bendrojo pastato ploto. Objektas yra trijų aukštų, mūrinio pastato dalyje, esančioje Algirdo g. 16, Vilniuje. Pradinė kaina – 15390 EUR. Patalpos parduodamos esamos būklės, su VĮ RC 2008-08-19 įregistruotu neįrengtos pastogės dalių paskaičiavimo projektu.
Svarbios naudojimo sąlygos: Nors pastatas nėra įrašytas į Kultūros vertybių registrą, jis yra nekilnojamosios kultūros vertybės - Vilniaus miesto istorinės dalies Naujamiesčio (unikalus kodas 33653) teritorijoje ir valstybės saugomos nekilnojamosios kultūros vertybės - Vilniaus senamiesčio (unikalus kodas 16073) vizualinės apsaugos zonoje. Bet kokie statybos, remonto ar rekonstrukcijos darbai šioje teritorijoje yra griežtai reglamentuojami Lietuvos Respublikos nekilnojamojo kultūros paveldo apsaugos įstatymu ir kitais susijusiais teisės aktais, ką privalo žinoti investuotojas.
Ekonominės sąlygos: Aukciono dalyvio garantinis mokestis yra 1539 EUR (10 proc. nuo pradinės kainos), o registracijos mokestis – 70 EUR. Sutartis turi būti sudaryta per 30 dienų nuo aukciono vykdymo dienos, o visa kaina sumokėta per 10 dienų po sutarties pasirašymo. Organizatorius – Vilniaus miesto savivaldybės administracija, kodas 188710061.
Galimos turto apžiūros vyks 2026-04-08 11.00 val. ir 2026-04-15 11.00 val. Apžiūros laiką būtina iš anksto suderinti su atsakingais specialistais.
Svarbios naudojimo sąlygos: Nors pastatas nėra įrašytas į Kultūros vertybių registrą, jis yra nekilnojamosios kultūros vertybės - Vilniaus miesto istorinės dalies Naujamiesčio (unikalus kodas 33653) teritorijoje ir valstybės saugomos nekilnojamosios kultūros vertybės - Vilniaus senamiesčio (unikalus kodas 16073) vizualinės apsaugos zonoje. Bet kokie statybos, remonto ar rekonstrukcijos darbai šioje teritorijoje yra griežtai reglamentuojami Lietuvos Respublikos nekilnojamojo kultūros paveldo apsaugos įstatymu ir kitais susijusiais teisės aktais, ką privalo žinoti investuotojas.
Ekonominės sąlygos: Aukciono dalyvio garantinis mokestis yra 1539 EUR (10 proc. nuo pradinės kainos), o registracijos mokestis – 70 EUR. Sutartis turi būti sudaryta per 30 dienų nuo aukciono vykdymo dienos, o visa kaina sumokėta per 10 dienų po sutarties pasirašymo. Organizatorius – Vilniaus miesto savivaldybės administracija, kodas 188710061.
Galimos turto apžiūros vyks 2026-04-08 11.00 val. ir 2026-04-15 11.00 val. Apžiūros laiką būtina iš anksto suderinti su atsakingais specialistais.
📍 Objekto lokacija
📍 Vilniaus m. sav. Vilniaus m. Algirdo g. 16
❓ Dažnai užduodami klausimai
Kokia yra neįrengtos pastogės dalies pradinė kaina aukcione?
Neįrengtos pastogės 909/10000 dalies, esančios Algirdo g. 16, Vilniuje, pradinė kaina yra 15390 EUR.
Kada vyksta aukcionas ir kada reikia registruotis?
Aukcionas prasideda 2026-04-27 09:00:00 ir baigiasi 2026-04-28 13:59:59. Registracija vyksta nuo 2026-04-20 00:00:00 iki 2026-04-22 23:59:59.
Kokie papildomi mokesčiai taikomi dalyvaujant aukcione?
Reikalingas 1539 EUR garantinis mokestis ir 70 EUR registracijos mokestis. Garantinis įnašas ir registracijos mokestis turi būti sumokėti iki registracijos pabaigos.
Kokie yra pagrindiniai apribojimai, susiję su šio objekto tvarkymu Vilniuje?
Objektas yra Vilniaus miesto istorinės dalies Naujamiesčio ir Vilniaus senamiesčio vizualinės apsaugos zonoje, todėl visi statybos (remonto, rekonstrukcijos) darbai reglamentuojami Kultūros paveldo apsaugos įstatymu.
Koks yra parduodamos dalies plotas ir unikalus numeris?
Parduodama 909/10000 dalis pastogės, atitinkanti 23,12 kv. m. bendrojo ploto dalį. Unikalus numeris: 4400-1626-7975:5979.
Per kiek laiko po aukciono laimėjimo reikia sudaryti pirkimo-pardavimo sutartį ir sumokėti visą kainą?
Nekilnojamojo turto pirkimo-pardavimo sutartis turi būti sudaryta per 30 dienų nuo pardavimo aukcione vykdymo dienos, o visa kaina sumokėta per 10 dienų po sutarties pasirašymo.